Roma, RM, Italia
Residenziale - Appartamento
Descrizione
ENG:
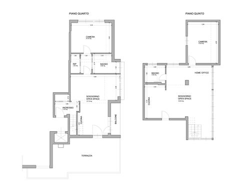
I own a two-level apartment (4th and 5th floors) with the sleeping area currently on the upper floor.
I would like to redistribute the spaces to create two separate apartments.
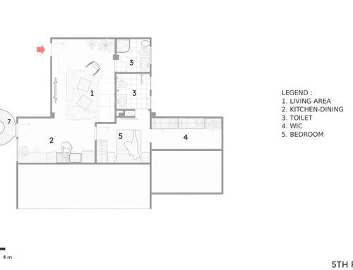
The idea we're pursuing is to design, on the lower floor, a master bedroom, an open-plan kitchen, a bathroom, and a living area.
We aim to maximize the living space, ensure the open kitchen isn’t too intrusive, and still have a bathroom with a window.
As additional information, the plumbing stack is located near the service terrace, since the bathroom was relocated during previous renovations.
Ceiling height: 3 meters
We would also like to find a new solution for the staircase connecting the two floors. While it’s aesthetically pleasing, it currently takes up too much room.
We’re considering a spiral staircase, or placing it in a less central area of the terrace. On this point, the upper floor has a full-wall French door opening onto the terrace.
The upper floor is an attic with a ceiling height of 2.4 meters. Here too, we would like to include all the essentials for livability: a sleeping area, living area, kitchen, and bathroom.
SPA:
Tengo un apartamento en dos niveles (plantas 4 y 5), con la zona de dormitorio actualmente en el piso superior.
Quisiera redistribuir los espacios para crear dos apartamentos independientes.
La idea que estamos buscando es que en la planta inferior haya un dormitorio principal, una cocina americana (abierta), un baño y una zona de estar.
Nos gustaría obtener el mayor espacio posible para la zona de estar, que la cocina abierta no resulte demasiado invasiva, y tener un baño con ventana.
Como dato adicional, la columna de desagüe se encuentra cerca de la terraza de servicio, ya que el baño fue reubicado en una reforma anterior.
Altura del techo: 3 metros
También quisiéramos encontrar una nueva solución para la escalera que conecta ambos niveles. Aunque es muy bonita, actualmente ocupa demasiado espacio.
Estamos considerando una escalera de caracol o ubicarla en un espacio menos central de la terraza. A este propósito, el piso superior tiene una puerta-ventana de pared completa que da a la terraza.
El piso superior es una buhardilla con una altura de techo de 2,40 metros. También aquí nos gustaría tener lo necesario para garantizar una buena habitabilidad: una zona de noche, zona de estar, cocina y baño.
ITA:
Ho un appartamento su due piani (4 e 5) con la zona letto al piano superiore.
Volevo ridistribuire gli spazi per creare due appartamenti distinti.
L’idea che stiamo cercando è di poter creare, al piano inferiore, una zona letto matrimoniale, una cucina a vista, un bagno e una zona giorno.
Vorremmo ottenere il maggior spazio possibile nella zona giorno, che la cucina a vista non risulti troppo invadente e un bagno comunque con la finestra. Come informazione la colonna di scarico è indicata vicino al terrazzo di servizio in quanto il bagno attuale era stato riposizionato in lavori precedenti.
Altezza del soffitto: 3m
Vorremmo anche trovare una soluzione per la scala che unisce i due piani. Per quanto bella ora occupa uno spazio che immagino potrebbe essere ridotto con una scala a chiocciola oppure posizionata in uno spazio non troppo importante sul terrazzo. A questo scopo il piano superiore ha una porta finestra a tutta parete che affaccia sul terrazzo.
Il piano superiore è un sottotetto con soffitto h 2,40. Anche qui vorremmo avere il necessario per la vivibilità, zona notte e giorno più bagno e cucina.