
Lido degli Estensi FE, Italy
Residenziale - Casa
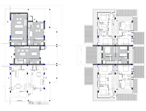
Descrizione
ENG:
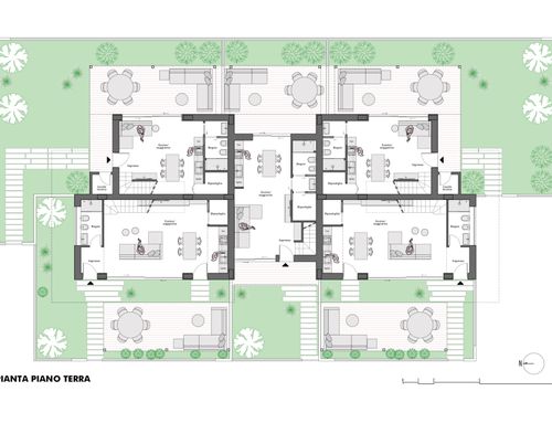
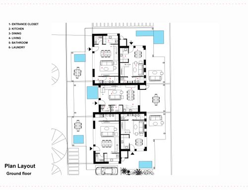
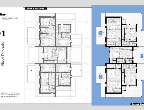
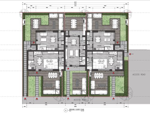
Hello everyone, I am submitting this competition by attaching a project by a local architect, for which I would like to have your proposals in order to be able to improve it from an aesthetic and internal point of view, without making changes to the building's volumetrics / samgoma. It is possible to make external architectural changes, move, open, widen window openings, doors, internal walls (redistribute the internal environments), in order to improve internal and external livability. The real estate units are intended for tourist use in beach locations. The designed volume and square meters cannot be modified (it is not possible to increase existing volumes). In case you want to move the volumes of the heating systems, I inform you that externally the technical volumes do not require a building surface (as you may have noticed, inside the houses there are some technical volumes that can be moved outside). The current designer has inserted technical volumes inside the house and then used them as closets or laundry rooms/bathrooms. Pergolas are not considered volumes and do not distance from the borders. . As can be seen in the project, there are 2 types of the property while they are 3 by size. As far as the study of the interiors and renderings are concerned, the renderings of the central unit (ground floor area) and a corner one (ground floor only) are required to leave more study possibilities in the external part and these two internal environments connected with the outside . While only a plan of the three types with furnishings is required. The areas currently assigned to each house can be distributed in another way but always exclusively. You can think of creating a common area for a parking space for guests with recharging.
SPA:
Hola a todos, me presento a este concurso adjuntando un proyecto de un arquitecto local, para el que me gustaría contar con vuestras propuestas para poder mejorarlo desde el punto de vista estético e interno, sin realizar cambios en la volumetría / samgoma del edificio. Es posible hacer cambios arquitectónicos externos, mover, abrir, ampliar las aberturas de ventanas, puertas, paredes internas (redistribuir los ambientes internos), con el fin de mejorar la habitabilidad interna y externa. Las unidades inmobiliarias están destinadas a uso turístico en lugares de playa. El volumen y los metros cuadrados diseñados no pueden modificarse (no es posible aumentar los volúmenes existentes). En caso de querer desplazar los volúmenes de los sistemas de calefacción, les informo que exteriormente los volúmenes técnicos no requieren superficie edificable (como habrán observado, en el interior de las viviendas hay algunos volúmenes técnicos que se pueden desplazar al exterior). El diseñador actual ha insertado volúmenes técnicos dentro de la casa y luego los ha utilizado como armarios o lavaderos/baños. Las pérgolas no se consideran volúmenes y no distan de los linderos. . Como se puede ver en el proyecto, hay 2 tipos de vivienda mientras que son 3 por tamaño. En cuanto al estudio de los interiores y renders, se requieren los renders de la unidad central (zona de planta baja) y una de esquina (solo planta baja) para dejar mas posibilidades de estudio en la parte exterior y estos dos ambientes internos conectados con el exterior . Mientras que sólo se requiere un plano de los tres tipos con mobiliario. Las zonas actualmente asignadas a cada vivienda se pueden distribuir de otra manera pero siempre de forma exclusiva. Se puede pensar en crear una zona común para aparcamiento de invitados con recarga.
ITA:
Salve a tutti, sottopongo questo concorso allegando un progetto approvato, per il quale vorrei avere vostre proposte al fine di poterlo migliorare dal punto di vista estetico ed interno, senza apportare modifiche alla volumetria dell'edificio. E' possibile apportare modifiche architettoniche esterne, spostare, aprire, allargare varchi di finestre, porte, pareti interne (ridistribuire gli ambienti interni), al fine di migliorare la vivibilità interna ed esterna. Le unità immobiliari sono destinate ad uso turistico in località balneari. La volumetria dei metri quadri progettati non possono essere modificati (non è possibile aumentare le volumetrie esistenti). Nel caso tu voglia spostare i volumi degli impianti termici, esternamente i volumi tecnici non necessitano di una superficie edificabile (come si nota, all'interno delle abitazioni ci sono dei volumi tecnici che possono essere spostati all'esterno). L'attuale progettista ha inserito dei volumi tecnici all'interno della casa per poi adibirli a ripostigli o lavanderie/bagni. I pergolati non sono considerati volumi e non distanziano dai confini. . Come si può vedere nel progetto le tipologie dell'immobile sono 2 mentre per metratura sono 3. Per quanto riguarda lo studio degli interni e i rendering, i rendering del corpo centrale (zona piano terra) e di uno d'angolo (solo piano terra) sono necessari per lasciare maggiori possibilità di studio nella parte esterna e questi due ambienti interni collegati con l'esterno. Mentre è richiesta solo una planimetria arredata delle tre tipologie. Le aree attualmente assegnate a ciascuna abitazione possono essere distribuite in altro modo ma sempre in esclusiva. Si può pensare di creare un'area comune per un posto auto per gli ospiti con ricarica.