
Naples, Metropolitan City of Naples, Italy
Residenziale - Appartamento
Descrizione
I love an elegant and classic style.
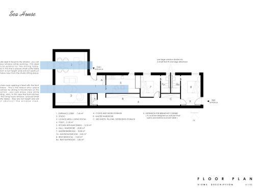
I would like to maximize the part with a view and have the best back division (which turns out to be darker).
Sea is the key word in the house. Mirrors should expand the ability to enjoy the view of the waves in walls other than windows. Absolutely I would not like to have the kitchen in the living room.
I would like the kitchen to be concealed with the possibility of it being closed in case of guests.
Also, a coat rack is a must at the entrance.
I like a modern style in terms of what pertains to wall units and concealed cabinets.
Finally, I would like a study nook in the living room facing the sea, perhaps on an extendable table. I would not like a large fixed table in the living room, because I would like more conversation corners (more spaces with armchairs and not necessarily with large sofas).
Therefore, I prefer table solutions that extend as needed.
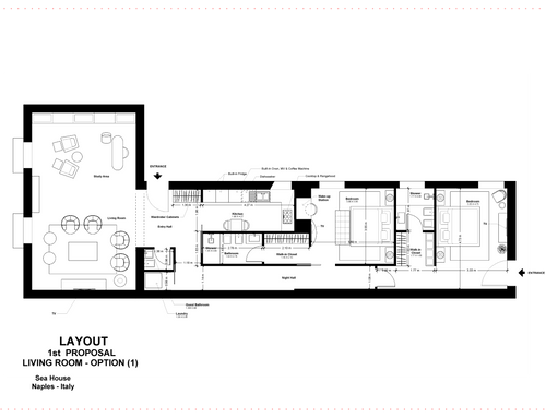
The house has a double entrance, and since two people currently intend to live in the apartment, we would like to consider renting the last room with its bathroom for bed and breakfast.
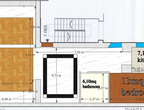
Please note that we don't know yet if it is better to have three rooms behind in the night area or two rooms. Please tell us your impressions. We would like to be sure of our last choice. Of course, we need space for cupboards too.
Versione ITALIANA
Mi piace lo stile elegante e classico.
Vorrei massimizzare la parte con vista e avere una buona divisione sul retro (che si dà il caso che sia più scura).
Il mare è il protagonista della casa. Gli specchi dovrebbero estendere la possibilità di godere della vista delle onde sulle pareti e non solo sulle finestre. Non mi piacerebbe affatto avere la cucina nel soggiorno.
Vorrei che la cucina fosse nascosta con la possibilità di chiuderla in caso di ospiti.
Anche un appendiabiti all'ingresso è d'obbligo.
Mi piace lo stile moderno, con armadi nascosti.
Infine, mi piacerebbe avere un angolo studio in soggiorno di fronte al mare, magari con un tavolo allungabile. Non vorrei un grande tavolo fisso in soggiorno, perché vorrei avere più angoli di conversazione (più spazi con poltrone e non necessariamente con grandi divani).
Pertanto, preferisco trovare un tavolo che si allunghi secondo le necessità.
La casa ha un doppio ingresso e, dato che attualmente due persone intendono vivere nell'appartamento, vorremmo prendere in considerazione la possibilità di affittare l'ultima stanza con il suo bagno per il servizio di bed and breakfast.
Non abbiamo ancora idea se sia meglio realizzare due o tre stanze nella zona notte. Per favore, suggeriteci la migliore opzione, che non sacrifichi eccessivamente gli spazi, perché chiaramente è necessario sempre pensare anche alla zona armadi.
Espanol
Me encanta un estilo elegante y clásico.
Me gustaría maximizar la parte con vistas y tener una buena división en la parte trasera (que resulta ser más oscura).
El mar es el término clave en la casa. Los espejos deberían ampliar la posibilidad de disfrutar de la vista de las olas en las paredes y no solo en las ventanas. No me gustaría en absoluto tener la cocina en el salón.
Me gustaría que la cocina estuviera oculta con la posibilidad de cerrarla en caso de que hubiera invitados.
También es imprescindible colocar un perchero en la entrada.
Me gusta el estilo moderno, con los muebles altos y los armarios ocultos.
Por último, me gustaría tener un rincón de estudio en la sala de estar frente al mar, tal vez en una mesa extensible. No me gustaría una gran mesa fija en el salón, porque me gustaría tener más rincones de conversación (más espacios con sillones y no necesariamente con grandes sofás).
Por lo tanto, prefiero encontrar una mesa que se extienda en función de las necesidades.
La casa tiene una entrada doble, y dado que actualmente dos personas tienen la intención de vivir en el apartamento, nos gustaría considerar el alquiler de la última habitación con su cuarto de baño para dar un servicio de bed and breakfast.