
Latina, LT, Italia
Esterno - Terrazzo
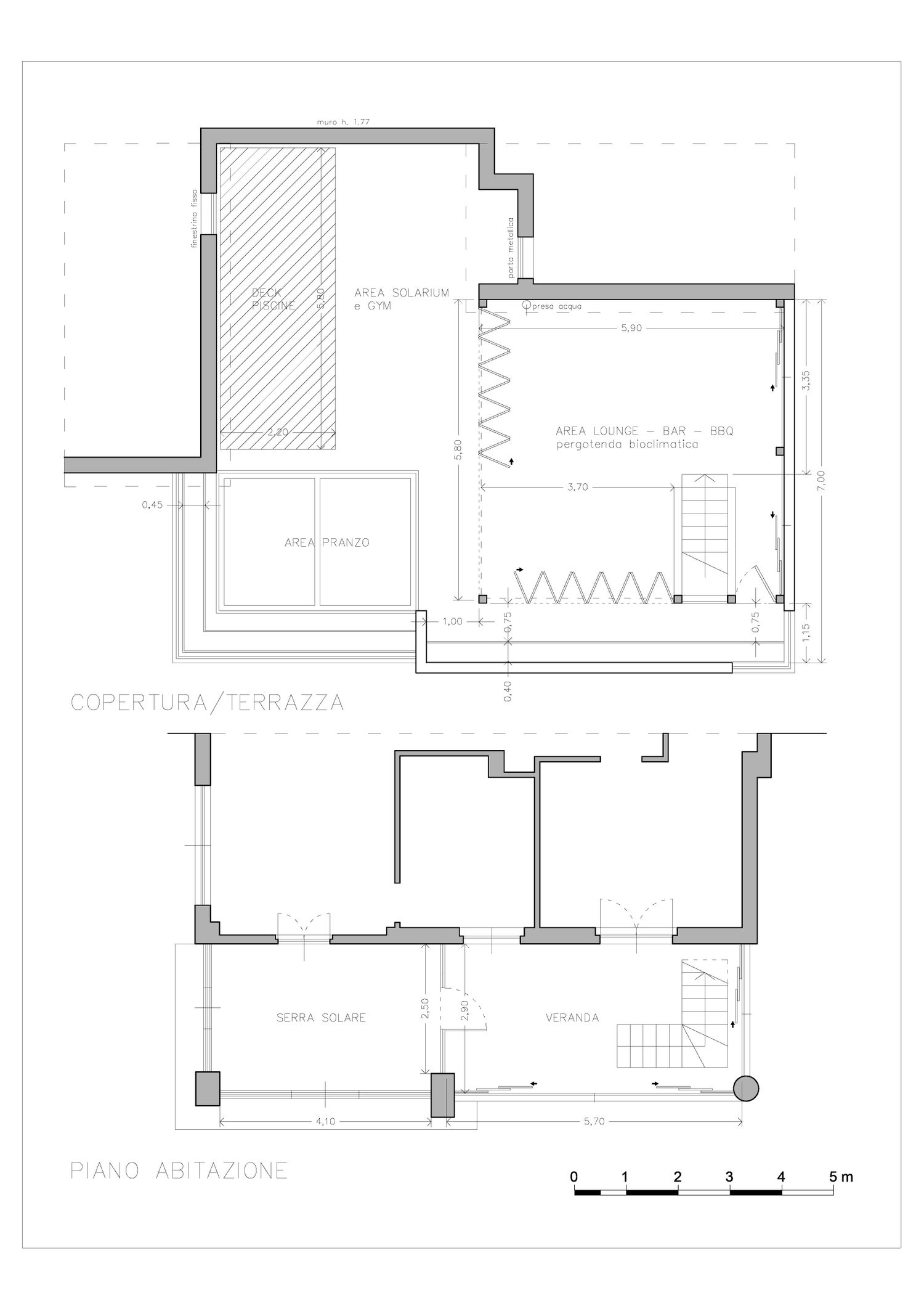
Il nostro progetto prevede una suddivisione funzionale dell'area rooftop che vedrà la creazione di:
A. una zona protetta ed utilizzabile anche in inverno, nella zona più ampia e prossima allo sbarco della scala di accesso;
B. una zona SPA - solarium - gym, posizionata nell'area più protetta dalle correnti d'aria, ovvero nell'angolo protetto dai muri di confine e delle strutture in elevazione presenti;
C. una zona pranzo, posizionata in corrispondenza della vetrata-finestra calpestabile; quest'ultima scelta è stata fatta non portare eccessivo peso né ingombrare questa zona, lasciando la finestra permeabile alla luce verso la serra solare sottostante.
Nello specifico:
⦁ nella zona A verrà inserita una pergotenda bioclimatica, addossata al muro, con struttura in alluminio finita ad effetto legno, dotata di copertura a lamelle orientabili e chiudibili, di frangisole semiopaco sul lato rivolto all'esterno dell'edificio e chiusure a pacchetto del tipo tutto vetro (cfr. https://www.protezionisrl.com/it/visio/). La pergotenda avrà funzione di chiusura/protezione della scala, di salottino lounge e di area bar/BBQ, con una cucina per esterni dotata di frigobar, lavastoviglie sottobanco e piccola dispensa, più BBQ, lavello e piano cottura ad induzione. Così configurata, quest'area potrà essere operativa come area bar, pranzo e salottino in tutte le stagioni.
⦁ nella zona B verrà posizionata una vasca combinata idromassaggio/nuoto controcorrente (cfr. https://www.beauty-luxury.com/it/nuoto-controcorrente/nuoto-controcorrente-bl-850/?srsltid=AfmBOoryme0LWb3wrwp9lRZ0kCYh1UO4NitfTkDcYBKIGd8q-JDHVRxy), e nell'area da lasciare più libera (verso la porta di metallo) alcuni lettini prendisole. Sul muro di confine verrà inserita una barriera di verde verticale. Di installazione libera, il tapis roulant ed un'eventuale cyclette.
⦁ nella zona C troveranno posto, infine, gli arredi più leggeri (tavolo da pranzo, sedie, ombrellone), ovvero quelle attrezzature che potranno facilmente essere spostate per liberare la sottostante vetrata calpestabile, e che meno comportano il problema di ingombrarla togliendo luce alla sala sottostante.
L'intera terrazza (e, se desiderato, la veranda sottostante) verrà pavimentata con una superficie unica di microcemento per esterni, igienico, pratico e facilmente manutenibile (cfr. https://www.maison-etanche.com/it/microcemento-per-esterno-110v23756.html#/569-colore-crema_avorio/862-contenuto-2_m_in_2_strati tonalità crema avorio).
Completano l'arredo alcune fioriere a nastro, da realizzarsi su misura in alluminio (cfr. https://lp.regart.it/?utm_source=adwords&utm_medium=ppc&utm_campaign=Search_fioreire_su_misura&utm_content=search_fioriere_su_misura_similari&utm_term=fioriere%20da%20esterno&hsa_acc=3757946703&hsa_cam=12248904902&hsa_grp=118129360275&hsa_ad=496333540307&hsa_src=g&hsa_tgt=kwd-301258461062&hsa_kw=fioriere%20da%20esterno&hsa_mt=b&hsa_net=adwords&hsa_ver=3&gad_source=1&gad_campaignid=12248904902&gbraid=0AAAAACd3KDR1htLLBLbHsujNwLzs0OwSp&gclid=Cj0KCQiAo4TKBhDRARIsAGW29bcZ8xSx2cKXXWruOVwr7nddZ3-BHiJ3UpOOqzjJLE-hvCyQj7Bp_eIaAtZ9EALw_wcB=), poste a protezione delle aree più scoperte alle intemperie e alla vista dall'esterno.
Per la finestra calpestabile è previsto, infine, un sistema di oscuramento dall'interno, con tende retrattili motorizzate (cfr. un sistema affine a quello di Velux: https://www.velux.it/prodotti/tende-tapparelle/tende-rullo/oscurante-per-finestre-per-tetti-piani-nuova-generazione); mentre per la veranda e per lo sbarco della scala in terrazza sono previsti pannelli traforati da realizzarsi su disegno, in alluminio o legno.