
Latina, LT, Italia
Esterno - Terrazzo
Estimado Cliente
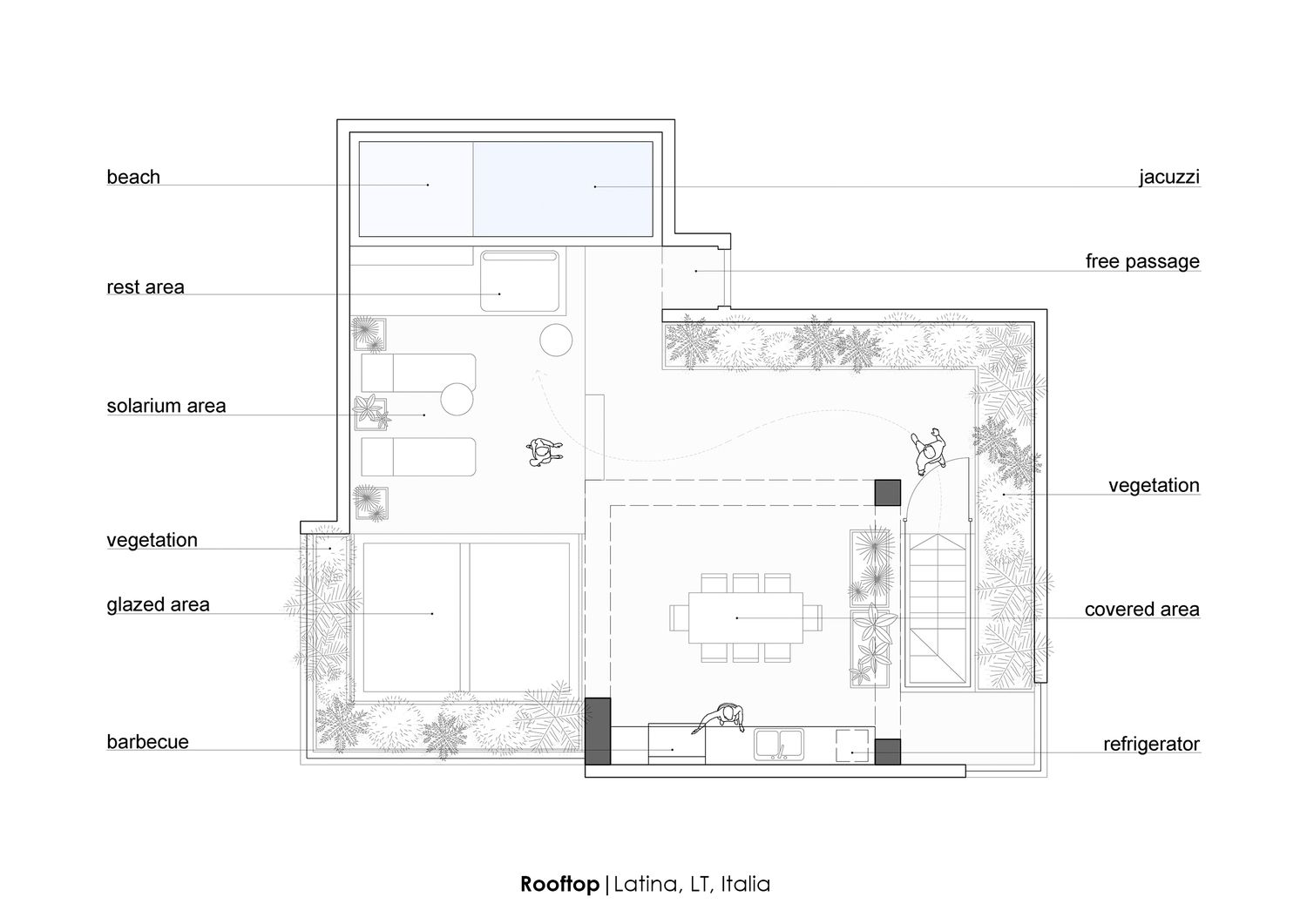
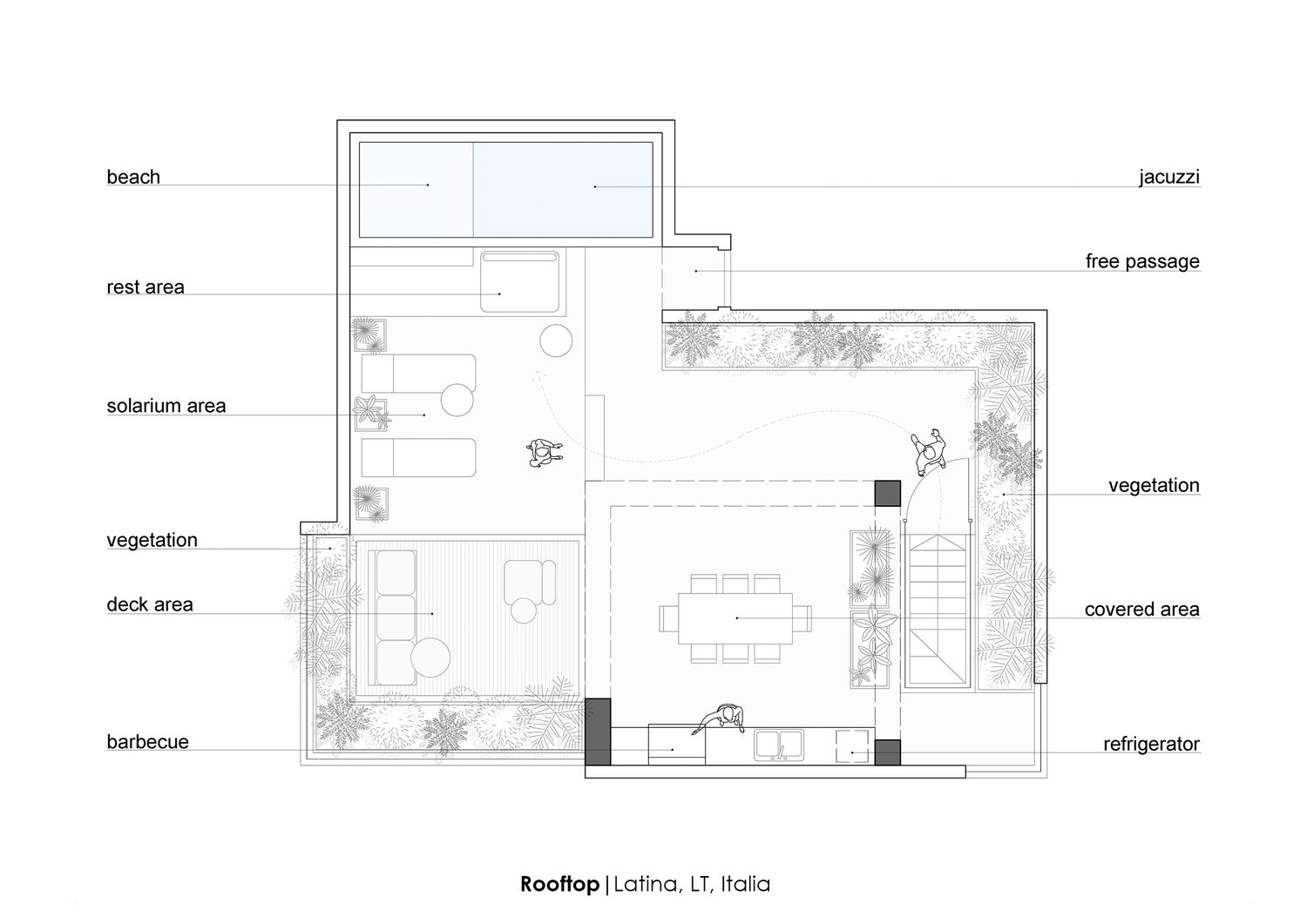
El proyecto propone transformar la terraza en un espacio de uso integral, concebido como una extensión natural de la vivienda, donde se articulan áreas de descanso, encuentro y recreación, priorizando el confort, la privacidad y la relación con el entorno.
La idea rectora se basa en la creación de un oasis contemporáneo en altura, donde la materialidad cálida, la vegetación y el manejo de niveles generan una atmósfera relajada y sofisticada. El diseño busca un equilibrio entre líneas limpias y una percepción acogedora, permitiendo disfrutar del espacio tanto de día como de noche, en verano y en invierno.
La posibilidad de utilizar el oscurecimiento del área acristalada genera la oportunidad de una nueva superficie de uso, retráctil que acompaña armoniosamente al diseño. De esta manera la terraza se estructura mediante plataformas a distintos niveles, que ordenan el programa y acompañan el recorrido de manera natural. Esta estrategia permite diferenciar usos
Se distinguen claramente:
• Un sector de relax con reposeras y superficies amplias para el descanso.
• Un área social sobre el deck retráctil con mesas y asientos, pensada para encuentros informales.
• Un sector de jacuzzi a medida, conformado por un área de playa y otra de hidromasajes integrado visualmente al resto del espacio, que actúa como punto focal y aporta frescura y dinamismo.
• Un espacio semicubierto equipado con mesada, lavavajillas, refrigerador y barabacoa, que funciona como núcleo de reunión y permite el uso de la terraza en distintas condiciones climáticas.
Materialidad
La selección de materiales responde a criterios de durabilidad, bajo mantenimiento y calidez visual. Predominan las superficies continuas de tonos claros, que amplían visualmente el espacio y reflejan la luz natural, combinadas con revestimientos de madera en muros y cielorrasos que aportan textura y una sensación más doméstica.
La madera se utiliza como elemento unificador, generando un contraste equilibrado con las superficies minerales y reforzando el carácter contemporáneo del proyecto.
Vegetación
La incorporación de vegetación en maceteros estratégicamente ubicados cumple una doble función: ambiental y espacial. Aporta frescura, color y vida al conjunto, al mismo tiempo que suaviza los límites, mejora la privacidad y refuerza la idea de refugio urbano.
Iluminación
La iluminación se plantea de manera indirecta y cálida, integrada a muros, escalones y planos horizontales. Este recurso realza la arquitectura, jerarquiza los distintos niveles y permite un uso confortable del espacio durante la noche, generando una atmósfera íntima y elegante.
Experiencia de uso
El resultado es una terraza pensada para ser vivida en diferentes momentos del día, adaptable a distintos usos y escalas de reunión. Un espacio que combina funcionalidad, estética y bienestar, ofreciendo un lugar de disfrute al aire libre con una fuerte identidad contemporánea y una cuidada relación con el entorno.
Uso en invierno
Al área cubierta se le suma un sistema de cortinas enrollables con superficie transparente. Esto permite capturar el calor dentro del espacio, potenciado con la posible colocación de calentadores a gas, sean de piso o de cielorraso.
Dear Client,
The project proposes transforming the terrace into a fully integrated living space, conceived as a natural extension of the home, where areas for relaxation, social interaction, and leisure are articulated, prioritizing comfort, privacy, and a strong relationship with the surrounding environment.
The guiding concept is based on the creation of a contemporary rooftop oasis, where warm materiality, vegetation, and the careful articulation of different levels generate a relaxed and sophisticated atmosphere. The design seeks a balance between clean lines and a welcoming perception, allowing the space to be enjoyed both day and night, in summer as well as in winter.
The possibility of using the shading system of the glazed area creates the opportunity for a new retractable usable surface that integrates harmoniously with the overall design. In this way, the terrace is structured through platforms at different levels, which organize the program and naturally guide circulation. This strategy allows for the differentiation of uses.
The following areas are clearly defined:
A relaxation area with sun loungers and generous surfaces designed for rest.
A social area on the retractable deck, equipped with tables and seating, conceived for informal gatherings.
A custom-designed jacuzzi area, composed of a shallow lounging zone and a hydromassage section, visually integrated with the rest of the space, acting as a focal point while adding freshness and dynamism.
A semi-covered area equipped with a countertop, dishwasher, refrigerator, and barbecue, which functions as the main gathering core and allows the terrace to be used under different weather conditions.
Materiality
The selection of materials responds to criteria of durability, low maintenance, and visual warmth. Light-toned continuous surfaces predominate, visually expanding the space and reflecting natural light, combined with wood cladding on walls and ceilings that adds texture and a more domestic, welcoming feel.
Wood is used as a unifying element, creating a balanced contrast with mineral surfaces and reinforcing the contemporary character of the project.
Vegetation
The incorporation of vegetation in strategically placed planters fulfills a dual function: environmental and spatial. It brings freshness, color, and life to the overall composition, while softening boundaries, enhancing privacy, and reinforcing the idea of an urban retreat.
Lighting
Lighting is conceived as warm and indirect, integrated into walls, steps, and horizontal planes. This approach enhances the architecture, emphasizes the different levels, and ensures comfortable nighttime use, creating an intimate and elegant atmosphere.
User Experience
The result is a terrace designed to be enjoyed at different times of the day, adaptable to various uses and scales of gathering. A space that combines functionality, aesthetics, and well-being, offering an outdoor living environment with a strong contemporary identity and a carefully considered relationship with its surroundings.
Winter Use
The covered area is complemented by a system of transparent roller curtains. This solution allows heat to be retained within the space, further enhanced by the possible installation of gas heaters, either freestanding or ceiling-mounted, ensuring comfortable use during colder seasons.