
Latina, LT, Italia
Esterno - Terrazzo
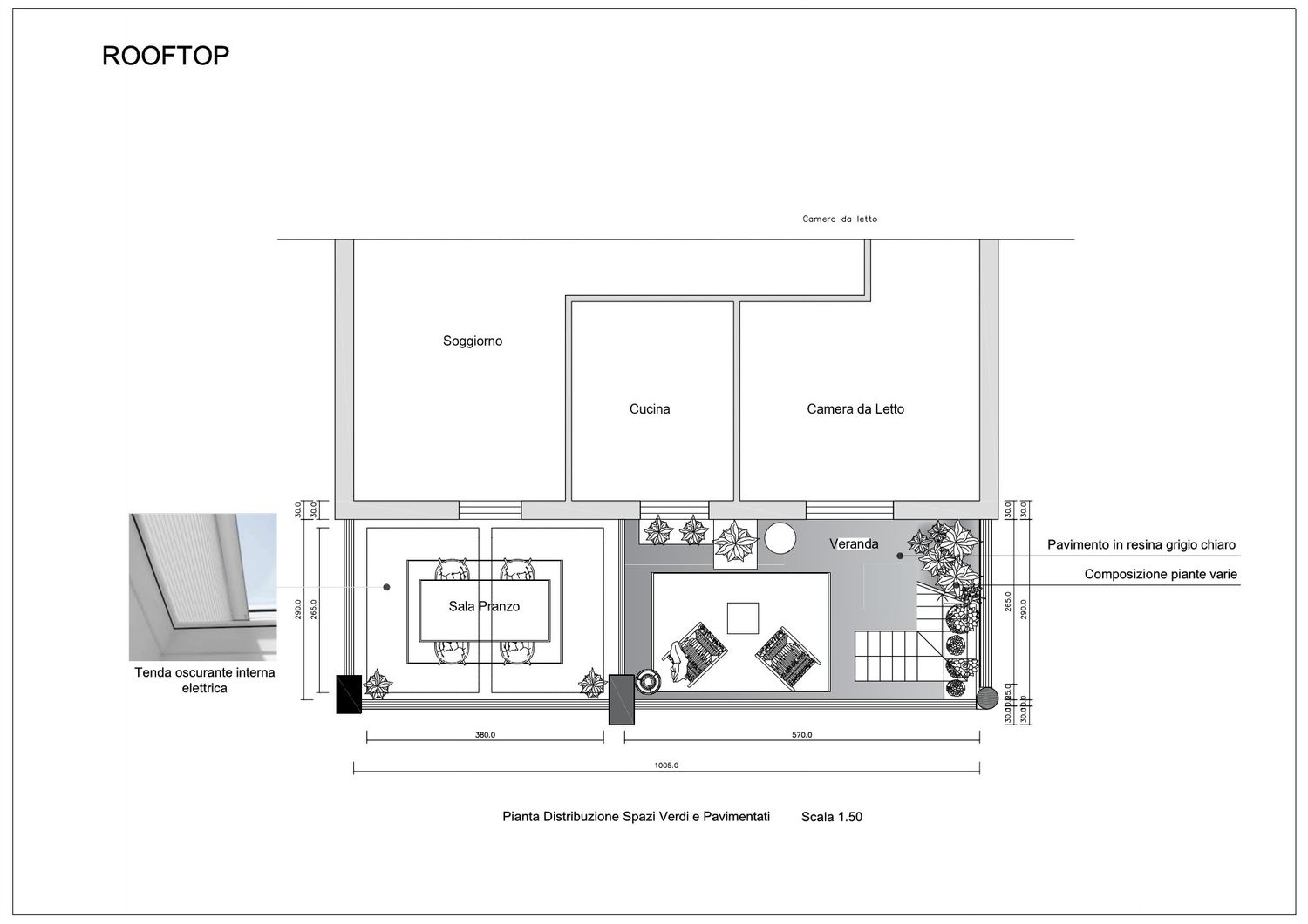
Lo sviluppo del progetto nasce dalla necessità di arredare la veranda a livello dell’appartamento e il terrazzo superiore, accessibile tramite scala.
Nella veranda, in continuità con la serra solare, è stata prevista una composizione di piante abbinata a un salottino dedicato al relax. Sono stati mantenuti i mobili in alluminio esistenti.
La serra solare conserva la sua funzione di sala da pranzo. A soffitto è stato previsto un sistema oscurante scorrevole elettrico, studiato per mitigare l’ingresso della luce naturale nei periodi di maggiore irraggiamento.
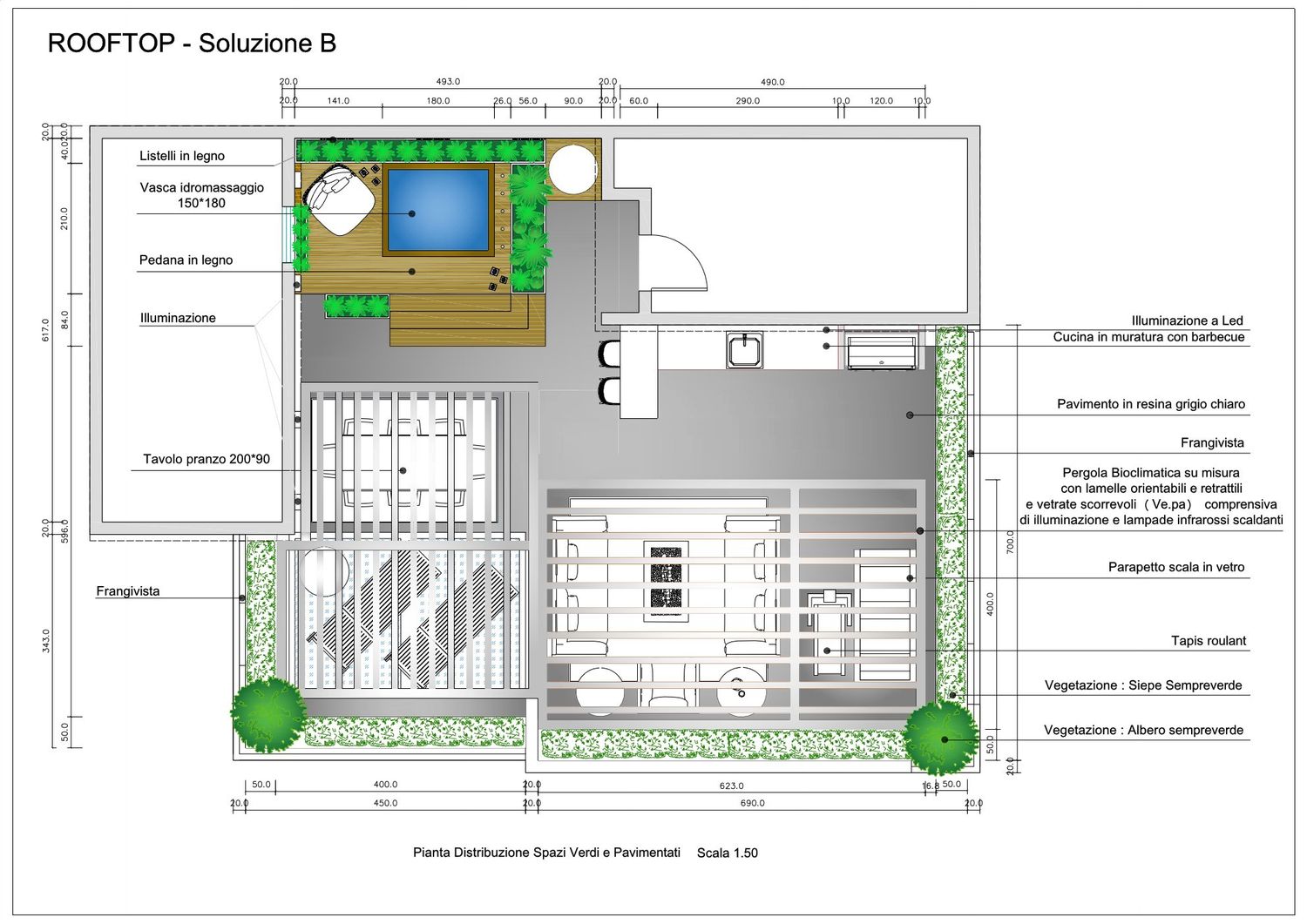
Nel terrazzo superiore è stata inserita, come da richiesta, una vasca idromassaggio da incasso di misure 150x180 ma che volendo può essere di dimensioni maggiorate. La scelta di dimensioni più contenute è dovuta al fatto che si dovrà necessariamente valutare in caso di maggiori dimensioni il peso della vasca con la relativa acqua a riempimento. La vasca è incassata all'interno di una piattaforma che si trova ad una quota di +55 cm e definisce una zona autonoma caratterizzata da rivestimento in legno, arricchita da vegetazione e da una piccola area relax.
La cucina esterna è stata progettata con moduli in alluminio incassati nella muratura, che funge anche da piano di lavoro. Tutta la muratura è rivestita in cemento-resina, conferendo un aspetto contemporaneo e uniforme.
È stata inoltre realizzata una zona relax/salotto coperta da una pergola bioclimatica, dotata di vetrate scorrevoli, illuminazione integrata e lampade riscaldanti, per consentirne l’utilizzo anche durante la stagione invernale.
La pergola si estende anche sopra la scala, evitando così la necessità di una chiusura dedicata. Questa scelta è stata dettata dal fatto che la realizzazione di una nuova volumetria chiusa con porta avrebbe comportato la richiesta di un permesso di costruire, in quanto configurabile come nuova cubatura.
All’interno della pergola è stato inoltre possibile ricavare uno spazio per il tapis roulant, collocato tra la scala e la zona salotto.
Sono state sviluppate due soluzioni alternative per la pergola:
Soluzione A
La pergola copre esclusivamente la zona salotto e la scala, mentre per la zona pranzo è previsto l’utilizzo di un ombrellone.
La porzione con vetrata calpestabile è stata attrezzata con due lettini prendisole/relax. Non è stata prevista una copertura fissa, in quanto sono già presenti tende oscuranti scorrevoli al piano sottostante, come precedentemente indicato.
Soluzione B
In questa soluzione la pergola si estende su tutta l’area, comprendendo scala, zona salotto/relax, zona pranzo e area con vetrata.
Solo la zona salotto/relax e la scala sono dotate di chiusure vetrate, mentre le altre aree rimangono aperte.
In questo caso la pergola dovrà essere realizzata in acciaio zincato, materiale che offre maggiore flessibilità progettuale, considerati i numerosi vincoli presenti.
Data l’estensione dell’intervento, si ritiene necessaria una autorizzazione condominiale e, probabilmente, anche una verifica a livello comunale, pur trattandosi di un manufatto removibile.
L’illuminazione è stata studiata prevedendo punti luce a parete, mantenendo la stessa tipologia di quelli esistenti, lampade da terra a sfera e una striscia LED nella zona cucina, collocata al di sotto del cornicione.
La vegetazione riveste un ruolo fondamentale nel progetto: è stata inserita una siepe sempreverde lungo tutto il parapetto e, nelle zone maggiormente esposte verso le abitazioni limitrofe, sono stati previsti anche frangivista.
La pavimentazione è prevista in cemento-resina, in continuità con il linguaggio contemporaneo dell’intervento.
Sperando di aver soddisfatto le sue richieste invio cordiali saluti.