
Rome, Metropolitan City of Rome Capital, Italy
Residenziale - Appartamento
Descrizione
Video of the attic: https://youtu.be/6pwGgigwPk8
- Version ITA -
- FRAZIONAMENTO ATTICO CON RIDISTRIBUZIONE DEGLI SPAZI INTERNA -
Ciao Designers,
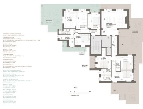
Vorrei dividere un grande attico di 244 mq interni commerciali e esterni 200mq circa.
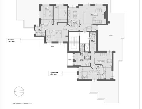
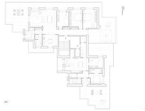
Si tratta di un appartamento molto grande che vorremmo dividere in due abitazioni. L'obiettivo è frazionare e redistribuire gli spazi internamente in modo funzionale e moderno. Gli appartamenti non dovranno essere uguali, ma sono richieste caratteristiche e grandezze differenti:
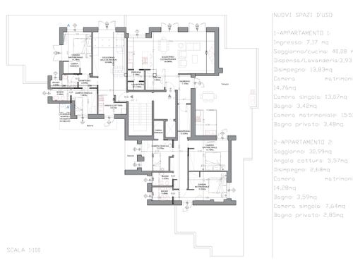
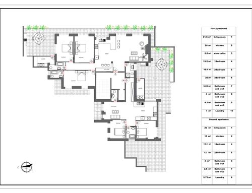
Primo appartamento:
- Salone grande con accesso diretto alla terrazza;
- Cucina che da sul salone (puo essere chiusa o chiusa parzialmente anche solo da una vetrata);
- 3 camere da letto (di cui almeno 2 matrimoniali, quindi di almeno 14mq);
- 2 bagni
- predisposizione di armadiature / lavanderia (puo essere anche esterna)
- terrazza con angolo cucina esterna;
- cantina vini creata con pareti vetrate.
In questo appartamento dovrà essere valorizzato il camino che vogliamo sia nella zona giorno
Secondo appartamento:
- Salone grande con accesso diretto alla terrazza;
- Cucina che da sul salone (puo essere chiusa o chiusa parzialmente anche solo da una vetrata);
- 2/3 camere da letto;
- 2 bagni
- predisposizione di armadiature / lavanderia (puo essere anche esterna)
Considerate che gli ingressi degli appartamenti, che dovranno essere indipendenti, possono essere posizionati in ogni punto del pianerottolo (tranne al posto dell'ascensore). Quindi non vogliamo creare pianerottoli condivisi tra i due appartamenti.
Negli ultimi tempi ci siamo informati parecchio sulle regolamentazioni di Roma e su quali sono i vincoli da rispettare li elenco di seguito facendo anche riferimento alla planimetria allegata:
- ogni casa che verrà realizzata dovrà avere la propria colonna di scarico (acque nere) indipendente indico le due colonne nella planimetria in verde.
- Le finestre attuali, non possono essere spostate, ma possono essere divise in due ambienti. L'importante è che la superficie della finestra sia di 1/8 rispetto i mq delle camere.
COSA CI PIACEREBBE:
- frazionamento, ridistribuzione degli ambienti e planimetria arredata,
- avere 3 camere in entrambe le case
- ambienti regolari
- Version ENG -
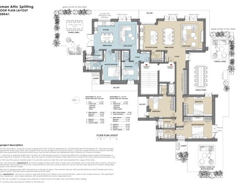
ATTIC SPLITTING WITH INTERNAL SPACE RECONFIGURATION -
Hello Designers,
I would like to divide a large attic of approximately 244 mq internally and 200 mq externally. It is a very spacious apartment that we would like to split into two dwellings. The goal is to split and redistribute the spaces internally in a functional and modern way. The apartments don't have to be identical, but different features and sizes are required:
First Apartment:
- Large living room with direct access to the terrace;
- Emphasis on the fireplace in the living area.
- Kitchen opening to the living room (can be closed or partially closed, even with just a glass partition);
- 3 bedrooms (at least 2 doubles, each at least 14 sqm);
- 2 bathrooms;
- Preparation for wardrobes/laundry (can also be external);
- Terrace with an outdoor kitchen corner;
- Wine cellar created with glass walls.
Second Apartment:
Large living room with direct access to the terrace;
Kitchen opening to the living room (can be closed or partially closed, even with just a glass partition);
2/3 bedrooms;
2 bathrooms;
Preparation for wardrobes/laundry (can also be external).
Note that the entrances to the apartments, which must be independent, can be positioned at any point on the landing (except where the elevator is located). We do not want to create shared landings between the two apartments.
Recently, we have gathered information on the regulations in Rome and the constraints to be respected. I list them below, also referring to the attached floor plan:
- Each house that will be created must have its own independent drainage column (blackwater). I indicate the two columns in green on the floor plan.
- The current windows cannot be moved but can be divided into two spaces. The important thing is that the window area is 1/8 of the square meters of the rooms.
WHAT WE WOULD LIKE:
Fragmentation, redistribution of spaces, and furnished floor plan;
3 bedrooms in both houses;
Regular spaces.