
Rome, Metropolitan City of Rome Capital, Italy
Commerciale - Retail
Descrizione
ENG:
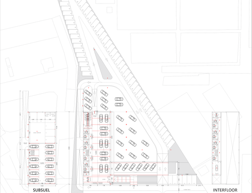
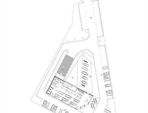
It is going to be a car showroom which will have to be built on an area of 6,000 m2 and will have a covered area of approximately 1200 m2 over 2 floors (600 m2 per floor). The plan must be rectangular with a dimension of about 40x15 meters.
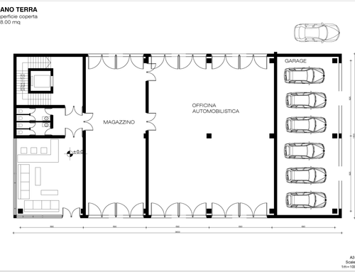
The offices and showroom must be located on the ground floor, while the workshop, warehouses, and an additional exhibition space shall be on the lower floor.
Then, the building must have a modern structure with a variety of windows on the side facing the road. The offices will also have to be glazed to favor light and space.
Additionally, a space must be provided within the area for rechargeable electric cars, a parking area for customers, and shelters to place photovoltaic panels where cars can be displayed.
I would also like small flower beds inside the area where I can put ornamental succulents.
SPA:
Se trata de una sala de exposición de automóviles que se construirá en una superficie de 6.000 metros cuadrados y tendrá una superficie cubierta de aproximadamente 1.200 metros cuadrados en 2 plantas (600 metros cuadrados por planta). La planta será rectangular y tendrá unas dimensiones aproximadas de 40x15 metros.
En la planta baja habrá oficinas y la sala de exposiciones, en la planta inferior el taller, almacenes y un espacio de exposición adicional.
El edificio deberá tener una estructura moderna con muchas ventanas en el lado que da a la calle. Las oficinas también estarán acristaladas para favorecer la luz y el espacio.
Dentro de la zona deberá haber un espacio para recargar coches eléctricos, una zona de aparcamiento para los clientes y marquesinas donde colocar paneles fotovoltaicos para exponer los coches.
También me gustaría que dentro de la zona hubiera pequeños parterres donde colocar plantas ornamentales.
ITA:
Si tratta di un autosalone che dovrà essere costruito su un area di 6.000 mq e che avrà una superficie coperta di circa 1200 mq su 2 piani (600 mq a piano). la pianta dovrà essere rettangolare con una dimensione di circa 40x15 metri
Nel piano terra dovranno essere collocati gli uffici e lo show room, nel piano inferiore l'officina i magazzini e un ulteriore spazio espositivo.
il fabbricato dovrà avere una struttura moderna con molte vetrate sul lato rivolto verso la strada. Anche gli uffici dovranno essere a vetrate per favorire la luce e gli spazi.
Si dovrà prevedere uno spazio all'interno dell'area per la ricarica di auto elettriche un parcheggio per i clienti e delle pensiline dove collocare pannelli fotovoltaici dove possano essere messe in esposizione le autovetture.
Vorrei anche all'interno dell'area delle piccole aiuole dove poter mettere delle piante grasse ornamentali.