
25040 Monticelli Brusati, Province of Brescia, Italy
Residenziale - Appartamento
Descrizione
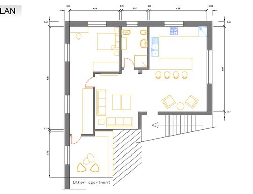
Trovare un'ottimale distribuzione degli spazi interni e studiare un arredamento in stile moderno. Il bagno deve essere rivisto ed eventualmente leggermente amplianto eliminando l'antibagno con l'inserimento di una box doccia. La stanza contrassegnata con la lettera B, fa attualmente parte di un appartamento confinante, che viene inglobato nell'appartamento contrassegnato con la lettera A. Tra l'appartamento A e il locale B attualmente c'è una parete dello spessore di cm 15 nella quale deve essere creata un'apertura o può esser eintegralmente rimossa. L'unico vincolo strutturale è un pilastro contrassegnato nella piantina.
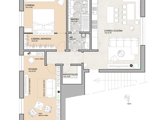
Gli spazi che si chiede vengano creati sono: soggiorno cuicina in una soluzione open space, una stanza relax/ascolto musica/lettura, una camere da letto, una dotata con spaziosa cabina armadio, bagno (senza antibagno). Il pavimento attualmente presente sarà rimosso adottanto la scelta suggerita nel progetto che risulterà il migliore.
[English]
Find an optimal distribution of interior spaces and study modern-style furnishings. The bathroom must be reviewed and eventually slightly expanded by removing the pre bathroom room with the insertion of a shower. The room marked with the symbol B, is currently part of a neighboring apartment, which will be incorporated into the apartment marked with the symbol A. Between the apartment A and the room B is currently a wall of 15 cm thick in which an opening must be created or it can be completely removed. The only structural constraint is a pillar marked in the map.
The spaces that are asked to be created are: living room and kitchen in an open space solution,one relax room (study or reading room), one bedrooms, one with a spacious walk-in closet, bathroom (without pre bathroom). The current floor have to be replaced with the one proposed by the winner