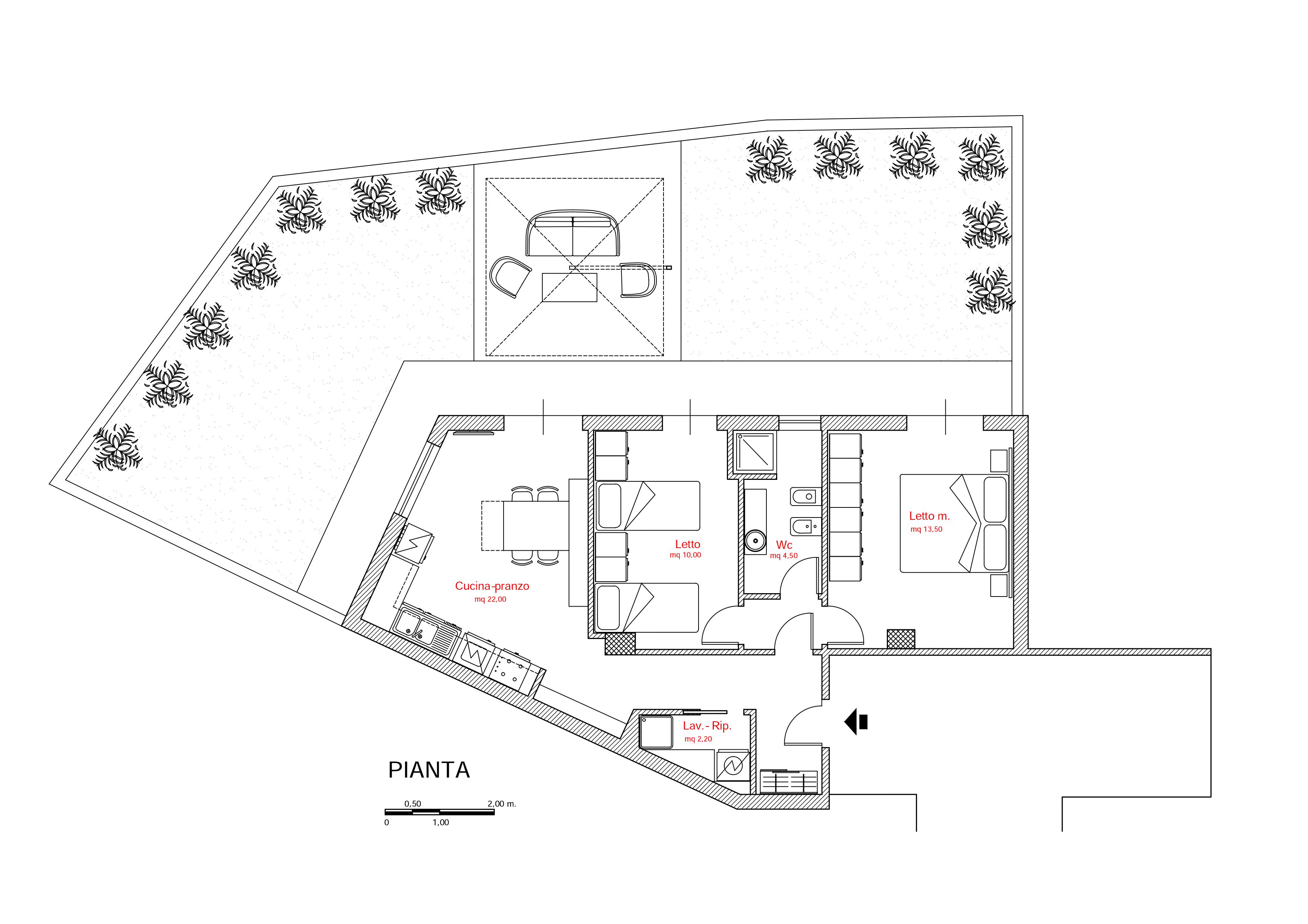
Descrizione
Vorremmo ristrutturare completamente l'immobile, ricavando una camera aggiuntiva mantenendo il bagno finestrato (rimpicciolito sostituendo la vasca con la doccia) ovviamente facendo sala con angolo cottura, cercando magari di recuperare lo spazio dell'entrata (ora c'è solo un armadio su misura). Idee per sfruttare al meglio lo spazio esterno (giardino largo 5 mt).
I soffitti sono alti 3 mt.
Le uniche parti portanti sono l'angolo della cucina con la sale e la colonna (ininfluente) sulla parte sinistra della camera
L'immobile si trova a Santa Margherita Ligure in provincia di Genova