
28100 Novara, Province of Novara, Italy
Residenziale - Casa
Descrizione
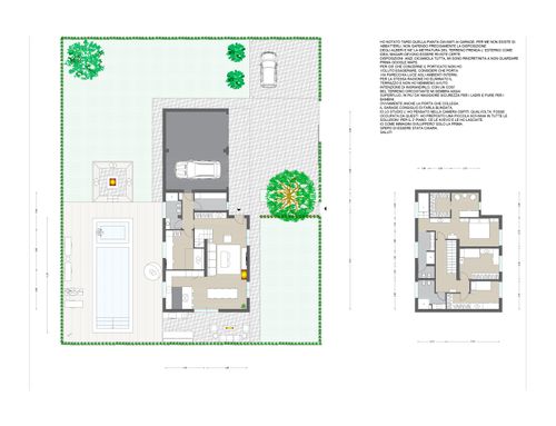
Questo progetto mira alla ristrutturazione totale di una villa che vorrebbe diventare l'abitazione di una giovane famiglia. La casa ad oggi (153 mq circa), è composta da una soluzione abitativa su due piani di pianta regolare con al suo fianco garage doppio e cassero. La nostra intenzione sarebbe quella di ampliare, non di molti mq, il piano terra a favore di una zona giorno più ampia, aperta e luminosa. Ci piacerebbe infatti poter inserire grandi infissi per donare alla casa più luce possibile e rendere lo spazio molto aperto per organizzare cene con famiglia e amici. Idealmente vorremmo una casa composta da:
Piano terra- salone (in cui vorremmo inserire un bel camino), zona pranzo, ampia cucina (con spazio per inserire una grande isola o penisola), un bagno e una camera multifunzionale (ripostiglio, lavanderia, locale tecnico). Eventualmente una piccola camera degli ospiti (questa però non fondamentale).
Primo piano- camera matrimoniale (se possibile con bagno privato e cabina armadio), bagno e due camere ( o un'unica camera ma abbastanza ampia), se ci fosse lo spazio anche un piccolo ripostiglio.
In questo momento la casa è anche dotata di una cantina che non sappiamo se tenere e rinnovare o eliminare completamente.
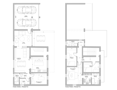
Per quanto concerne il piano terra ci piacerebbe, come già accennato, realizzare un open-space o, come alternativa altrettanto valida, uno spazio ricevimento (sala e sala da pranzo) accostato ad una cucina con un'ampia apertura su questa zona. Ci piacerebbe disporre infine all'esterno di un portico o soluzione ombreggiata dove organizzare pranzi all'aperto.
Vorremmo disporre di un garage doppio e, se possibile, ma non indispensabile, con accesso diretto alla casa.
Illuminazione con faretti nella maggior parte della casa, punti luce su tavolo e isola per un ambiente caldo e accogliente, impianto di climatizzazione.
Stile nordico, legno naturale e toni neutri.
EENGLISH VERSION
This project aims at the total renovation of a villa that would like to become the home of a young family. The house to date (about 153 square meters), consists of a housing solution on two floors with a regular plan with a double garage and formwork at its side. Our intention would be to expand the ground floor, not by many square meters, in favor of a larger, open and bright living area. In fact, we would like to be able to insert large fixtures to give the house as much light as possible and make the space very open to organize dinners with family and friends. Ideally we would like a house consisting of:
Ground floor - living room (where we would like to insert a nice fireplace), dining area, large kitchen (with space to insert a large island or peninsula), a bathroom and a multifunctional room (closet, laundry, technical room). Possibly a small guest room (but this is not essential).
First floor - double bedroom (if possible with private bathroom and walk-in closet), bathroom and two bedrooms (or one room but large enough), if there was space also a small closet.
At this moment the house is also equipped with a cellar that we do not know whether to keep and renovate or completely eliminate.
As far as the ground floor is concerned, as already mentioned, we would like to create an open-space or, as an equally valid alternative, a reception space (living room and dining room) next to a kitchen with a wide opening onto this area. Finally, we would like to have a porch or shaded solution outside for organizing outdoor dining.
We would like to have a double garage and, if possible, but not essential, with direct access to the house.
Lighting with spotlights in most of the house, light points on the table and island for a warm and welcoming environment, air conditioning system.
Nordic style, natural wood and neutral tones.
VERSION EN ESPANÕL
Este proyecto tiene como objetivo la renovación total de una villa que quisiera convertirse en el hogar de una familia joven. La vivienda hasta la fecha (unos 153 metros cuadrados), consta de una solución de vivienda en dos plantas con planta regular con garaje doble a lado. Nuestra intención sería ampliar la planta baja, no en muchos metros cuadrados, a favor de una sala de estar más amplia, abierta y luminosa. De hecho, nos gustaría poder insertar grandes luminarias para dar la mayor cantidad de luz posible a la casa y hacer el espacio muy abierto para organizar cenas con familiares y amigos. Idealmente nos gustaría una casa que constara de:
Planta baja - sala de estar (donde quisiéramos agregar una linda chimenea), comedor, amplia cocina (con espacio para agregar una gran isla o península), un baño y una sala multifuncional (armario, lavandería, sala técnica). Posiblemente una pequeña habitación de invitados (pero esto no es esencial).
Primer piso - habitación doble (si es posible con baño privado y vestidor), baño y dos habitaciones (o una habitación pero lo suficientemente grande), si hubiera espacio también un pequeño armario.
En este momento la casa también está equipada con un sótano que no sabemos si mantener y reformar o eliminar por completo.
En cuanto a la planta baja, nos gustaría, como ya se ha comentado, crear un espacio diáfano o, como alternativa igualmente válida, un espacio de recepción (salón y comedor) junto a una cocina con amplia apertura a esta zona. Finalmente, nos gustaría tener un porche o una solución con sombra en el exterior para organizar cenas al aire libre.
Nos gustaría tener un garaje doble y, si es posible, pero no imprescindible, con acceso directo a la casa.
Iluminación con focos en la mayor parte de la casa, puntos de luz en mesa e isla para un ambiente cálido y acogedor, sistema de climatización.
Estilo nórdico, madera natural y tonos neutros.