
Rome, Metropolitan City of Rome, Italy
Residenziale - Zona Giorno/Notte
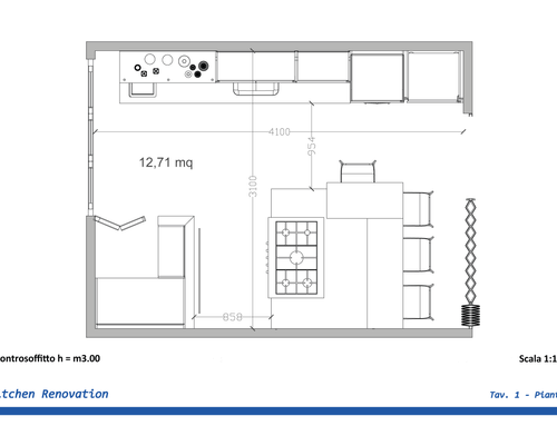
Descrizione
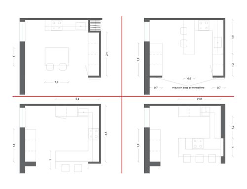
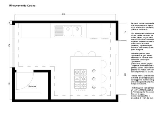
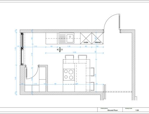
I renovated the whole apartment except for the kitchen that I decided to leave last. I love a modern style. I love cooking and therefore I need to have an arrangement with all the necessary equipment. I would like to transform the kitchen into a semi open space with the living room with a movable wall.
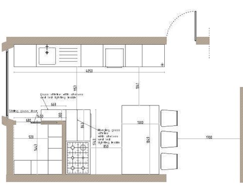
I would like to place, near the window, a small food storage with door, with shelves high up to the ceiling.
Ho ristrutturato tutto l'appartamento, tranne la cucina che ho deciso di lasciare per ultima. Amo uno stile moderno. Adoro cucinare e quindi ho bisogno di avere a disposizione tutta l'attrezzatura necessaria. vorrei trasformare la cucina in uno spazio semi open space con il salotto con una parte mobile. Vorrei collocare, vicino alla finestra una piccola dispensa con porta, con scaffali alti fino al soffitto.