
Pieve di Soligo, TV, Italia
Residenziale - Villa
Progetto di ristrutturazione ed ampliamento con conservazione e rinforzo delle strutture esistenti, con realizzazione di aree esterne per il relax.
All'interno dell'abitazione verranno realizzati:
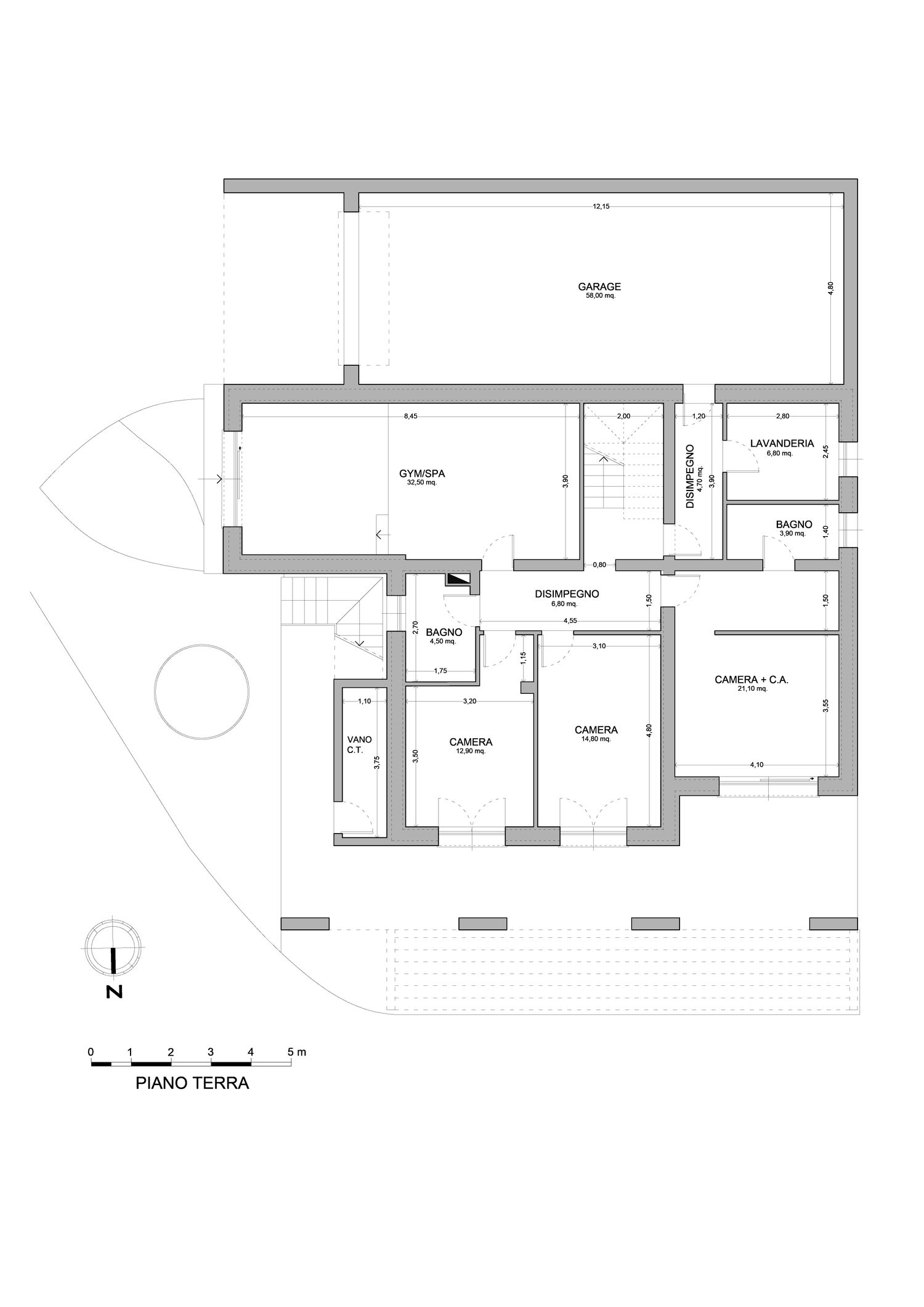
PIANO TERRA: zona notte con tre camere da letto, di cui una matrimoniale con cabina armadio passante, due bagni di cui uno ensuite per la camera matrimoniale, locale lavanderiae locale relax-gym-spa, più garage per n°3 posti auto con accesso diretto dall'interno del piano;
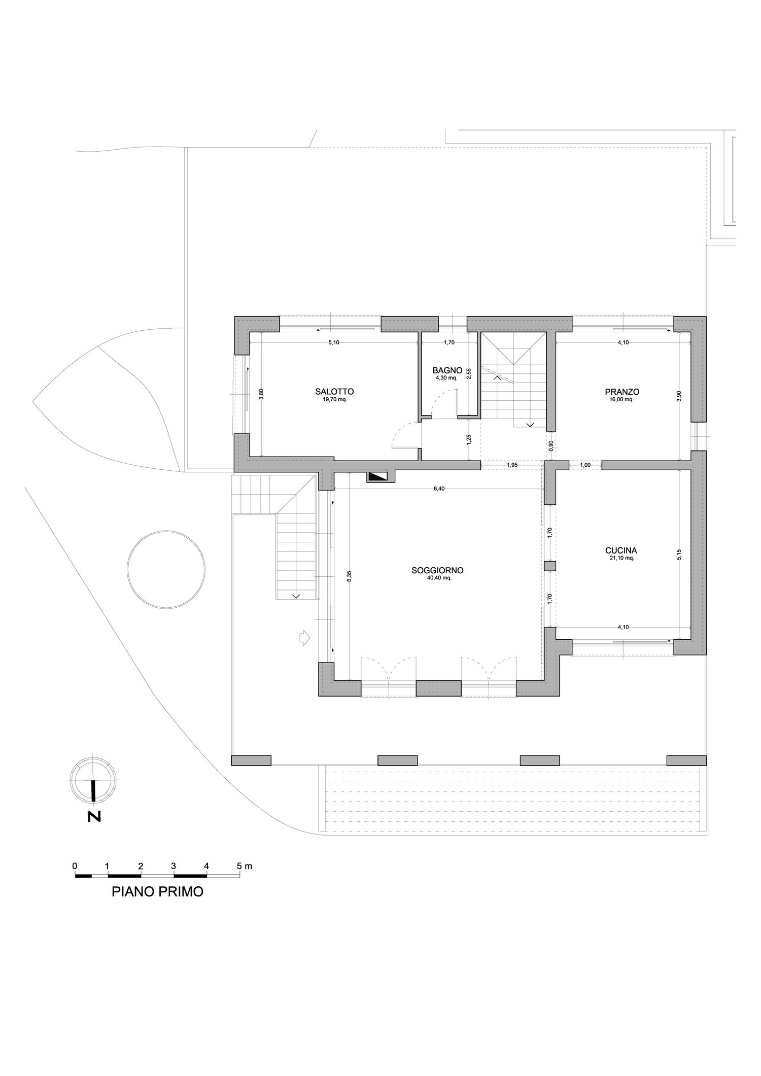
PIANO PRIMO: zona giorno con salone, cucina separata con scorrevoli in vetro, sala da pranzo, salottino. Il piano ha un'ampia terrazza loggiata con affaccio verso valle, più accesso diretto alla zona solarium-relax con piscina. La zona solarium viene realizzata sulla copertura del garage, la piscina ha una vasca principale e una piccola vasca wellness. Il piano primo è connesso al piano terra tramite scala interna e scala esterna con accesso alla terrazza loggiata.
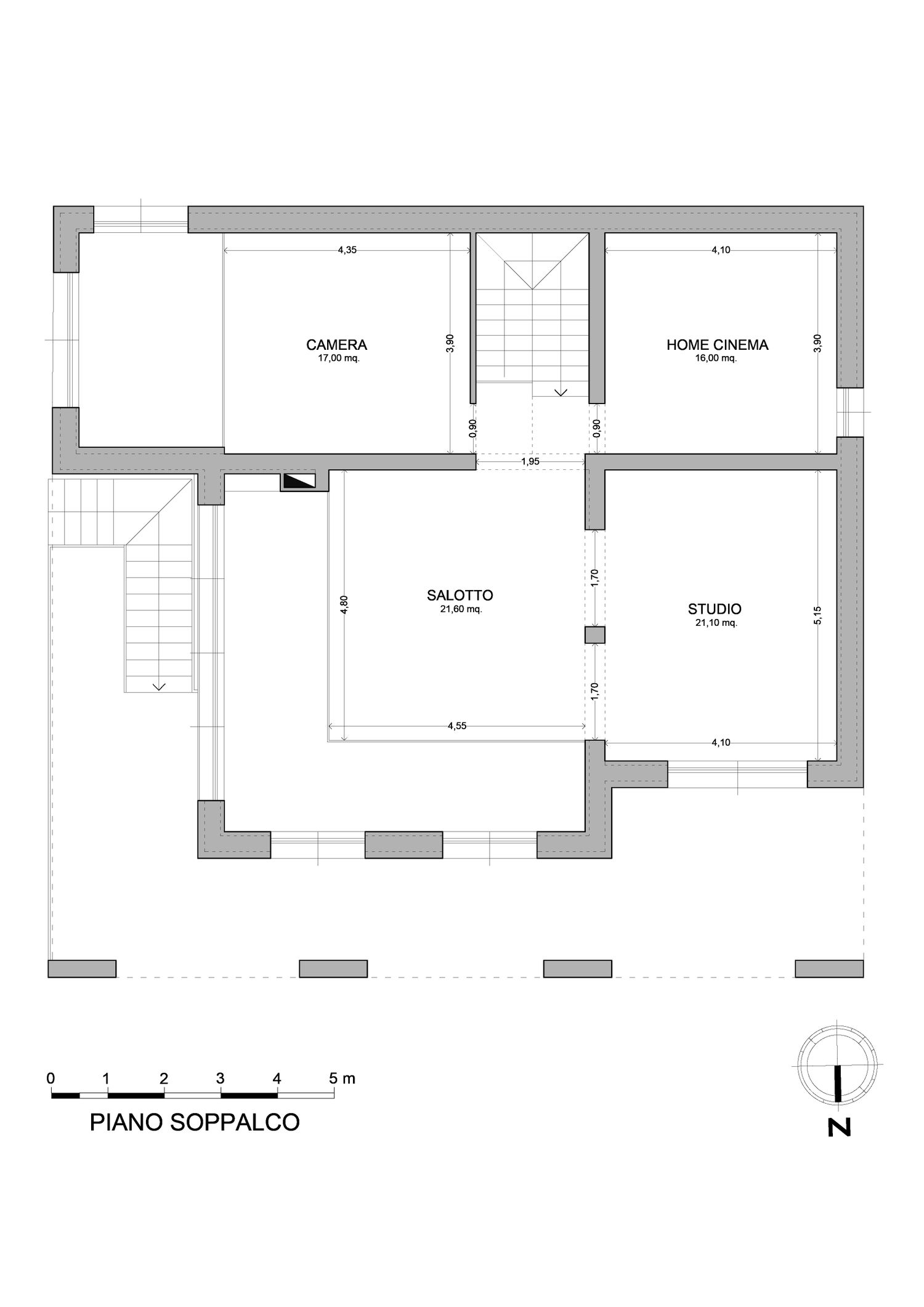
PIANO SOPPALCO: zona relax con salotto, studio, salottino home cinema e camera per gli ospiti.