
Pieve di Soligo, TV, Italia
Residenziale - Villa
CONTESTO
La villa si inserisce all'interno di un contesto paesaggistico straordinario, di notevole valore storico e culturale, giustamente vincolato e tutelato. L'edificio esistente non è conforme alle tradizioni costruttive locali ma ritengo che la sua ristrutturazione debba partire da una valorizzazione del contesto ambientale in cui si trova.
Il terreno collinare permette la realizzazione di terrazzamenti di varie altezza. Due muri molti alti diventano le fondamenta della casa e separano il cortile di servizio al PT, il giardino d'ingresso a nord al P1 e la corte privata della camera padronale al PT. Il giardino verso valle è modellato su microterrazzamenti con una piscina a sfioro. Le aree in pendenza di raccardo tra i piani di nuova realizzazione e il pendio naturale vengono ricoperte di vegetazione autoctona (arbusti, graminacee e simili, tipici della macchia meditteranea) e diventano un filtro di separazione tra lo spazio domestico e quello naturale. Una piscina a sfioro invita lo sguardo a rivolgersi verso la valle.
La strada esistente è stata leggermente modificata per consentire l'accesso carrabile e la realizzazione del cortile di servizio. Questo cortile è collegato alla dispensa e cucina al P1, nonchè all'area pranzo a bordo piscina, e per questo può ospitare una cucina esterna a servizio di entrambi.
L'accesso principale al P1 avviena dal prospetto nord. Due grandi vasche verdi di graminacee e arbusti aromatici inviatano gli ospiti ad essere accolti in casa. Su questi cortili affacciano gli spazi di servizio e lo studio.
PROSPETTI
I prospetti esterni richiamano le costruzioni tradizionali locali nelle geometrie e nei materiali ma vengono interpretati con un linguaggio fresco e contemporaneo. La bocromia sottolinea la diversa funzione degli spazi contenunti ma richiama le colorazioni tipiche delle case di campagna locali. Anche la forma allungata aderisce meglio al modello di avitazione tipico, rispetto all'edificio esistente più compatto tipico dell'edilizia degli anni 60-70. Il prospetto principale e sud richiama il fienile. Al piano primo una successione di pilastri regolari richiama le grandi aperture dei locali dedicati alla rimessa del fieno, mentre al piano inferiore le finestre ridotte servivano ad illuminare ed arieggiare i locali di servizio (deposito attrezzi e ricovero per animali). Anche in questo progetto il portico al piano primo è a servizio del piano nobile e serve a mascherare le grandi vetrate della zona pranzo e soggiorno, mentre il piano inferiore con le aperture ridotte ospita la zona notte.
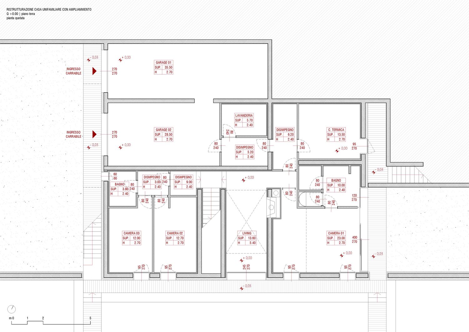
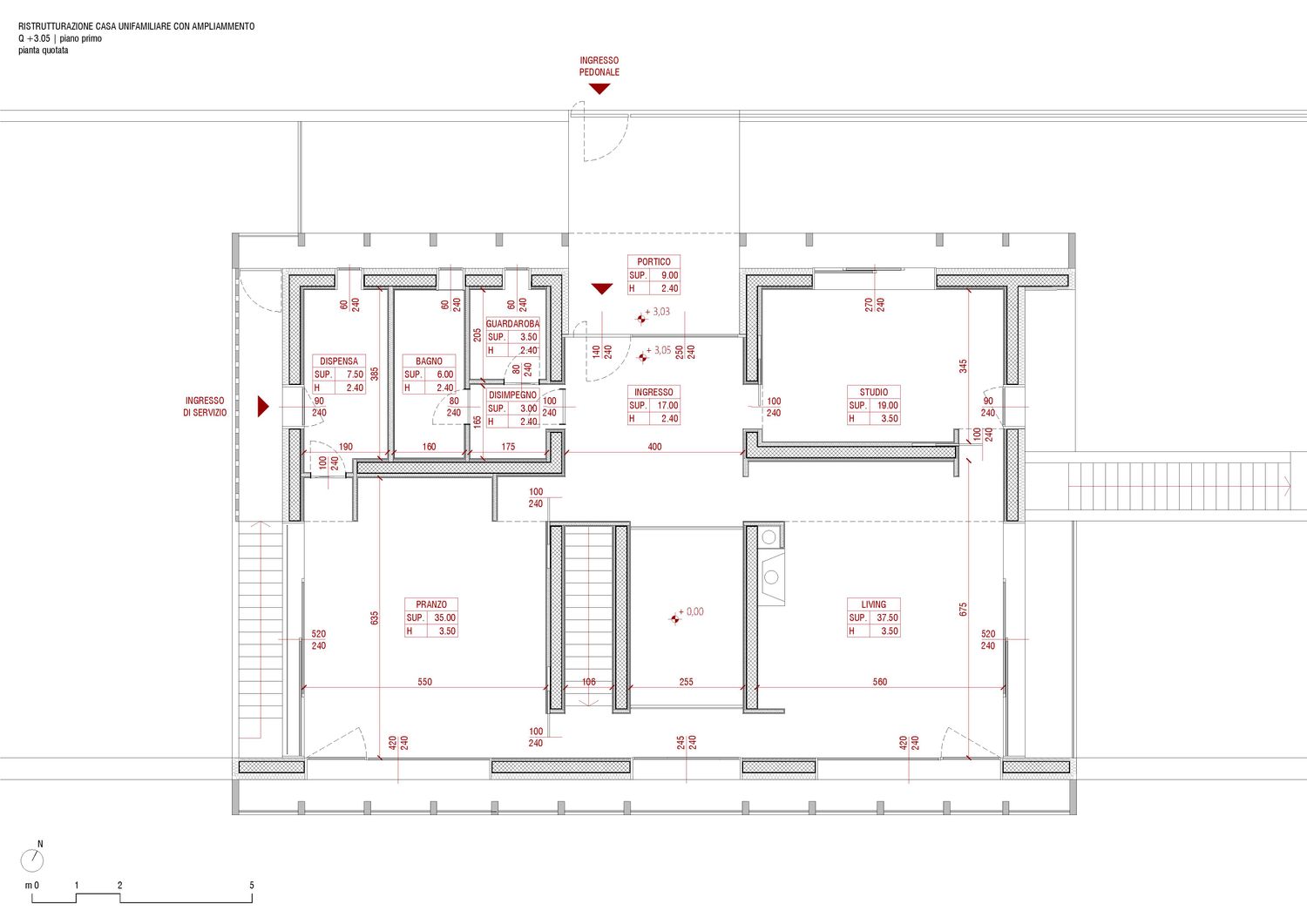
DISPOSIZIONE INTERNA
L'accesso avviene dell'ampio portico al piano primo lungo il prospetto nord. Lo spazio dell'ingresso manifesta la dimensione della villa con un affaccio sullo spazio a doppia altezza che si apre sul giardino e sul paesaggio della valle (vedi bozza render interno). Dall'ingresso si può accedere ad uno spazio di servizio (bagno e guardaroba), ad uno studio (camera degli ospiti con accesso ad un giardino dedicato), soggiorno (con camino e tetto a falda), cucina-pranzo (con annessa dispensa e collegamento al cortile di servizio). Questo piano è molto luminoso e aperto sul paesaggio circostante e si configura come un open space con la possibilità di essere separato in base alle diverse necessità.
scendendo al piano inferiore troviamo un piccolo spazio comune dotato di camino/stube, 3 camere da letto matrimoniali, 2 bagni, lavanderia, centrale termica e garage. Questi ultimi volendo possono essere allungati. Le camere si affacciano direttamente sul giardino. La camera padronale è dotata di un bagno privato fiestrato con vasca, doppio lavabo, doccia e wc separati. Un cortile privato rivolto a est consente di godersi uno spazio intimo in cui può trovare spazio una vasca idromassaggio.
STRUTTURE
Tutte le murature possono essere realizzate in cemento armato e sono disposte in entrambe le direzioni. un maggiore approffondimento per lo schema statico puLo schema statico definitvo può essere approfondito in una fase successiva ma non si riscontrano grandi problematiche per l'adattamento sismico.
Vengono fatti dei piccoli aggiustamenti del perimetro esterno delle strutture esistenti per regolarizzarle.
VOLUMI
I volumi corrispondono a quanto previsto dalle normative nazionali e locali e dalle vostre indicazioni. Eventuali modifiche possono essere facilemnte integrate avendo dei volumi in esubero per gli interrati (garage) e potendo intervenire nel ridurre gli ampi scpazi dedicati.
SOLUZIONE COMPATTA
Nel file DWG è presente una seconda versione più compatta, che riprende la superficie esistente aggiungendo un piano soppalcato per lo studio/camera degli ospiti.
Vi ringrazio per la qualità del progetto, l'attenzione e la cura dedicati.
Rimango a disposizione per ulteriori chiarimenti.