
Pieve di Soligo, TV, Italia
Residenziale - Villa
Saludo cordial:
Se propone la rehabilitación de una vivienda unifamiliar situada en un entorno agrícola y colinar, con vistas al valle, en el Municipio de Pieve di Soligo y dentro del Sitio Patrimonio de la Humanidad de la UNESCO “Las Colinas del Prosecco de Conegliano y Valdobbiadene.”
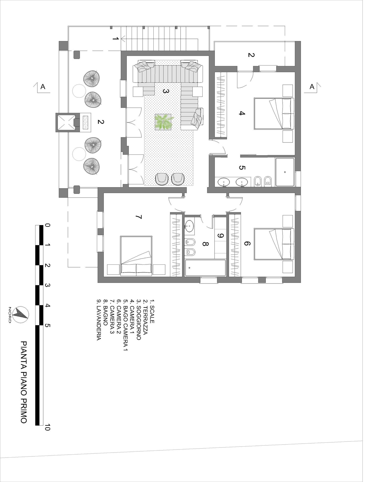
El objetivo consiste en la rehabilitación de la unidad habitativa mediante modificaciones internas, de fachada y su ampliación. La propuesta prevé desarrollar la zona de día en la planta primera y la zona de noche en la planta baja, comunicadas por una escalera interior. Se propone un garaje doble amplio y funcional.
En el exterior, se propone crear una zona de relax con piscina, orientada al sur hacia el valle, teniendo en cuenta los desniveles del terreno circundante.
Dado el contexto agrícola, excluyendo las terrazas, la cubierta del edificio será a dos aguas. El concepto moderno y minimalista se integra de manera armoniosa en el paisaje agrícola Patrimonio UNESCO, utilizando también materiales y acabados locales como soluciones de integración.
Se propone en la planta baja: zona de noche con al menos 3 dormitorios, 2 baño y una lavandería, y en la planta primera: amplia zona de día (cocina y salón) y 1 baño.
Gracias por la atención.