🔥 CYBER MONDAY 24H: -60% su tutti i prezzi del sito! Solo fino a mezzanotte. Usa il codice CYBERMONDAY25 👉🏼
img

Ristrutturazione casa

Garlate, LC, Italia

Residenziale - Villa

Paola Bini

  • interior-designer
  • Terricciola, Italy
Descrizione Progetto

ITA

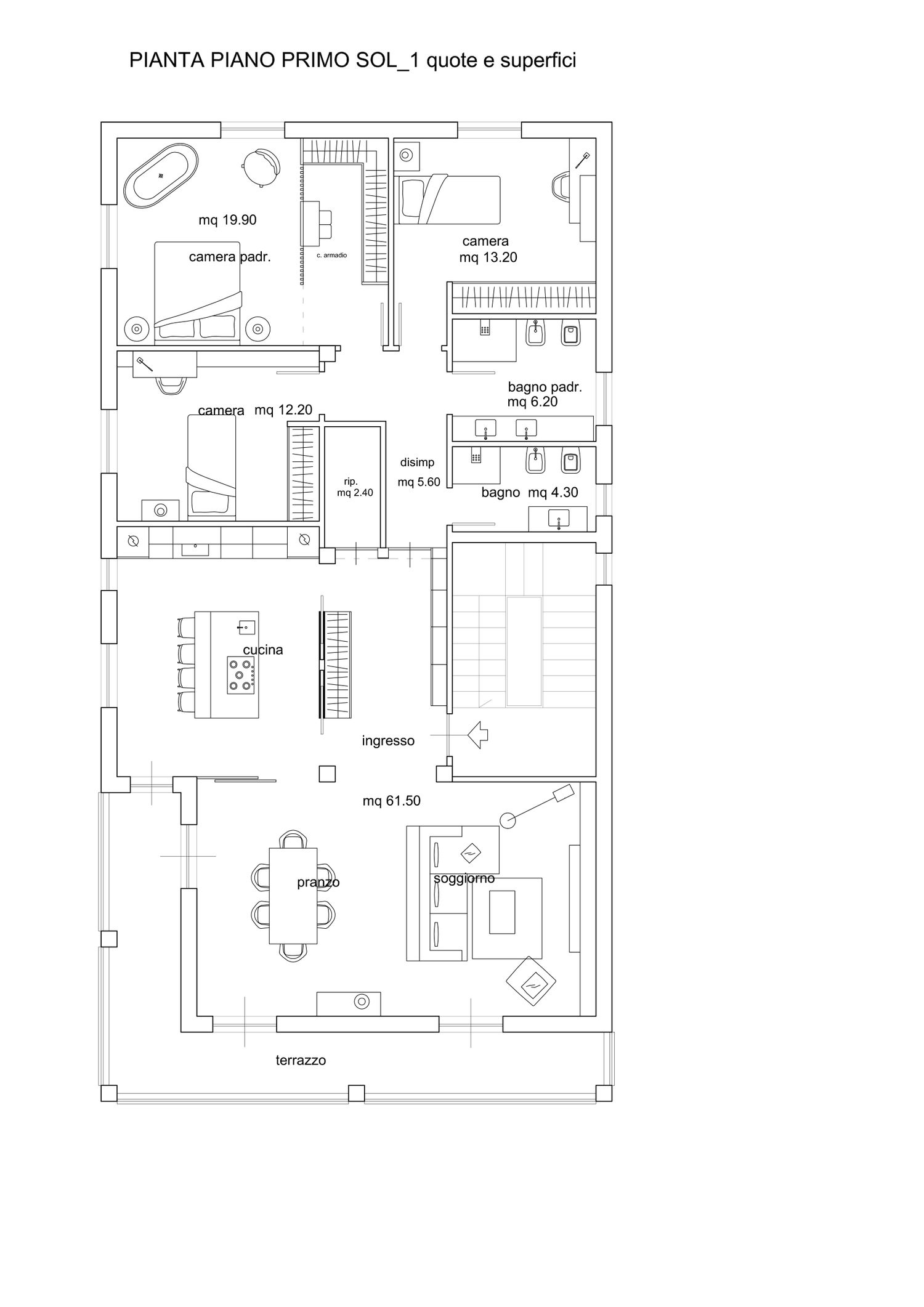
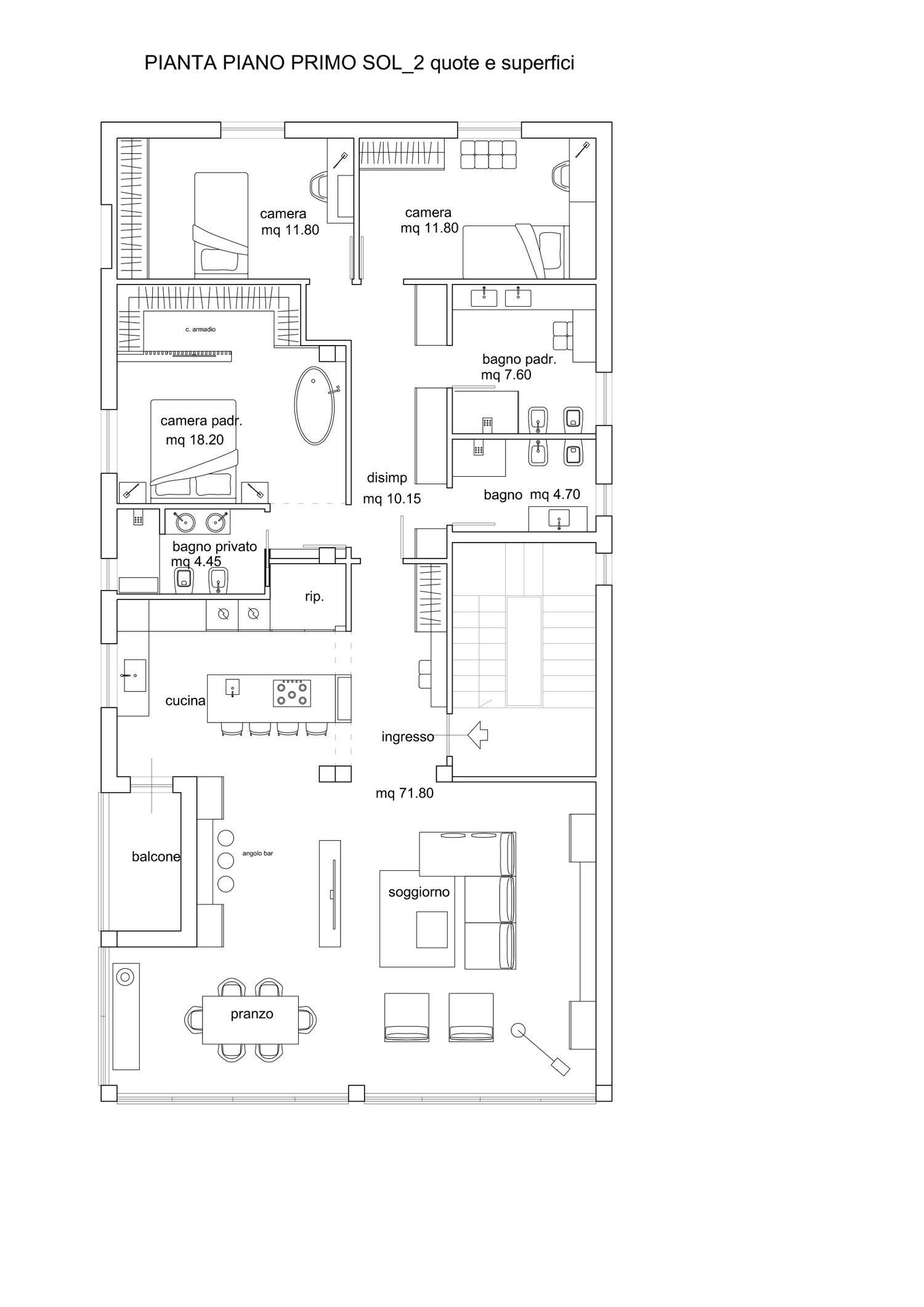
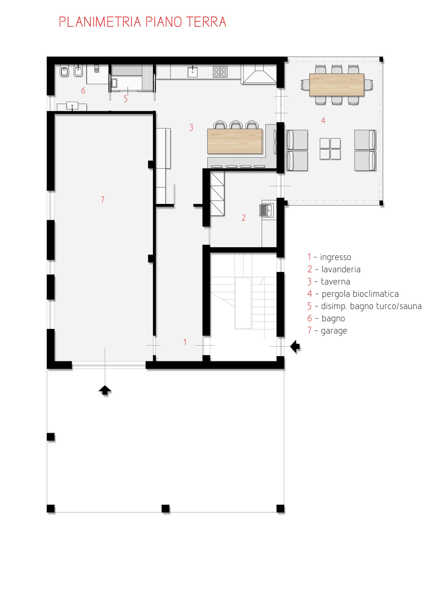
Per spiegare le potenzialità che l’immobile può offrire sono state proposte due soluzioni che si differenziano per il fatto che una è meno invasiva offrendo quando richiesto nello spazio attualmente dedicato all’abitazione mentre l’alta prevede l’ampliamento del salone con vetrate scorrevoli che si vanno a collocare dove attualmente è presente il parapetto del balcone così da avere una ampio spazio living estremamente luminoso e che può offrire molte funzioni. Il piano terra è dedicato al box doppio, una grande taverna con possibilità di essere estesa anche all’esterno ed un comodo bagno e lavanderia di servizio. Al piano primo si giunge nel grande living molto spazioso ed arioso con possibilità di separare la cucina tramite ampi scorrevoli a scomparsa per poi giungere nel salone con zona pranzo e zona divani oltre ad una comoda libreria con ulteriore funzione smart-working. Particolare attenzione è stata rivolta alla funzionalità con grandi armadiature a scomparsa oltre ad un comodo ripostiglio a servizio della cucina. Entrando nel reparto notte abbiamo subito un primo bagno ospiti per poi avere le camere e tutti i servizi come da vostre richieste. Lo stile adottato è contemporaneo con toni neutri in abbinamento ad elementi materici leggermente più scuri così da valorizzare gli ambienti.


ENG

To illustrate the property's potential, two solutions were proposed. One is less invasive, making use of the space currently dedicated to living, while the other involves expanding the living room with sliding glass doors that will be placed where the balcony railing currently stands, creating a large, extremely bright living space that can accommodate a variety of functions. The ground floor features a double garage, a large basement that can be extended outside, and a convenient bathroom and laundry room. The first floor leads to a spacious and airy living room with the option of separating the kitchen via large sliding doors. This leads to the living room with a dining area and sofa seating, as well as a convenient library with an additional smart-working function. Particular attention was paid to functionality, with large concealed wardrobes and a convenient storage room serving the kitchen. Entering the sleeping area, we immediately find a first guest bathroom, followed by the bedrooms and all the amenities you requested. The style adopted is contemporary with neutral tones combined with slightly darker material elements to enhance the spaces.

Leggi di Più