
66023 Francavilla al Mare, Province of Chieti, Italy
Residenziale - Appartamento
Descrizione
ENG
The object of the contest is the planimetric redesign and 3D views/plans of the annexed apartments.
What I would need is:
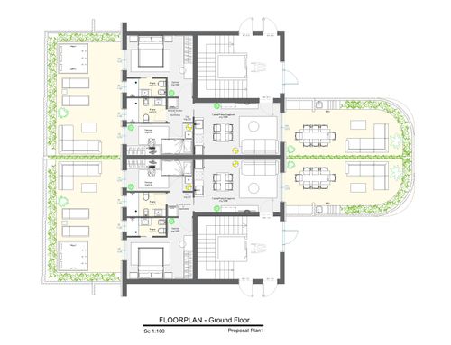
• Plan design of the internal distribution of the spaces of the apartments 1A and 1B on the Ground Floor united in a single apartment
• Plan design of the internal distribution of the spaces of apartments 2A and 2B on the First Floor united in a single apartment
• Not essential, but preferable, different distribution of the interior spaces of apartments 1A, 1B, 2A and 2B, if you manage to find a different solution from the one already represented in the dwg
• Plan design of the external terraces of each unit
• Render of the interiors (at least 3), considering that in the hypothesis of four divided apartments, each one is equal to the other (so it is enough to focus on only one of the four apartments)
• 3D plans of each hypothesis (Ground Floor with two separate real estate units, Ground Floor with two real estate units joined in a single large apartment, First Floor with two divided real estate units, First Floor with two real estate units joined in a single large apartment).
In the hypothesis of joining the two adjacent apartments on the same floor it is possible, but not preferable, to change the opening of the windows.
The materials and sanitary fixtures to be used are strictly those in the attached Brochure.
It is not possible to move the bathrooms from the position shown in the plan for drainage reasons, but it is only possible to change their internal configuration. Each bathroom must be furnished with a toilet and bidet.
Use the same measurements as the internal and external walls in the plan.
N.B. The focus of this contest is the creation of 3D renders and plans suitable for the sale of properties "on paper". Both of them must conform to the refined style of the 3D Plants uploaded in the References of this contest. Plants created with different graphic representation styles (e.g. non-textured, without furnishings, etc.) will not be accepted.
ESP
El motivo del concurso es el rediseño del plano de planta y las vistas/planos en 3D de los pisos adjuntos.
Lo que necesitaría es:
• Diseño en planta de la distribución del espacio interior de los pisos 1A y 1B de la planta baja unidos en un solo piso
• Diseño en planta de la distribución interna de los espacios de los pisos 2A y 2B de la Primera Planta unidos en un único piso
• No es imprescindible, pero sí preferible, una distribución diferente de los espacios interiores de los pisos 1A, 1B, 2A y 2B, en caso de que podáis encontrar una solución diferente a la ya representada en el dwg
• Diseño en planta de las terrazas exteriores de cada unidad
• Renderizados de los interiores (al menos 3), considerando que en la hipótesis de cuatro pisos divididos, cada uno es igual al otro (por lo tanto basta con concentrarse en uno solo de los cuatro).
• Planos en 3D de cada hipótesis (planta baja con dos pisos divididos, planta baja con dos pisos combinados en un piso grande, primer piso con dos pisos divididos, primer piso con dos pisos combinados en un piso grande)
En caso de unir dos pisos contiguos de la misma planta, es posible, aunque no preferible, cambiar los huecos de las ventanas.
Los materiales e instalaciones sanitarias que se utilicen deberán ser los que figuran en el folleto adjunto.
No es posible desplazar los cuartos de baño de la posición indicada en el plano por razones de drenaje, pero sí cambiar su configuración interna. Cada cuarto de baño debe estar equipado con un inodoro y un bidé.
Utilizad las mismas medidas que las paredes interiores y exteriores del plano.
N.B. Los planos 3D y los renderizados a crear deben ajustarse al estilo editado de los Planos 3D subidos en las Referencias de este concurso. No se aceptarán plantas creadas con estilos de representación gráfica diferentes (por ejemplo, sin textura, sin mobiliario, etc.).
ITA
Oggetto del contest è la riprogettazione planimetrica e le viste/piante 3D degli appartamenti allegati.
Ciò di cui avrei bisogno è:
• Progettazione in pianta della distribuzione interna degli spazi degli appartamenti 1A e 1B del Piano Terra uniti in un unico appartamento
• Progettazione in pianta della distribuzione interna degli spazi degli appartamenti 2A e 2B del Primo Piano uniti in un unico appartamento
• Non indispensabile, ma preferibile, diversa distribuzione degli spazi interni degli appartamenti 1A, 1B, 2A e 2B, qualora riusciste a trovare una soluzione diversa da quella già rappresentata nel dwg
• Progettazione in pianta dei terrazzi esterni di ciascuna unità
• Render degli interni (almeno 3), considerando che nelle ipotesi di quattro appartamenti divisi, ognuno è uguale all’altro (quindi basta concentrarsi su uno solo dei quattro appartamenti)
• Piante 3D di ciascuna ipotesi (Piano Terra con due unità immobiliari divise, Piano Terra con due unità immobiliari unite in un unico grande appartamento, Primo Piano con due unità immobiliare divise, Primo Piano con due unità immobiliare unite in un unico grande appartamento).
Nell’ipotesi di unire i due appartamenti adiacenti sullo stesso piano è possibile, ma non preferibile, cambiare l’apertura delle finestre.
I materiali e i sanitari da utilizzare sono tassativamente quelli della Brochure allegata.
Non è possibile spostare i bagni dalla posizione rappresentata in pianta per ragioni di scarico, ma è possibile solamente cambiarne la configurazione interna. Ciascun bagno deve essere arredato con WC e bidet.
Usare le stesse misure dei muri interni ed esterni presenti in planimetria.
N.B. Il focus di questo contest è la realizzazione di Render e Planimetrie 3D adatte alla vendita di immobili "su carta". Sia gli uni che le altre devono essere conformi allo stile curato delle Piante 3D caricate nei Riferimenti di questo contest. Non saranno accettate piante create con stili di rappresentazione grafica diverse (es. non texturizzate, senza arredi ecc..)