
Milan, Metropolitan City of Milan, Italy
Residenziale - Zona Giorno/Notte
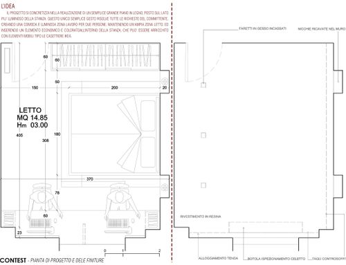
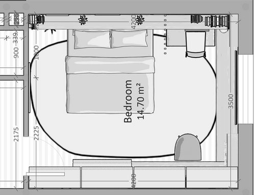
Descrizione
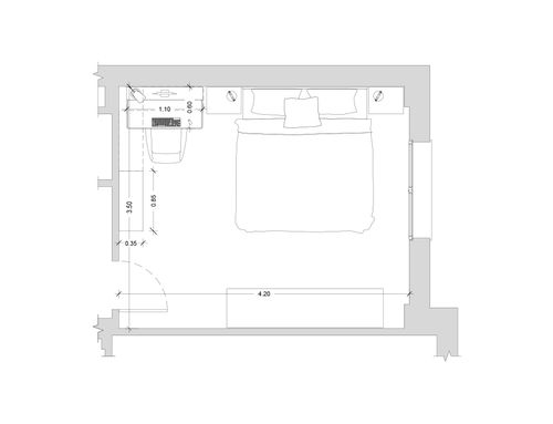
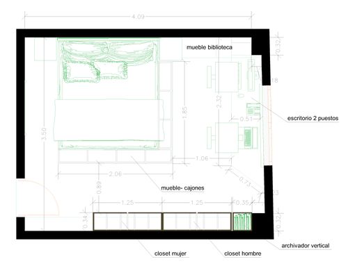
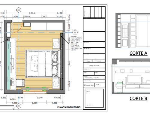
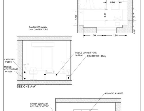
Redecorating the bedroom (for 2 people) for smart working needs, it is necessary to create a comfortable but non-invasive workspace. Simple, modern style. Constraint: keep the current double bed. Need to have closet space for 2 people anyway.
ESP
Redecorando el dormitorio (para 2 personas) para necesidades de smart working, es necesario crear un espacio de trabajo cómodo pero no invasivo. Estilo simple y moderno. Restricción: mantener la cama doble actual. Necesito tener espacio en el armario para 2 personas de todos modos