
73023 Lizzanello LE, Italy
Residenziale - Zona Giorno/Notte
Descrizione
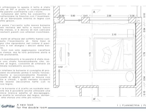
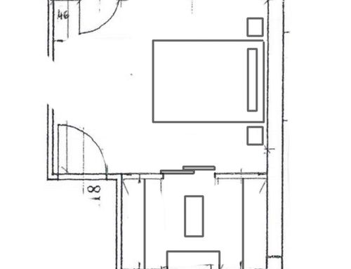
Vorrei rinnovare e abbellire la camera da letto padronale .Mi piacerebbe tinteggiare le pareti e rivestire due lati della stanza con una boiserie che renda la stanza più calda, accogliente che le dia un tocco country ma elegante .La boiserie può essere sia a doghe di legno o pannelli di legno preferibilmente di colore bianco. Se fosse possibile vorrei un rivestimento che non riduca lo spazio tra il muro ed il letto perchè lo spazio è già ridotto. Il rivestimento dovrebbe avere anche la funzione di isolare dai rumori provenienti dai vicini e isolare dal muro esterno. I due muri da rivestire sono quello della finestra sul letto , rivestendo anche il davanzale e il muro accanto al letto. Vorrei mantenere gli arredi esistenti , ma potrei cambiare il colore del letto, sostituire le veneziane della finestra. Sono presenti solo un mobile antico e due comodini diversi. La zona armadi è distaccata e da essa si accede al bagno. Il soffitto non ha punto luce per scelta e non vorrei mettere il lampadario. Lo stile dovrebbe essere country chic sui toni del bianco e del colore legno naturale, tortora o altri simili. Nella lista delle finiture vorrei suggerimenti sul materiale del rivestimento come procedere per la posa in opera, complementi d'arredo, colori delle pareti. Se non fosse possibile realizzare il rivestimento della parete accanto al letto, quella confinante con i vicini perché perderei molto spazio, si potrebbe pensare alla tinteggiatura a strisce.
I would like to renovate and improve the master bedroom. I would like to paint the walls and cover two walls of the room with a boiserie in order to make the room cozier and warmer, with a country (but elegant) touch. The boiserie could be both in wooden panels or wooden clapboards, preferably in white color. If possible, I would life a cover of the boiserie not too thick in order not to reduce the space between the walls and the bed, since space in the room is already limited. The cover would also have the function to make the master bedroom soundproof from the neighbors, and insulate it from the outside. The walls to be covered with the boiserie are the one with the window over the bed (covering also the windowsill), and the one next to the bed. I would like to keep the existing furniture, but I could also change the color of the bed, and the Venetian blind of the window. At the moment in the room there are only an antique piece and two side tables (not paired). The closets area is separated and from this area you can access the bathroom. The ceiling has no lighting fixture (on purpose) and I would prefer to keep it this way. The style should be country-chic, in color white and natural wood, turtledove, or similar. In the list of refinishing solutions I would like advice on the material of the cover, how to proceed with the installation, additional furniture, and colors of the walls. If it is not possible to put the boiserie on the wall next to the bed (facing the neighbors) because I could loose too much space, we could think about painting that wall in stripes instead.