
Rome, Metropolitan City of Rome, Italy
Residenziale - Appartamento
Descrizione
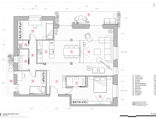
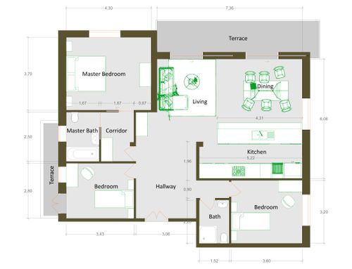
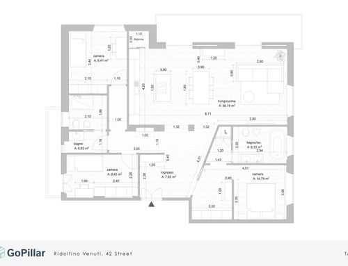
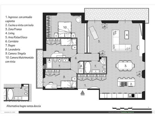
Salve a tutti ho un appartamento di circa 100mq che andrà ristrutturato completamente (impianti elettrico e idrico) di conseguenza bagni e cucine possono essere disposti "ovunque". E' richiesto un doppio bagno, due camere piccole e una camera matrimoniale. Sarebbe bello avere uno unico spazio living con cucina a vista o semi vista. E' fondamentale sfruttare l'affaccio dal lato del terrazzo grande poichè affaccia su una villa privata molto bella. Gli infissi che danno sul terrazzo saranno ante uniche scorrevoli che entreranno nel muro. Stile moderno - minimal
Hola a todos, tengo un piso de unos 100m2 que será completamente renovado (sistemas eléctricos y de agua), por lo que los baños y cocinas se pueden colocar "en cualquier lugar". Se requiere un baño doble, dos habitaciones pequeñas y una habitación doble. Sería bueno tener un solo espacio habitable con una cocina abierta o semiabierta. Es esencial aprovechar la vista desde el costado de la gran terraza, ya que da a una hermosa villa privada. Las ventanas que dan a la terraza serán puertas correderas simples que entrarán en la pared. Moderno - estilo minimalista.
Hi everyone, I have an apartment of about 100sqm that will be completely renovated (electrical and water systems). Consequently, bathrooms and kitchens can be placed "anywhere". A double bathroom, two small bedrooms and a double bedroom are required. It would be nice to have a single living space with an open or semi-open kitchen. It is essential to take advantage of the view from the side of the large terrace as it overlooks a very beautiful private villa. The windows overlooking the terrace will be single sliding doors that will enter the wall. Modern - minimal style