
Roma, RM, Italia
Residenziale - Appartamento
Il nostro progetto propone una ristrutturazione dell'appartamento articolata secondo i seguenti punti:
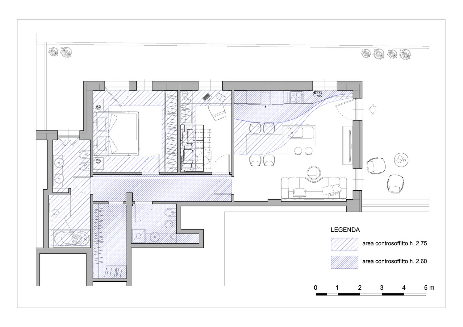
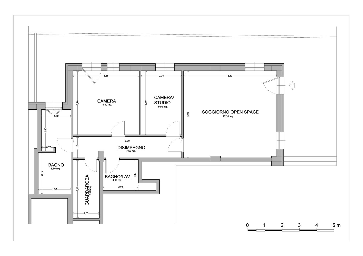
1. Eliminazione delle partizioni fra l'attuale camera in angolo e il bagno, con creazione del soggiorno open space e del nuovo accesso alla casa; elemento centrale dell'open space sarà una nuova ampia cucina, dotata di parete lineare (con colonne frigo, forni, dispensa, più zona cottura e uno spazio contenitore basso che arriva fino all'ingresso) e di isola centrale con lavabo, area snack e tavolo da pranzo integrato;
2. Spostamento del bagno principale nell'area oggi occupata dalla cucina, in modo da poterne sfruttare adduzioni e scarichi. L'ampiezza del locale consentirà di posizionare sanitari, doppio lavabo, doccia walk in e vasca con sistema idromassaggio;
3. Chiusura del vecchio ingresso, sfruttando l'area vuota del disimpegno/pranzo come zona servizi; qui verranno realizzati due locali affiancati, uno destinato a cabina armadio e uno a secondo bagno/lavanderia;
4. Rimodellamento delle tramezze, rimpicciolendo di poco il corridoio a favore delle due camere: una sarà matrimoniale, con dimensioni a norma (14 mq circa) e la seconda, più piccola, destinata a studio/camera ospiti, con l'inserimento di un sistema trasformabile con divano e letto a scomparsa.
I controsoffitti e il sistema di illuminazione, prevalentemente a LED di tipo ad incasso (barre e faretti) o a soffitto, sono studiati per valorizzare gli spazi con giochi di luce diretta e indiretta; in particolare, la forma ad onda del controsoffitto del soggiorno servirà a dare maggiore risalto alla cucina ed alla zona pranzo.