
Roma, RM, Italia
Residenziale - Appartamento
Dear client,
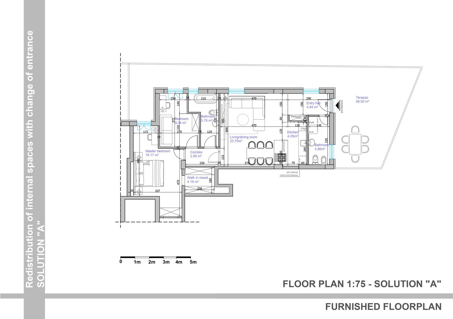
The goal of this project was to reorganize the entire apartment so that the day and night zones trade places, creating a layout that better supports everyday routines. Throughout the design process, four different spatial solutions were developed, each meeting the functional requirements in its own way. Among them, solution A stands out as the most transformative. Although it demands the most construction work, it also offers the strongest alignment with your requirements.
Solution A introduces a new entrance from the terrace, allowing the apartment to be reoriented naturally toward its new day zone. A compact yet efficient entry hall with a built-in wardrobe provides a defined threshold and much-needed storage. The existing bathroom is fully reconstructed, forming the backbone of the reorganized plumbing layout.
The new kitchen is positioned along the reconstructed bathroom wall, giving it solid technical support and a natural place in the plan. It features a generous kitchen island, complemented by a dining table that anchors the social core of the home. The open-concept living area includes a corner sofa and a TV stand, creating a comfortable, cohesive zone for family activities and relaxation.
On the opposite side of the apartment, the new night zone consists of two bedrooms, each meeting necessary size standards while feeling practical and comfortable. The master bedroom includes a dedicated walk-in closet, adding a sense of luxury and daily convenience. The second bedroom is designed as a single room—compact, functional, and flexible for future needs. A newly created second bathroom supports this private area, ensuring comfort and independence between day and night functions.
Overall, Solution A presents a complete rethinking of the apartment’s flow, turning structural challenges into opportunities and creating a layout that feels contemporary and balanced.
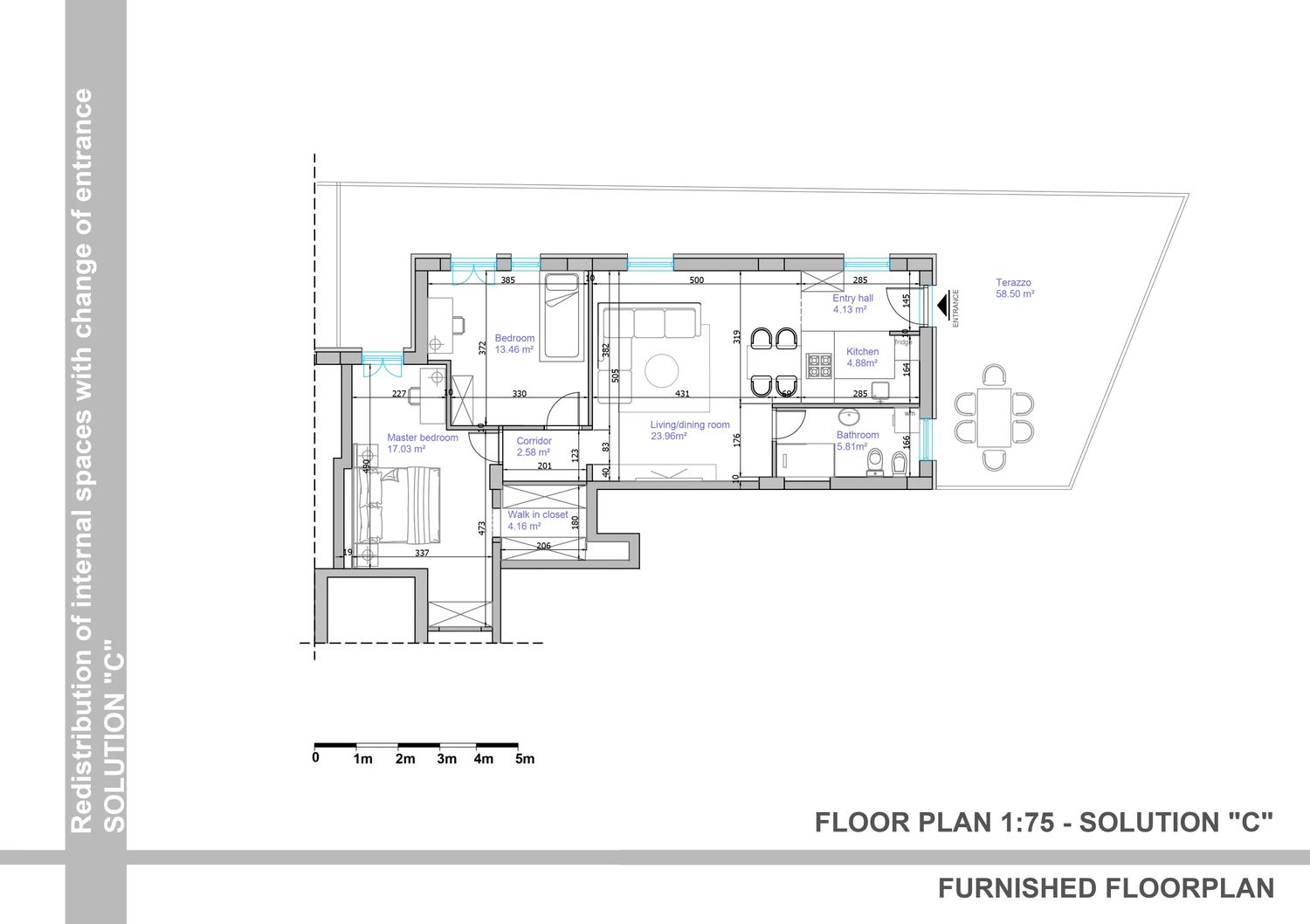
In contrast to the transformative nature of Solution A, Solutions B, C, and D take a more moderate approach. Since existing bathroom is in good condition, all three retain the original bathroom footprint, using it as an anchor around which the new living space is organized. By preserving the existing bathroom dimensions, these options significantly reduce the amount of invasive work and simplify the overall scope of reconstruction.
Each solution reconfigures circulation and room placement differently, but all maintain a balance between improved functionality and construction efficiency. The kitchen, living room, and dining area create clear day-zone layouts while still achieving the goal of enhancing comfort and flow. The night-zone arrangements vary from one solution to another, showing multiple ways to approach privacy, storage, and room proportions without entering major structural interventions.
To support decision-making, a demolition and reconstruction plan accompanies every solution. These technical diagrams clearly present which elements are removed, altered, or newly built, allowing you to understand not only how the apartment will look but also what level of work each option requires. This transparent approach ensures that you can compare all four solutions—ranging from minimally invasive to fully transformative—and choose the one that best aligns with both your vision and practical considerations.
I wish you good luck with your renovation!
Best regards!