
Roma, RM, Italia
Residenziale - Appartamento
Il progetto nasce dalla sua esigenza di valorizzare la porzione più ampia del terrazzo, destinandola alla zona giorno con un ampio open space anziché alla zona notte.
Per rispondere a questa richiesta è stata prevista la chiusura dell’ingresso attuale e la creazione di un nuovo accesso tramite la portafinestra situata nella stanza adiacente all’attuale bagno.
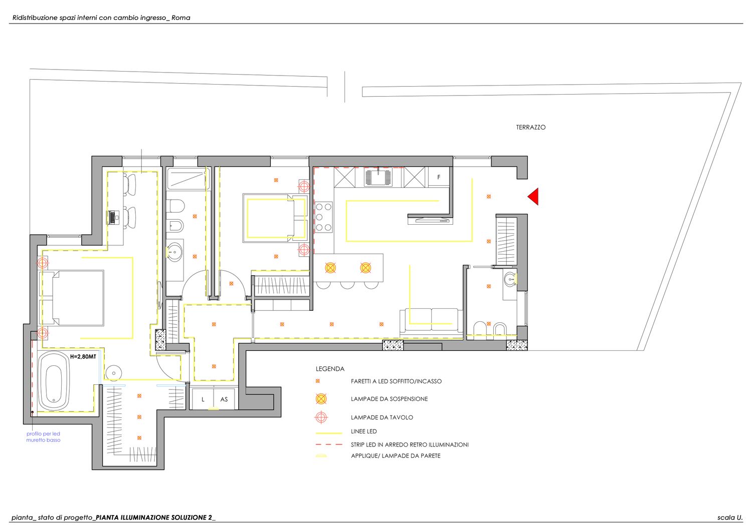
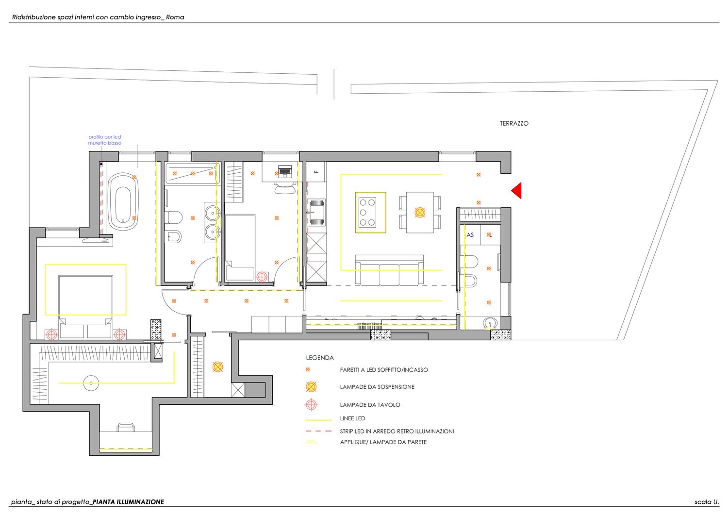
Sono state sviluppate due diverse soluzioni progettuali, entrambe caratterizzate da uno stile moderno e minimalista, arricchito da giochi di illuminazione e controsoffitti tecnici che conferiscono all’appartamento un carattere unico e ricercato.
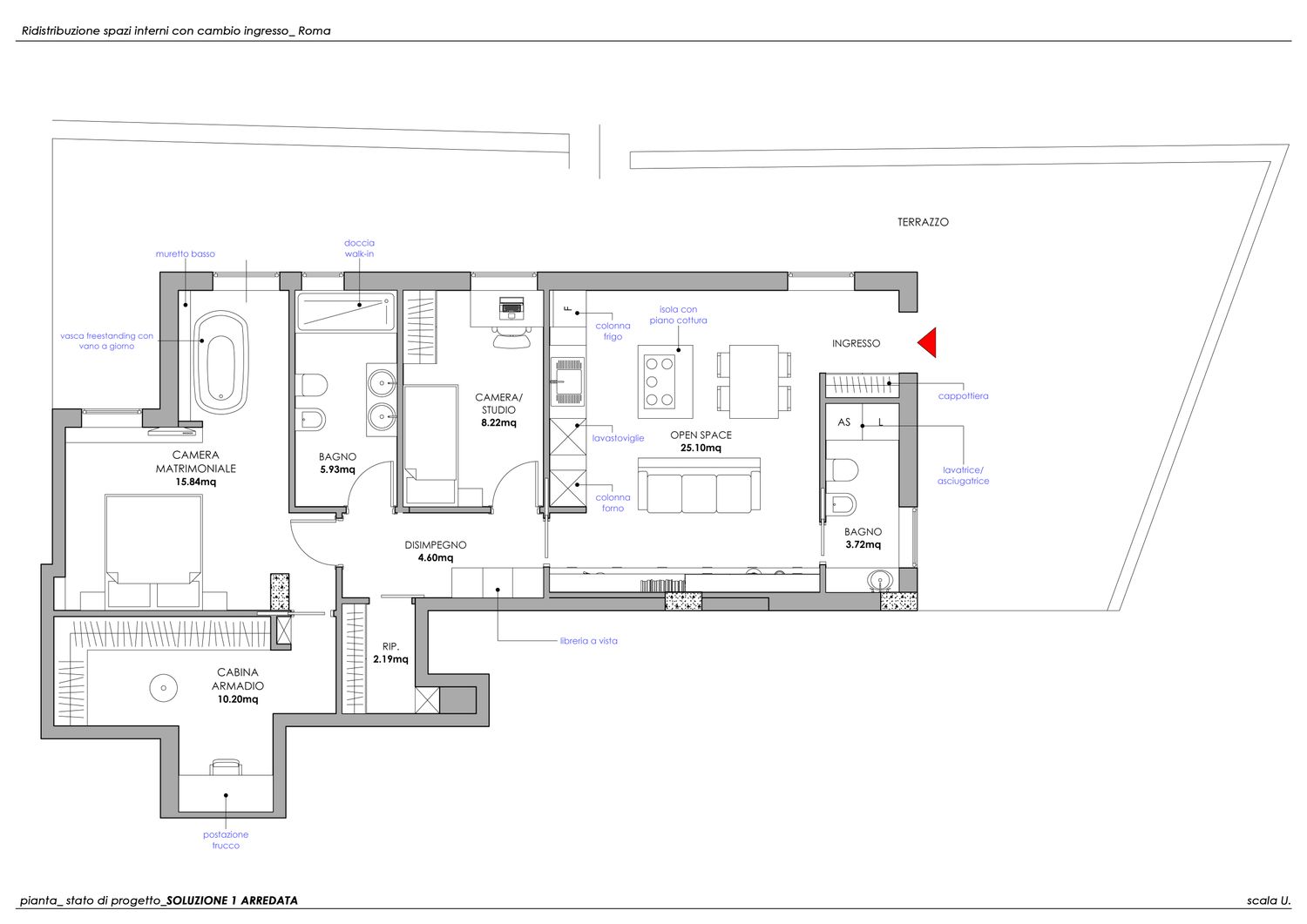
La prima proposta prevede:
1. Open space con cucina a isola e tavolo da pranzo separato, affacciato sulla parte più ampia del terrazzo.
2. Ampio bagno finestrato con doccia walk-in.
3. Secondo bagno di servizio, completo di tutti gli accessori.
4. Vano tecnico dedicato a lavatrice e asciugatrice.
5. Camera singola, flessibile e pensata anche come eventuale zona studio.
6. Camera matrimoniale con spaziosa cabina armadio e angolo dedicato alla collocazione di una vasca freestanding scenografica, lasciata a vista nella stanza.
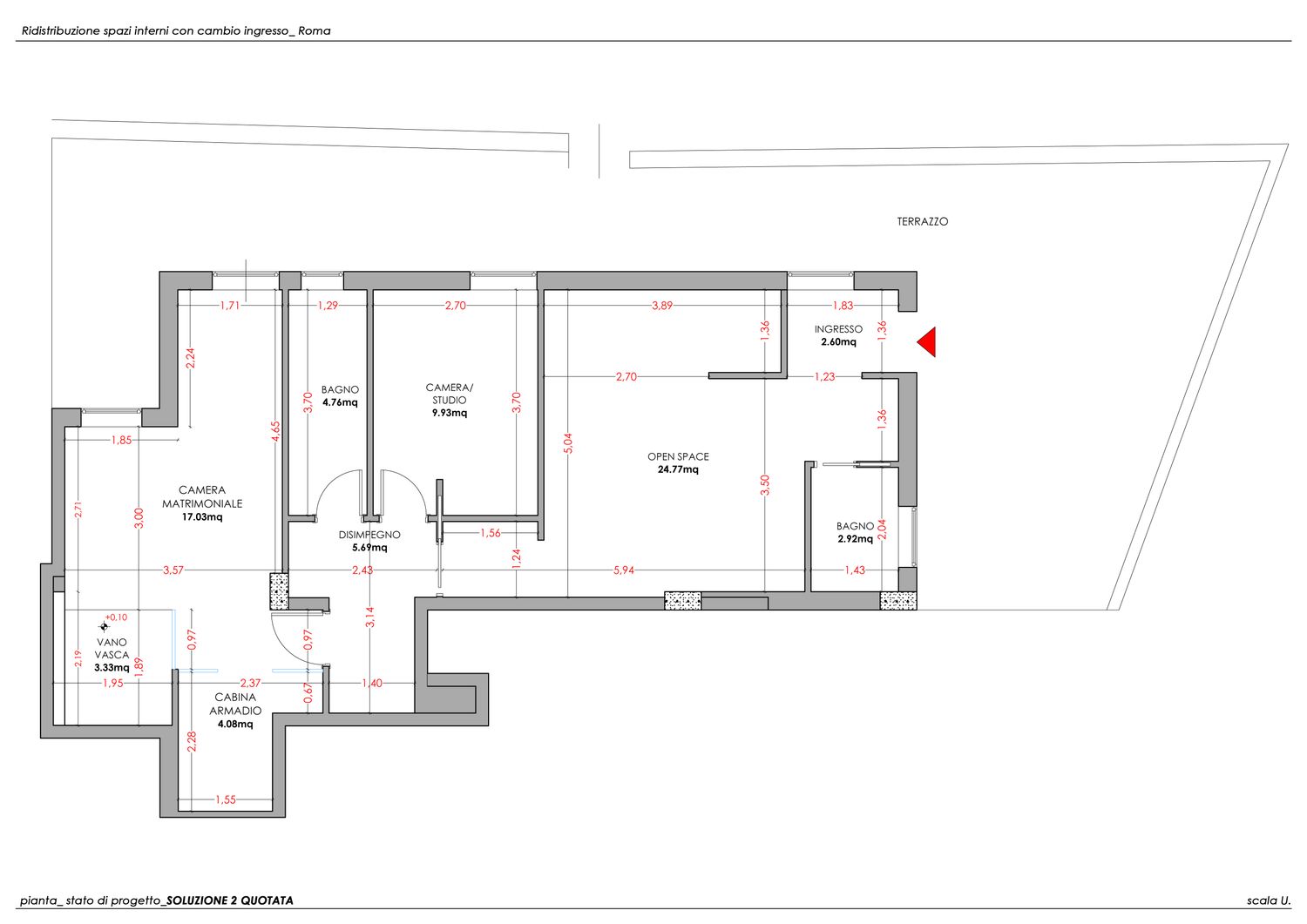
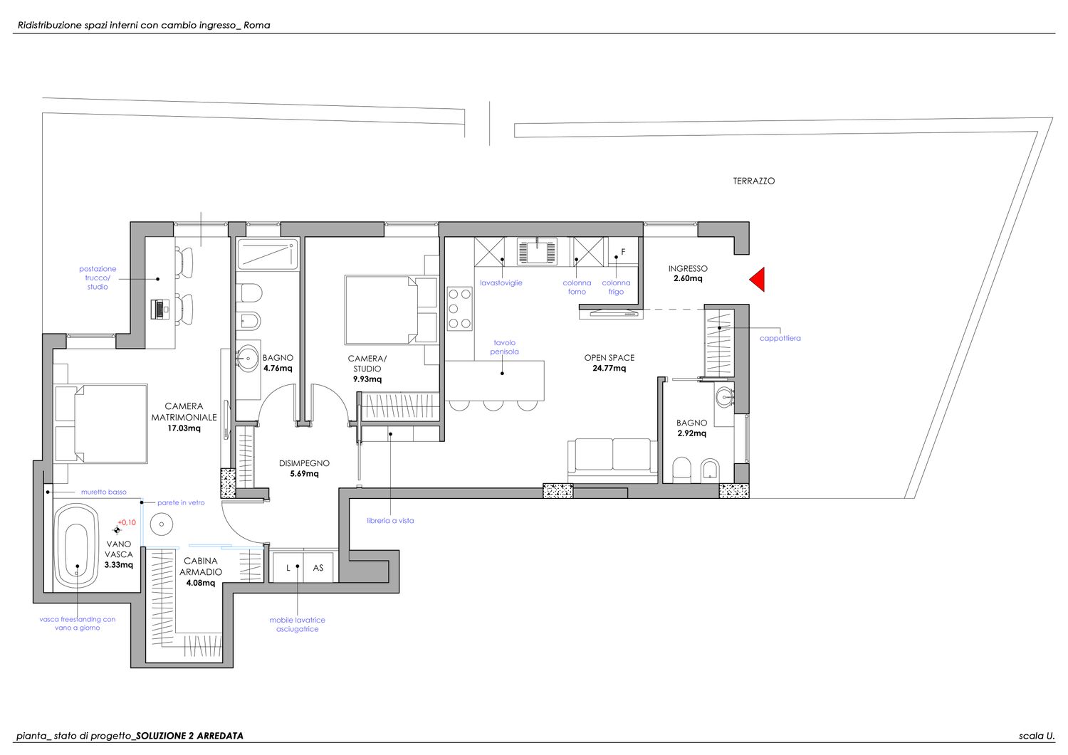
Seconda Soluzione Progettuale
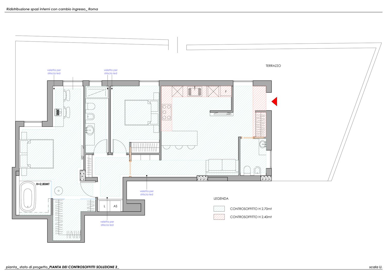
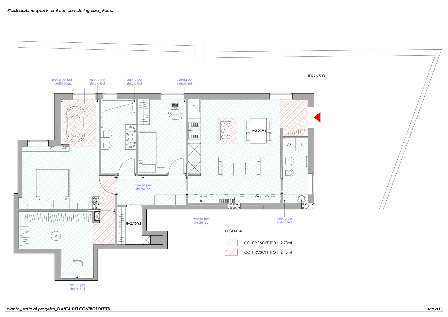
La seconda proposta riprende gli ambienti principali della prima, con alcune varianti distributive ed estetiche:
1. Open space con cucina dotata di penisola, che funge anche da tavolo da pranzo, enfatizzando l’uso conviviale della zona giorno.
2. Camera matrimoniale rivisitata con pareti in vetro che separano elegantemente la cabina armadio e la zona vasca a giorno, quest’ultima rialzata di 10 cm per creare un effetto scenografico e una maggiore definizione degli spazi.
3. Due bagni, di cui uno finestrato.
4. Camera singola/studio multifunzionale.
5. Vano dedicato a lavatrice e asciugatrice.
Le due soluzioni proposte cercano di valorizzare al massimo gli spazi disponibili, interpretando con coerenza il desiderio di avere un ambiente giorno ampio, luminoso e connesso visivamente al terrazzo. La scelta di materiali, luci e volumi segue un linguaggio minimal e contemporaneo, capace di rendere questo appartamento ricercato, funzionale e armonioso.
Sperando di aver interpretato al meglio le sue richieste ,
le porgo i miei più cordiali saluti.