
Roma, RM, Italia
Residenziale - Appartamento
For your project, which was developed with the goal of meeting all your needs, I have created two design alternatives.
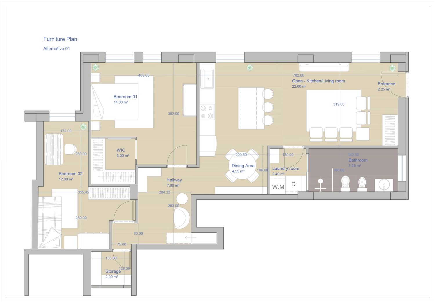
In both options, as requested, the entrance has been completely relocated and designed as a complete entry area that also includes a coat and shoe closet. The day areas of the apartment were moved toward the terrace. The kitchen includes an island and is positioned to ensure good lighting and ventilation. The double bedroom includes a walk-in closet, and the second bedroom has a standard size and sufficient daylight.
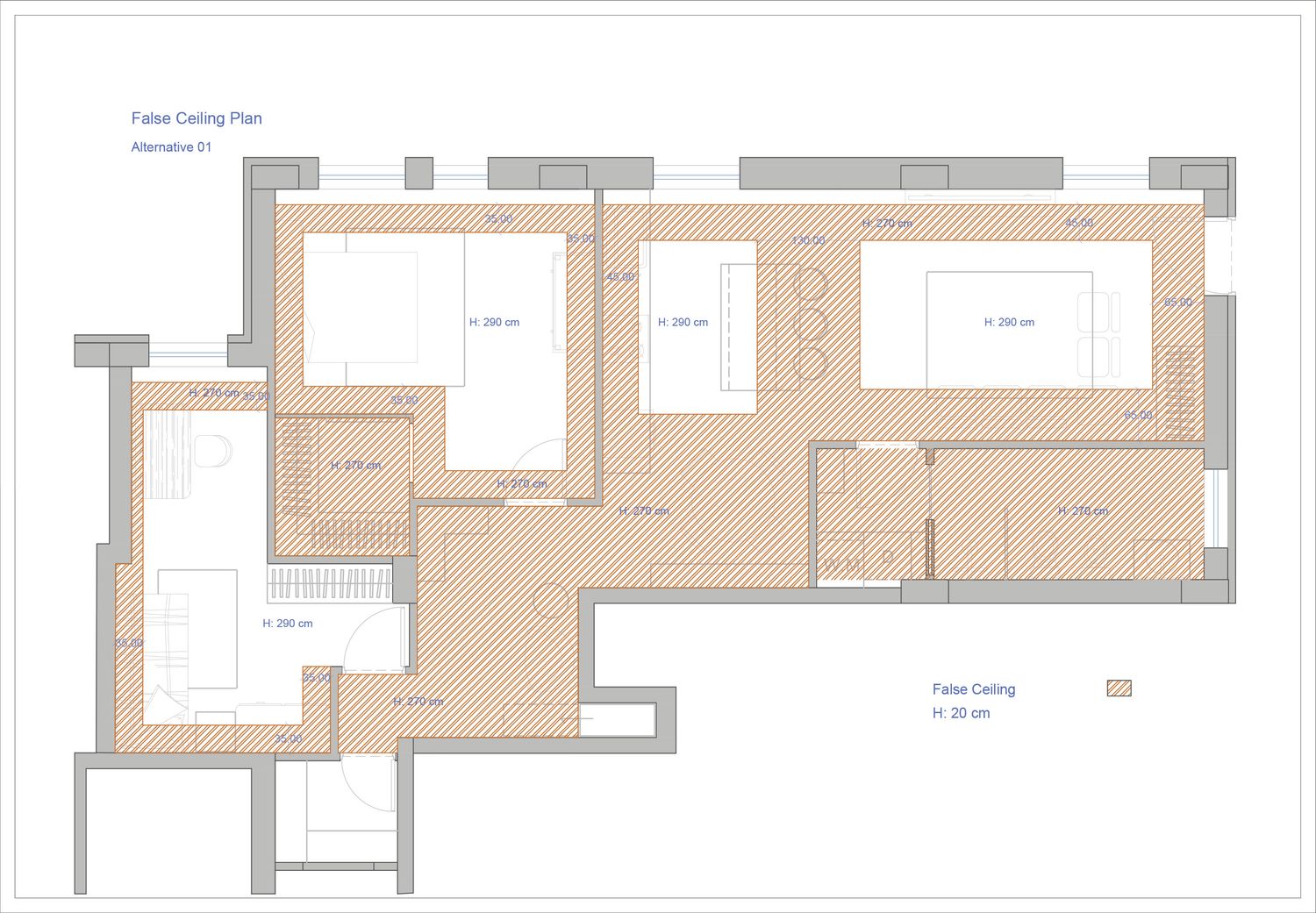
In the first alternative, the bathroom remains in its original position. The laundry room is placed next to it and also serves as a small buffer space so the bathroom does not open directly into the living area.
The kitchen is positioned close to the drainage column for easier plumbing connections. In continuity with the living room, there is an open space for the day area. Next to it, I added a dining space with a four-person table.
The corridor connecting the bedrooms has been optimized with an L-shaped shelving unit and a pull-out shelf. The area that was previously the entrance has been converted into a small storage room.
In the second alternative, the bathroom has been relocated, and the kitchen now occupies its former position. This version includes two bathrooms: a larger one with a window, located where the kitchen used to be, and in the back part of the bathroom, I designed a separate laundry area. The second, smaller bathroom (without a window) is placed where the original entrance was.
By adding a storage or decorative shelving unit in the corridor, the space has also been used more efficiently.
In the area with a deep but narrow niche, I designed a pull-out shelf to make full use of the space. It can serve as storage or as a decorative bookshelf, creating a cozy corner for reading. (Youโll find an image of this shelving idea among the project materials.)
I hope you enjoy the proposed designs.