
Roma, RM, Italia
Residenziale - Appartamento
Dear client,
We are very happy to have participated in your contest.
The main challenge and goal for the design was to create a large and open living/dining area, maintain the current bathroom location, and make optimal use of the sleeping area considering the dimensions and irregular walls of that area.
The bathroom was kept in its current location, the guest bathroom (new bathroom) was connected to the main bathroom by a false wall so that the sewage and clean water pipes could be transferred to the current bathroom through it.
The kitchen was placed in a place where you confirmed the presence of a drain pipe nearby.
A closet/storage room for storing household items such as brooms, etc. is planned in the hallway.
The house design was designed in a minimalist and modern style using light and warm colors.
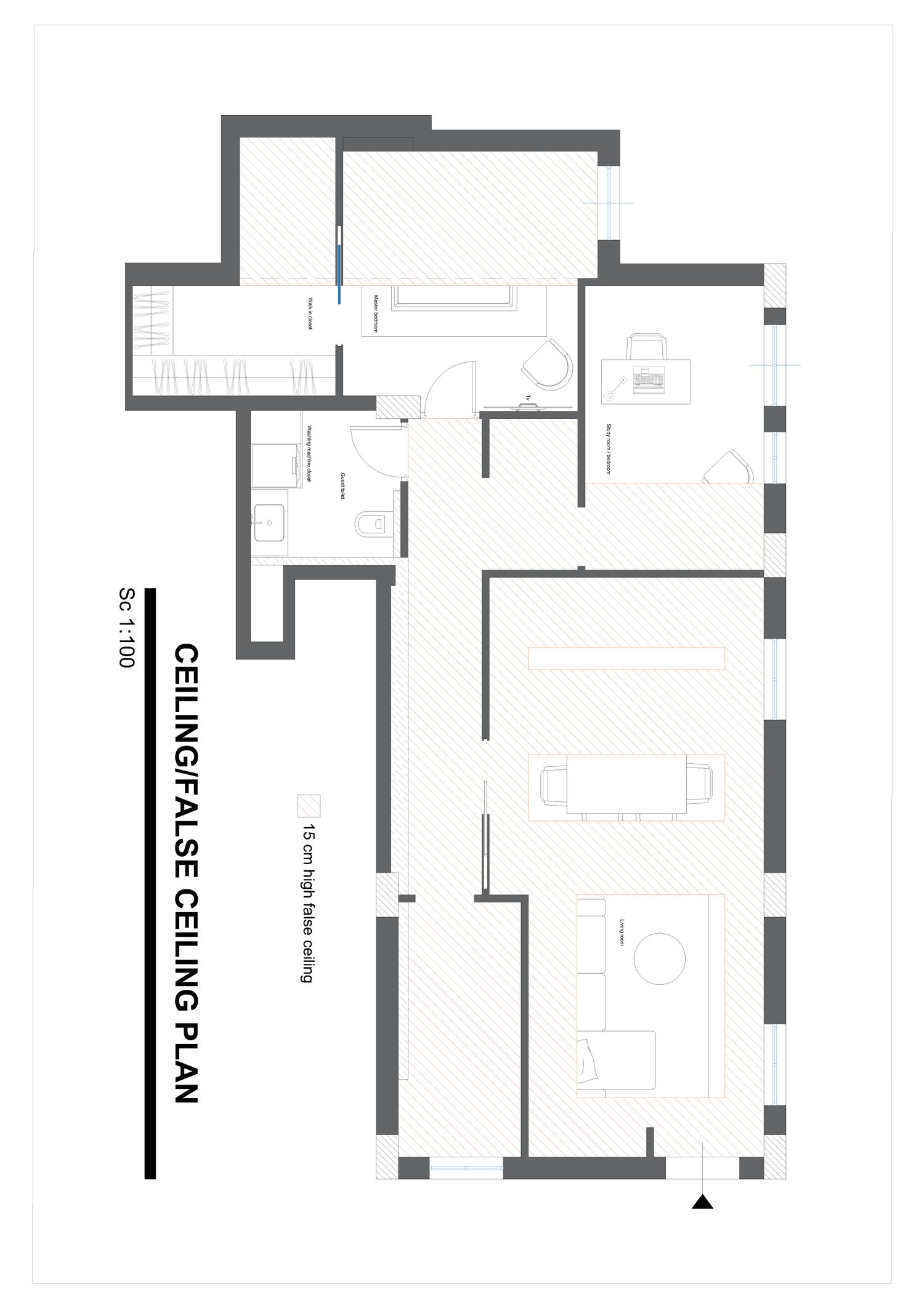
Upon entering the house, you will be greeted by an open, bright environment with a combination of warm and natural colors. The ceiling design and lighting, while emphasizing the living area and kitchen, create a unified and relaxing environment for those present in the house.
The bedrooms are of appropriate dimensions for furniture arrangement and without irregular walls and many fractures.
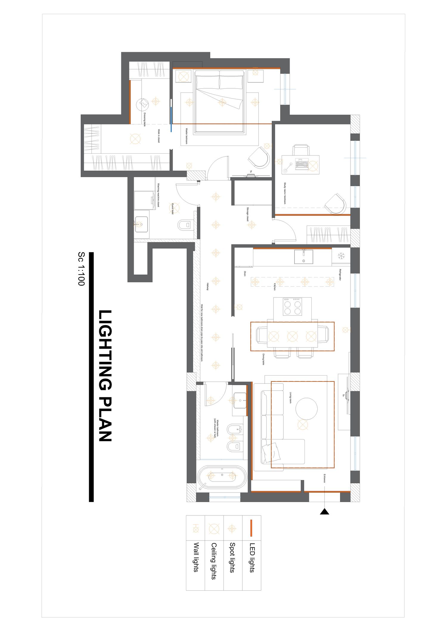
The apartment's lighting is done with an emphasis on linear and hidden lights to create a relaxing environment.
It is necessary to explain that the main bathroom has been maintained with its current dimensions and if you wish, the bathtub foreseen in it can also be replaced with a shower room.
If you have any questions or changes, you can email us for free.