
Roma, RM, Italia
Residenziale - Appartamento
Descrizione
ENG:
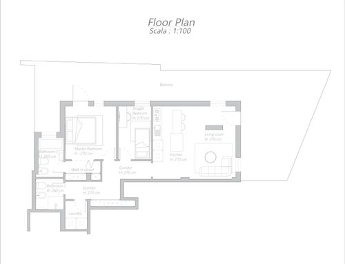
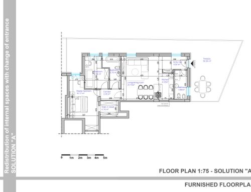
I would like to modify the interior layout in order to take advantage of the wider part of the terrace with an open-plan living room and kitchen, instead of the sleeping area. There is also the possibility of using a second entrance from the terrace, entering the apartment through the French window located in the bedroom to the left of the bathroom.
In the apartment, I would like to have:
An open space with an island that can be used as a dining-style table with low seating, or alternatively an island + a separate table
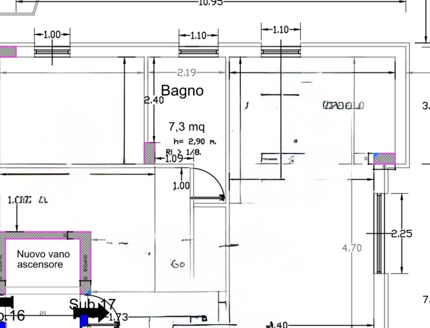
A large bathroom with a window and a shower
A second service bathroom, if possible; alternatively, a space for a washing machine and dryer
A master bedroom with a walk-in closet
A single bedroom
Thank you
SPA:
Me gustaría modificar la distribución interior para aprovechar la parte más ancha de la terraza con un espacio abierto de salón y cocina, en lugar de la zona de noche. También existe la posibilidad de utilizar una segunda entrada desde la terraza, accediendo al apartamento por la puerta-ventana situada en el dormitorio a la izquierda del baño.
En el apartamento me gustaría tener:
Un espacio abierto con una isla que pueda usarse como mesa de comedor con asientos bajos, o en alternativa una isla + una mesa independiente
Un baño grande con ventana y ducha
Un segundo baño de servicio, si es posible; en su defecto, un espacio para lavadora y secadora
Un dormitorio principal con vestidor
Un dormitorio individual
Gracias
ITA:
Vorrei modificare gli spazi interni in modo da sfruttare la parte larga del terrazzo con un open space soggiorno- cucina invece che la zona notte. Possibilità di sfruttare un secondo ingresso dal terrazzo e quindi entrare nell'abitazione dalla porta finestra situata nella stanza da letto a sinistra del bagno.
Nell'appartamento vorrei :
- Open space con isola con piano cottura con posti a sedere bassi stile tavolo da pranzo o in alternativa isola + tavolo separato
- Un bagno grande finestrato con doccia
- Un secondo bagno di servizio , se possibile. in alternativa spazio per lavatrice e asciugatrice
- Camera matrimoniale con cabina armadio
- Camera singola o studio
Mi piacerebbe uno stile ultra moderno e minimal con gioco di luci e contro soffitti che mettono in evidenza gli arredi come la cucina
Grazie