
Lipari, Province of Messina, Italy
business - Hotel
Descrizione
Il nostro albergo è situato nell arcipelago Eoliano e precisamente sul isola di vulcano terra di vulcani e benessere . È una struttura a carattere familiare costruita fine 1970 che nel corso degli anni ha subito vari restyling in maniera un po' disarmonica.
Da due anni abbiamo intrapreso un totale ri ammodernamento nella parte strutturale esterna (facciate e giardini) restando strettamente fedeli allo stile eoliano, mantenendo i colori tenui tipici di queste isole, e fedeli ai vincoli imposti delle belle arti.
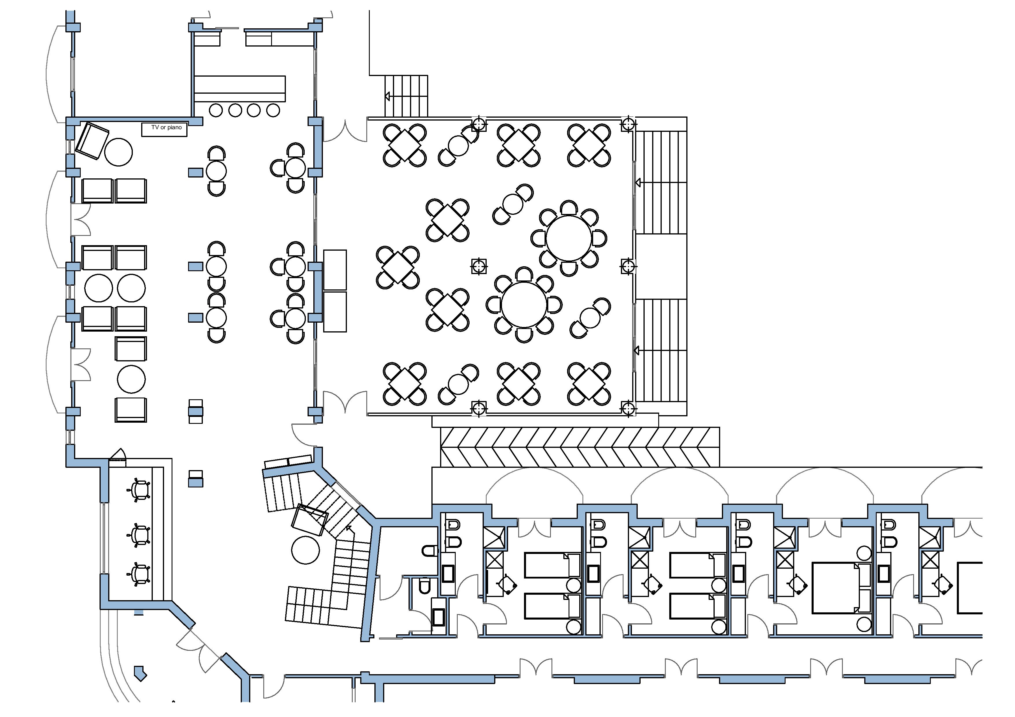
Il nostro albergo e' composto da una struttura principale ad L su due livelli nella quale trovano collazione le camere e la zona giorno (hall e ristorante) una zona piscina ad osmosi con ampio solarium in legno (circa 600mq) , un giardino ombreggiato con palme nane, wascintone, sterlizie giganti ed agavi a concludere una zona adibita ad orto biologico.
Al primo piano si accede tramite una scala in legno di castagno ( un po' importante) che vorremmo mantenere pur cambiandone l'aspetto con interventi sulla ringhiera riadattandola al nuovo stile dell'hotel o mantenendo la stessa.
L'oggetto della ristrutturazione richiesta è un ammodernamento totale nello stile e negli arredi mantenendo inalterata la struttura edilizia. Quello che ci aspettiamo è di conservare la caratteristica "famigliare"del nostro albergo con ambienti che trasmettono calore, eleganza, semplicità rimanendo fedeli allo stile mediterraneo/eoliano
- Camere:
Le camere basic sono già state oggetto di ristrutturazione richiamando i toni bianco e blu e ceramiche sulle testate di cui abbiamo allegato varie foto.
Le restanti camere sono così suddivise: 3 camere premium con terrazzo/solarium in legno (in fase di realizzazione di circa 16 ma con lettini e salottino) con vista sulla piscina e grande visuale sul Vulcano (principale attrazione dell'isola) 6 camere standard situate al piano rialzato con balcone ed affaccio sulla zona giardino/piscina ed altre 6 camere -standard plus - situate al primo piano con balcone vista aperta sui faraglioni di zolfo e tufo
Metratura delle camere va da 14 a 16mq ( servizi esclusi e superficie balcone di circa 5mq)
Infissi in castagno, porte bianche e pavimenti in ceramica bianca puntellata
Per queste camere chiediamo a seconda della tipologia (premium /standard plus e standard) arredi differenti in base alla relativa categoria : vorremmo mantenere lo stile sobrio delle camere basic già ristrutturate ma vorremmo ottenere un risultato un po' " "chic"
La zona ristorante :
È collocata in un grande terrazzo stile eoliano con pulera e Vetrate scorrevoli su tutto il perimetro.
Al ristorante si accede dalla zona Hall/bar tramite due porte scorrevoli in legno e vetro ed affaccio/uscita direttamente sulla zona piscina/giardino illuminato con lanterne e faretti
L'intervento richiesto prevede la creazione di una zona buffet per la colazione e una rivisitazione dello stile.
La zona reception/bar
Si trova in una grande sala dalla quale si accede con una piccola scalinata in pietra lavica
L'intervento richiesto consiste in un totale ri ammodernamento (possibilmente senza demolire gli attuali banconi ma comunque studiare un rivestimento adeguato per cambiarne lo stile) ; vorremmo oltre alla zona conversazione creare delle nicchie espositive di prodotti locali/di nostra produzione da dedicare alla vendita.
Se possibile vorremmo mantenere i divani esistenti cambiando i tessuti e posizionandoli in zone esterne , tendaggi e quadri ed oggettistica
zona corridoi
L'intervento richiesto prevede oggettistica /quadri lampade ed una passatoia che attutisca i rumori di passi e del passaggio di valigie e che continui sulle scale di accesso ai piani.
Considerazioni
Tutta l'isola è ricoperta di finissima sabbia nera
Il logo dell'albergo, riportato nel pavimento in mosaico davanti alla reception, e la costellazione del Gran Carro da cui l'albergo prende il nome e poiché è collocato esattamente sotto questa costellazione
La forma ad "L" dell'albergo trae spunto dalle iniziali del cognome della nostra famiglia.
Mi scuso per il ritardo nell'invio di quanto sopra dovuto ad impegni lavorativi all'estero subentrati all'improvviso
Sono certo che con il vostro contribuito riuscirò a dare al mio albergo l'immagine desiderata