Descrizione
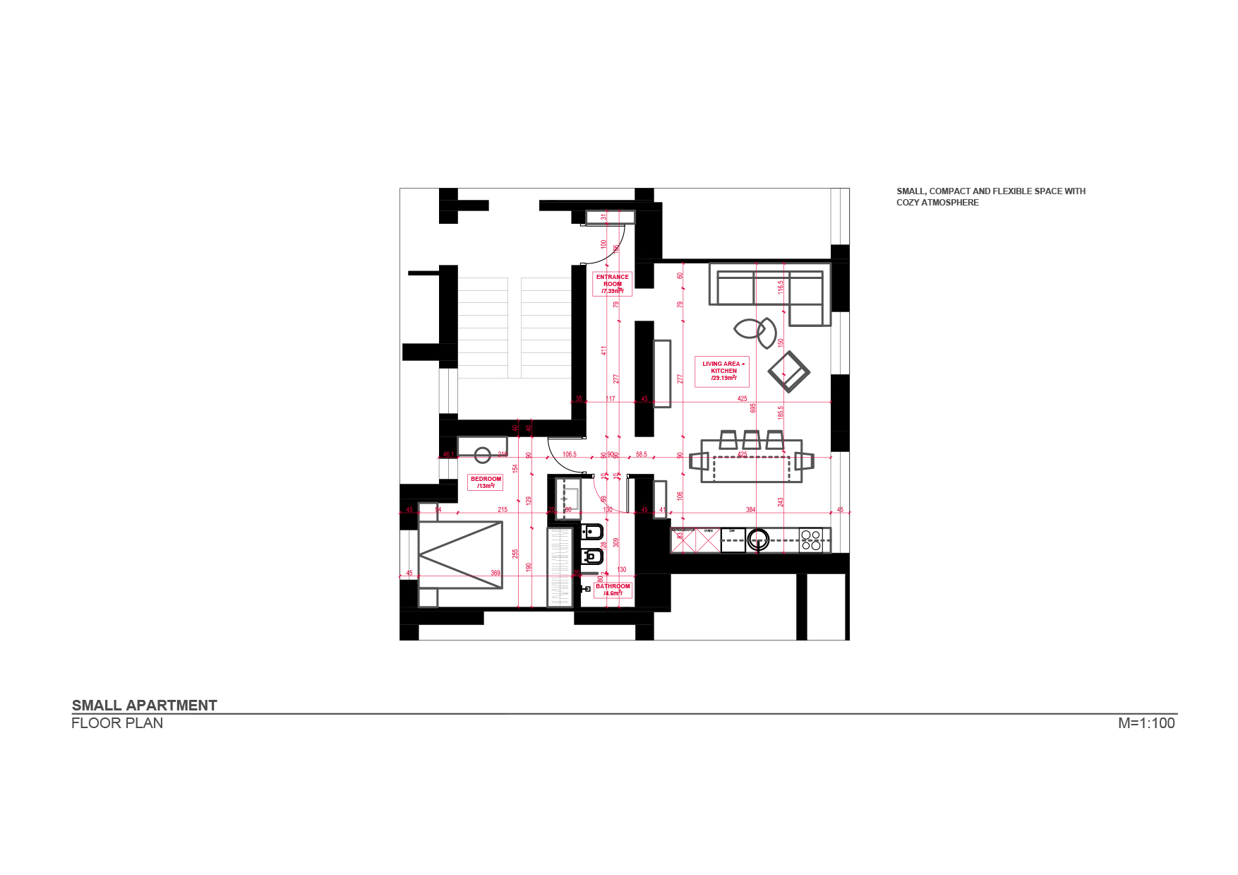
L'appartamento è completamente da sistemare, la mia idea era quella di ottenere uno spazio living e cucina zona unico , eventualmente separati da una quinta, o altre soluzioni, ma non due ambienti separati totalmente. Vorrei che il bagno fosse più grande di quello attuale e che la zona giorno si affacci sulla principale vista panoramica, quella di fronte al mare. I soffitti sono alti si possono quindi prevedere controsoffitti e/o rialzi del pavimento Non ci sono mobili da utilizzare o salvare,IKEA potrebbe andar bene ad eccezione per la cucina.