
Rome, Metropolitan City of Rome, Italy
Residenziale - medium-villa
Descrizione
Title: Restoration of a villa for a family of 4 people
Objective: To improve the space fruition essentially of the living.
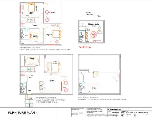
We are a family of four people, with two male children. We bought a portion of a four-family building. The villa has four levels: one mezzanine (the living area), the first floor (bedrooms), the basement floor (with a garage) and a small garret.
For the different levels, our main targets and requirements are the following:
A. LIVING AREA
1. We would like to create an open space with a comfortable kitchen, a table for 8/10 persons (for special occasions) and a zone for relaxing (TV, bookshelves);
2. We would like to exploit, at maximum extent, the light coming from the two door windows at the right side of the plant.
3. We would like to keep the WC on the floor but without bath or shower box;
4. We would like to have at the entrance a light coat-hanger furniture.
B. FIRST FLOOR (BEDROOMS)
1. We do not have any needs or requirements for the disposition of the bedrooms. We are open to any ideas, or we can leave the room arrangement as it is;
2. We would like to have a wide shower box in the bathroom at the floor;
3. We would like to have a comfortable stair to the small garret (see picture of the existing stair and some pictures of what we are thinking about ) and possibly, to create a small storage place under the stair.
C. SMALL GARRET
1. We would like to create a comfortable guest bedroom (for two people) complete of bathroom;
D. BASEMENT FLOOR
We don’t need the existing box for the car(s), thus, we can use that space for the following ideas.
1. We would like to create a study and use the existing desk (see picture attached), with book shelves;
2. We would like create a WC on the floor;
3. We would like to create a small laundry room;
4. We would like to create a cellar/storage room;
5. We would like to have a “hobbies” area with a table, a couch, a TV furniture, shelves and a space for a piano.
Other notes:
a. The house will have an underfloor heating/cooling system
b. Our preferred style is modern with soft colors.
c. We can consider parquet for bedrooms.
***********************************************************************************************************
***********************************************************************************************************
Titolo: Ristrutturazione di una villetta per una famiglia di 4 persone
Obiettivo: migliorare la fruizione dello spazio della zona giorno
Siamo una famiglia di quattro persone, con due figli maschi. Abbiamo comprato una porzione di una quadrifamiliare. La villetta ha quattro livelli: un piano rialzato (la zona giorno), il primo piano (camere da letto), il piano seminterrato (con un garage) e una piccola mansarda.
Per i diversi livelli, i nostri principali obiettivi e requisiti sono i seguenti:
A. ZONA GIORNO
1. Vorremmo creare uno spazio aperto con una comoda cucina, un tavolo per 8/10 persone (per le occasioni speciali) e una zona per il relax (TV, libreria);
2. Vorremmo sfruttare al massimo la luce proveniente dalle due porte finestre sul lato destro della pianta.
3. Vorremmo tenere il WC sul piano ma senza vasca da bagno o box doccia;
4. Ci piacerebbe avere all'ingresso un mobile appendiabiti discreto.
B. PRIMO PIANO (CAMERE DA LETTO)
1. Non abbiamo esigenze o requisiti per la disposizione delle camere da letto. Siamo aperti a qualsiasi idea, o possiamo lasciare la disposizione della stanza così com'è;
2. Vorremmo avere un ampio box doccia nel bagno al piano;
3. Ci piacerebbe avere una comoda scala per la piccola mansarda (vedi la foto della scala esistente e alcune foto di soluzioni a cui stiamo pensando) e, eventualmente, creare un piccolo ripostiglio sotto la scala.
C. PICCOLA MANSARDA
1. Vorremmo creare una confortevole camera per gli ospiti (per due persone) completa di bagno;
D. PIANO SEMINTERRATO
Non abbiamo bisogno del box esistente per le auto, quindi, possiamo usare quello spazio per le seguenti idee.
1. Vorremmo creare uno studio e utilizzare la scrivania esistente (vedi immagine allegata), con scaffali per libri;
2. Vorremmo creare un WC sul piano;
3. Vorremmo creare una piccola lavanderia;
4. Vorremmo creare una cantina / ripostiglio;
5. Vorremmo avere un'area "hobbies" con un tavolo, un divano, un mobile TV, scaffali e uno spazio per un pianoforte.
Altre note:
a. La casa avrà un sistema di riscaldamento / raffreddamento a pavimento
b. Il nostro stile preferito è il moderno con colori tenui
c. possiamo considerare il parquet (chiaro) per la zona notte.