
Kuala Lumpur, Federal Territory of Kuala Lumpur, Malaysia
Residenziale - Zona Giorno/Notte
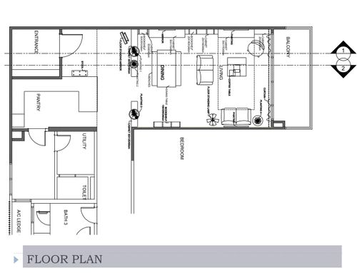
Descrizione
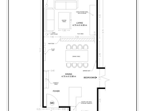
With my family we've moved into a new condo, and we're looking at introducing small changes to the dining/living room (which includes the entrance hallway and the open kitchen) so to make it more cosy and homey (approx. size 55 sqm). Most of the furniture is already there. We're possibly looking at a false ceiling with integrated lighting, new curtains, maybe wallpapers, light fixtures, greenery/plants etc.
Yes to:
- clearer separation of entrance from the rest of the space
- clearer separation between living area and dining area
- lots of greenery (but low maintenance)
- comfy lighting
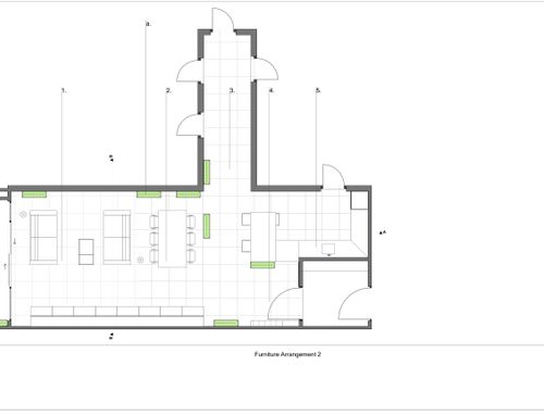
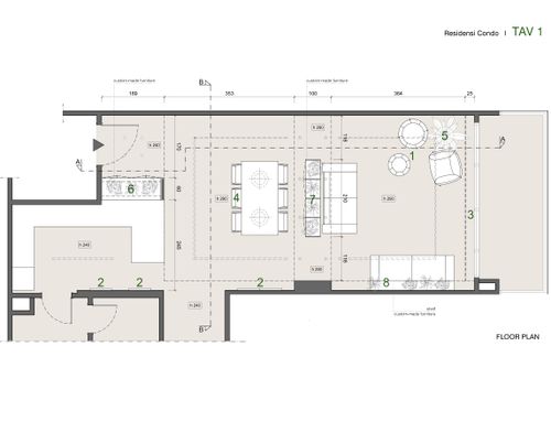
- alternative layouts / arrangement of furniture
No to:
- carpets / rugs
- pillows
- throws / blankets
- TV (yes to audio system)