
Padova, PD, Italia
Residenziale - Appartamento
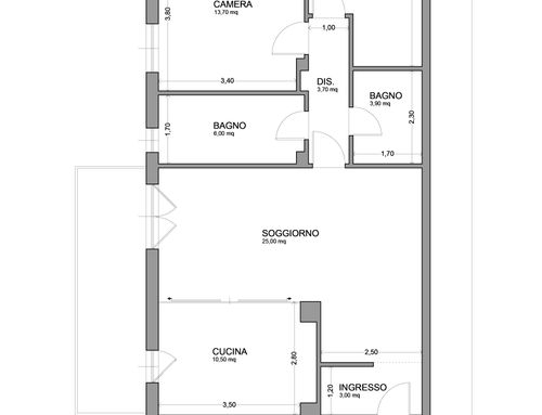
Descrizione
ENG:
My husband and I have just purchased (just a preliminary) a house in Grosseto due to moving from another city. We are already in contact with the person who sold us the house to do some low-impact renovation (recovering parquet in the sleeping area, changing the floors in the living area, renovating the bathrooms) what we are interested in is understanding how to organize the spaces. For the kitchen, given the small size, perhaps we prefer to leave it separate from the living room, also for a question of budget, we do not want to lose the closet to make a small laundry space. The living area is comfortable with a small wardrobe, TV with a dedicated wall and sofa in front. For the bathrooms, I would like to have a bathroom with a window with a bathtub, cabinet with a countertop sink, bidet and toilet. My husband would like a hydromassage but I like a freestanding one, I don't know if it can fit in the budget. The bathroom without a window has a large shower, sink, bidet and toilet. The double bedroom has suspended bedside tables and a large wardrobe, if possible, also a small dresser. For now, we would like to have the smallest bedroom free but if necessary it can accommodate two people and therefore also a wardrobe. In this small room we want a TV station in the double bedroom we don't want it
SPA:
Mi marido y yo acabamos de comprar (solo de forma preliminar) una casa en Grosseto por mudarnos de ciudad. Ya estamos en contacto con quien nos vendió la casa para hacer una reforma de bajo impacto (recuperar el parquet de la zona de dormir, cambiar el suelo del salón, renovar los baños). Lo que nos interesa es entender cómo organizar los espacios. En cuanto a la cocina, dado su reducido tamaño, quizás preferimos separarla del salón; además, por una cuestión de presupuesto, no queremos perder el armario para hacer un pequeño lavadero. El salón es cómodo, con un pequeño armario, un televisor con una pared dedicada y un sofá delante. En cuanto a los baños, me gustaría tener uno con ventana, bañera, mueble con lavabo sobre encimera, bidé e inodoro. A mi marido le gustaría un hidromasaje, pero a mí me gusta uno exento; no sé si se ajusta al presupuesto. El baño sin ventana tiene una ducha grande, lavabo, bidé e inodoro. La habitación doble tiene mesitas de noche colgantes y un armario grande, y si es posible, también una cómoda pequeña. Por ahora, nos gustaría tener libre la habitación más pequeña, pero si es necesario, puede acomodar a dos personas y, por lo tanto, también un armario. En esta habitación pequeña, queremos un televisor en la habitación doble, pero no lo queremos.
ITA:
Io e mio marito abbiamo appena acquistato ( fatto solo un preliminare) una casa a grosseto per trasferimento da altra città. Siamo già in contatto con chi ci ha venduto casa per effettuare un po' di ristrutturazione a poco impatto ( recupero parquet zona notte, cambio pavimenti zona giorno, rifacimenti bagni) quello che ci interessa é capire come organizzare gli spazi. Per la cucina visto la metratura piccola forse preferiamo lasciarla separata dal soggiorno, anche per una questione di budget, non vorremmo perdere lo stanzino per fare un piccolo spazio lavanderia. La zona giorno comoda con un piccolo guardaroba, tv con parete dedica e divano davanti. Per i bagni il bagno con finestra vorrei farlo con vasca, mobile con lavabo in appoggio, bidet e wc. mio marito vorrebbe idromassaggio ma a me piace freestanding non so se con budget può rientrare. Il bagno senza finestra una doccia grande, lavabo bidet e wc. La camera matrimoniale comodini sospesi e armadio capiente se possibile anche piccolo comò. La camera più piccola per adesso vorremmo averla libera ma al bisogno che possa ospitare due persone e quindi anche un armadio. In questa piccola desideriamo postazione tv nella matrimoniale non la vogliamo