
38060 Isera, Autonomous Province of Trento, Italy
Residenziale - Appartamento
Descrizione
ENG:
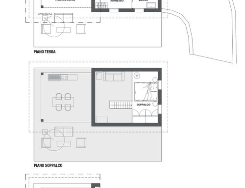
Make the most of the spaces to create a mini house that is also independent from an energy point of view (pellet stove), - photovoltaic panels on the roof, with a mezzanine sleeping area, living area, kitchen, bathroom, winter garden (heated with a wood stove - economical cuisine). The goal is to make it habitable for 2 people + small sofa bed. Practical - romantic
SPA:
Aproveche los espacios para crear una mini casa también independiente desde el punto de vista energético (estufa de pellets), - paneles fotovoltaicos en el tejado, con entreplanta zona dormitorio, salón, cocina, baño, jardín de invierno (climatizado con estufa de leña - cocina económica). El objetivo es hacerlo habitable para 2 personas + pequeño sofá cama. Práctico - romántico
ITA:
Sfruttare al massimo gli spazzi per creare una mini casetta indipendente anche dal punto di vista energetico (stufa pellet),- pannelli fotovoltaici sul tetto, con zona notte soppalcata, zona giorno, cucina, bagno, giardino di inverno (riscaldato con stufa a legna - cucina economica). L'obiettivo è renderla abitabile per 2 persone + piccolo divano letto. Pratico - romantico