
San Giorgio del Sannio, BN, Italia
Residenziale - Palazzo
Dear client,
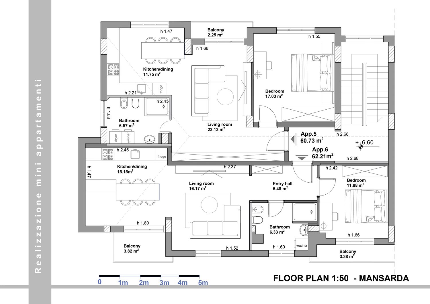
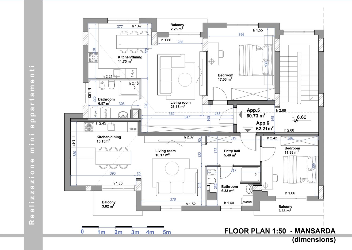
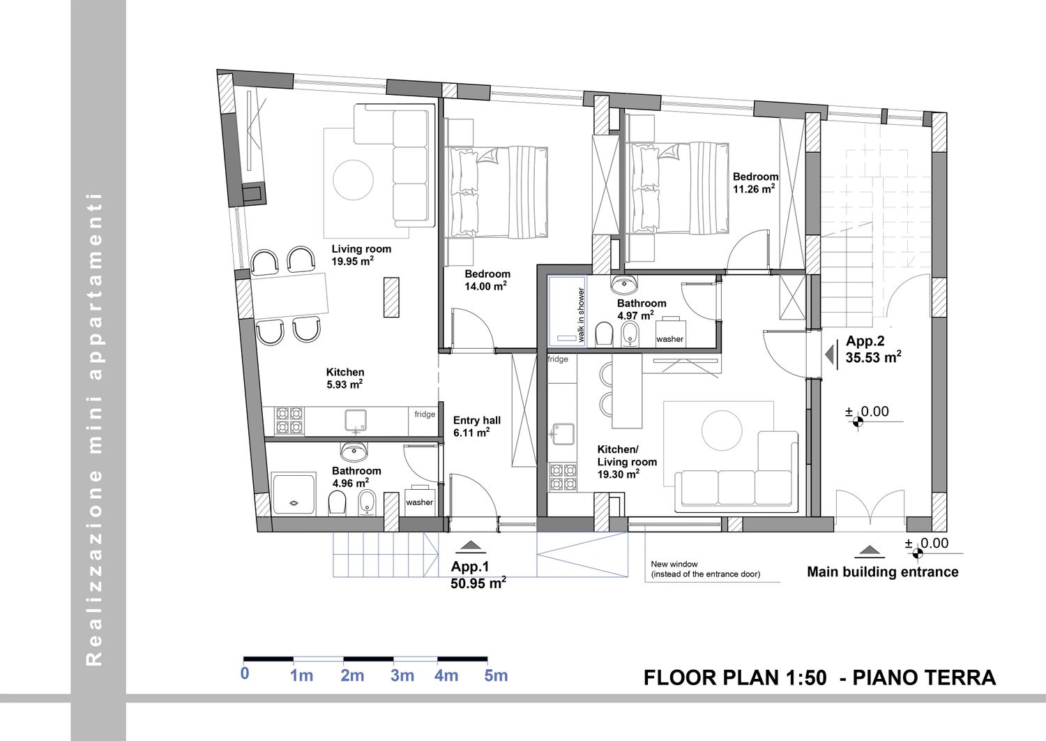
This project focuses on the complete reorganization and functional optimization of a semi-detached residential building consisting of a garage, ground floor, first floor and attic - mansarda. The goal is to create six independent mini-apartments—two per level—each designed to offer maximum comfort and space optimization.
The existing garage will be subdivided into two separate parking spaces and two dedicated storage rooms, improving utility and user convenience.
On the ground floor, the plan includes two self-contained units featuring open-space living room/kitchen areas, one bedroom, and one bathroom.
Apartment 1 uses the existing entrance, and the apartment 2 has an entrance from corridor. The second front door is replaced with a window, so that the living room in apartment 2 has natural light. The first floor also has two apartments, designed with careful attention to natural light and circulation to ensure a practical and comfortable living experience. In the attic, the design leverages variable ceiling heights to create two well-organized apartments ensuring overall comfort.
You will notice that some apartments are a bit larger and one slightly smaller than planned, but this solution achieves the best possible use of the existing layout while maintaining comfort and functionality.
Since the garage, first floor, and attic plans show a more rectangular outline while the ground floor is trapezoidal, I designed the proposal with these inconsistencies in mind, ensuring it can be easily adjusted once precise on-site measurements are confirmed. The design respects existing wall structures and water/sewage lines, reducing interventions and easing the construction process.
In conclusion, the proposed layout represents the optimal and most coherent way to achieve the objectives within the existing building.
I wish you good luck with your renovation!
Best regards!