
San Giorgio del Sannio, BN, Italia
Residenziale - Palazzo
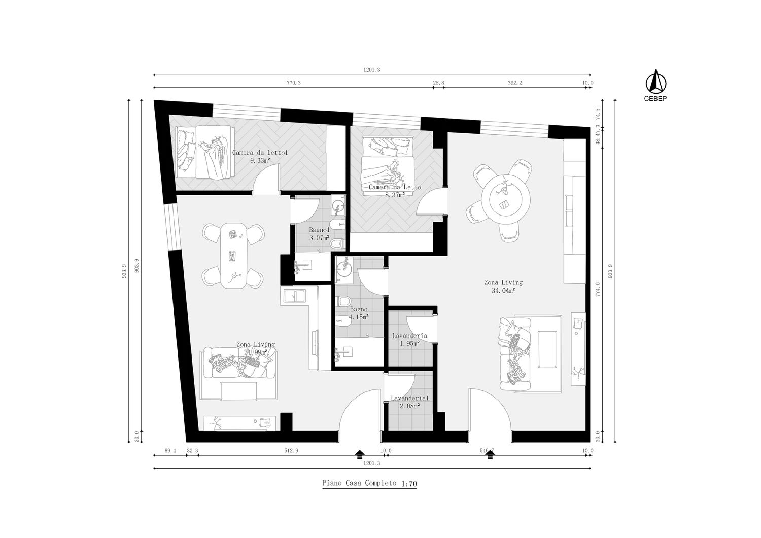
PIANO PRIMO
APPARTAMENTO A – Unità Laterale Sinistra
L’appartamento A è stato progettato per offrire un equilibrio ideale tra estetica e funzionalità.
L’ingresso conduce direttamente alla zona living, un ambiente ampio e luminoso pensato per ospitare la cucina a vista e l’area relax.
La camera matrimoniale è stata completamente ripensata per offrire maggior comfort:
📌 al suo interno è stata ricavata una cabina armadio dedicata, che garantisce ordine, capienza e una gestione ottimale dello spazio senza compromettere la superficie calpestabile della camera.
Il bagno è stato ottenuto ottimizzando gli ambienti di servizio esistenti, risultando ben dimensionato e pratico.
Elemento distintivo di questo appartamento è la grande armadiatura su misura collocata nel disimpegno:
📌 al suo interno trovano posto lavatrice e asciugatrice, perfettamente integrate e invisibili, creando una vera e propria zona lavanderia discreta e funzionale.
Questa unità risulta compatta, moderna e ideale sia per uso residenziale che per locazioni.
APPARTAMENTO B – Unità Laterale Destra
L’appartamento B dispone di ingresso indipendente dal vano scale e si sviluppa attorno a una zona living molto ampia, capace di accogliere soggiorno e cucina in un unico ambiente luminoso e ben distribuito.
La camera matrimoniale è ampia e ben proporzionata, facilmente arredabile e separata rispetto alla zona giorno per garantire privacy e comfort.
Il bagno, ricavato nella zona degli impianti esistenti, è funzionale e adeguatamente dimensionato.
La presenza del balcone e la distribuzione razionale degli ambienti conferiscono a questo appartamento un carattere versatile e di grande appeal, adatto sia alla vendita sia alla messa a reddito.