
San Giorgio del Sannio, BN, Italia
Residenziale - Palazzo
For this project, with the goal of optimizing space while meeting residential standards and reducing costs, I designed six mini-apartments distributed across three floors. Each floor was divided into two sections, with one apartment in each section. Plumbing lines and related ducts can be independently assigned to each unit through this central area.
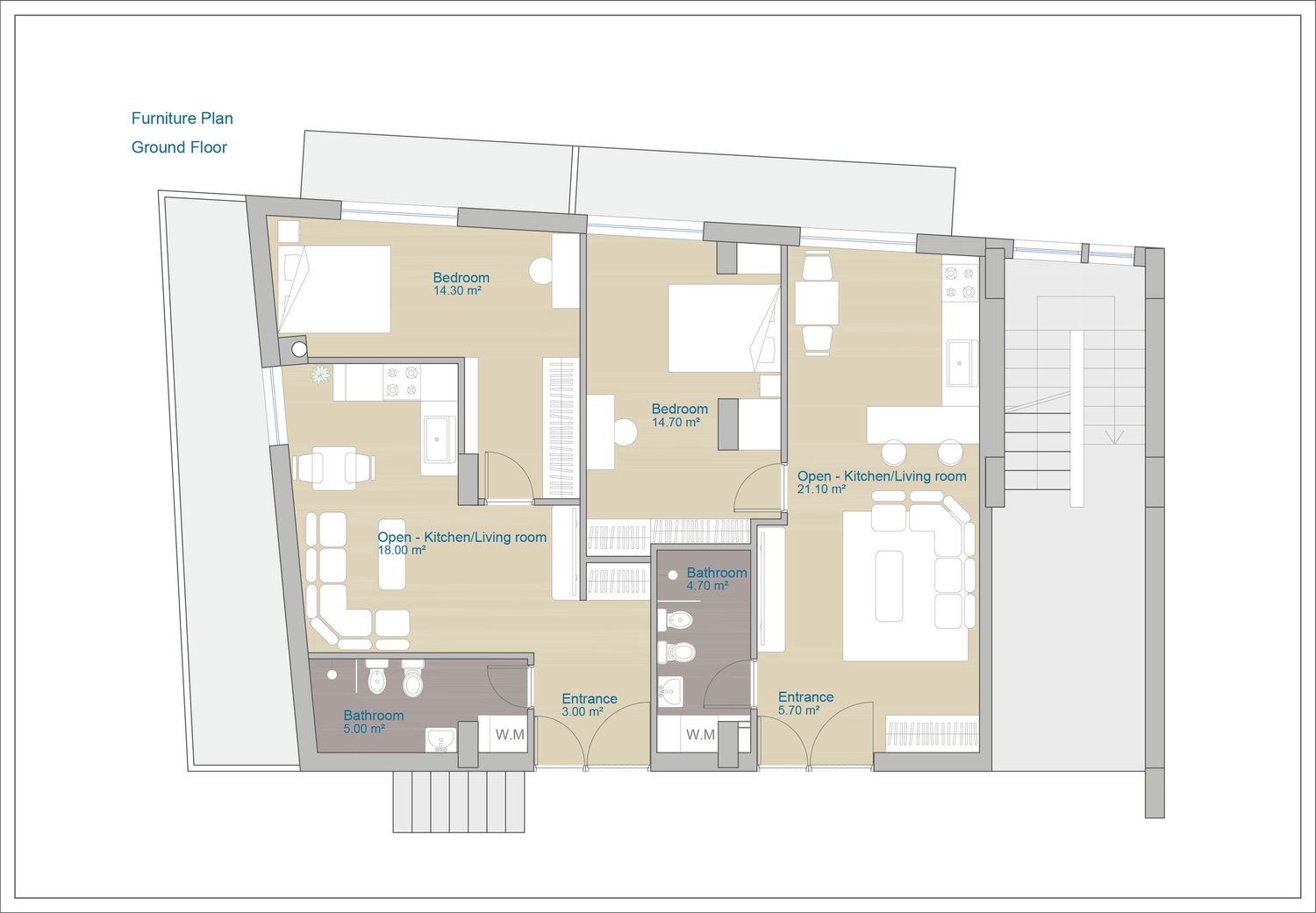
On the ground floor, the layout of spaces was developed based on the positioning of the independent entrances and windows, ensuring proper ventilation and sufficient natural light for each apartment and every room. The existing bathrooms were kept in their original locations to avoid relocating the drainage column.
On the first and second floors, the existing bathrooms were also retained for the same reason, while the bathroom of the other unit was designed nearby to reduce plumbing costs. Likewise, the kitchen of one of the units was positioned in the same area to increase efficiency.
On the first floor, the kitchen of the other unit was placed where the original one used to be, with the dining and living areas arranged adjacent to it.
For both upper floors, a small hall was designed after the staircase as a shared distribution space providing access to the apartments. Each unit includes an entrance area equipped with a wardrobe or coat closet. The bathrooms were designed with spacious shower areas, and a laundry zone was placed at the entrance of each bathroom. The double bedroom with built-in wardrobes was positioned at the far end of the apartment.
On the second floor, the layout was adjusted so that the kitchen of one of the units could make better use of the higher ceiling area, as this function benefits the most from vertical space. The lower ceiling zones were assigned to areas primarily used while seated. In one of the units, I designed a shelving element that serves both as storage and as a bookcase. It also conceals the central column and creates a cozy reading nook by the window, making the space more pleasant and inviting.
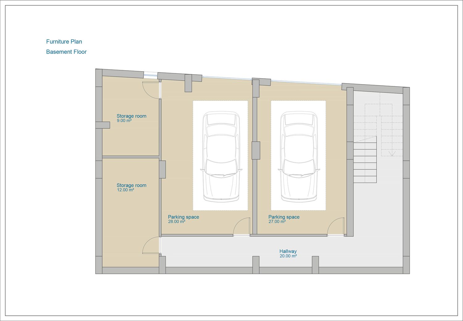
In the basement, the existing doors along the same façade were kept and used as garage entrances. This level was divided into two independent parking spaces, each with access to the rear corridor leading to the staircase. The storage rooms were designed side by side, with access to the storage of the second parking area located at the end of this corridor.
I hope you will enjoy these design proposals.