
Dallas, TX, USA
Residenziale - Zona Giorno/Notte
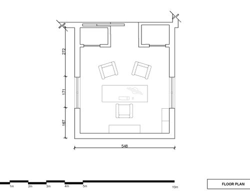
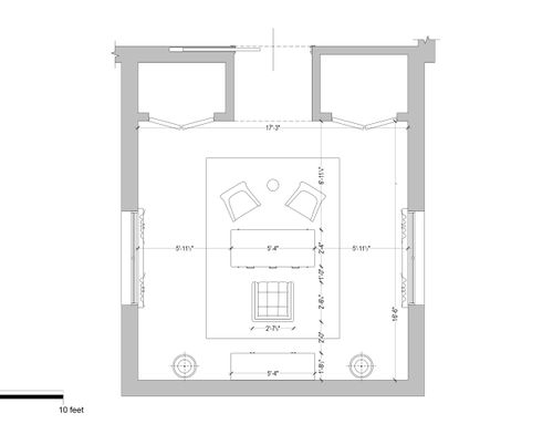
Descrizione
ENG:
Girly, Hollywood glam, pink, modern - Our budget for the room is $5k. We already own the Marilyn Monroe painting and plan on using it in the room and also the pink striped chairs which we uploaded photos of. The chandelier that is currently in the room will stay, but the rug and desk and everything else will no longer be in the room. What we are really looking for are new: desk, sideboard, main chair for the desk, rug, and accessories.
SPA:
Girly, Hollywood glam, pink, modern: nuestro presupuesto para la habitación es de $ 5k. Ya poseemos la pintura de Marilyn Monroe y planeamos usarla en la habitación y también las sillas de rayas rosadas de las que subimos fotos. La lámpara de araña que se encuentra actualmente en la habitación se quedará, pero la alfombra y el escritorio y todo lo demás ya no estarán en la habitación. Lo que realmente estamos buscando son nuevos: escritorio, aparador, silla principal para el escritorio, alfombra y accesorios.
ITA:
Girly, Hollywood glam, rosa, moderno: il nostro budget per la camera è di $ 5k. Abbiamo già il dipinto di Marilyn Monroe, contiamo di usarlo nella stanza e anche le sedie a strisce rosa di cui carichiamo le foto. Il lampadario che si trova attualmente nella stanza rimarrà, ma il tappeto, la scrivania e tutto il resto non saranno più nella stanza. Quello che stiamo davvero cercando nuovi come arredi sono: scrivania, credenza, sedia da scrivania principale, tappeto e accessori.