
Rab, Croatia
Commerciale - Bar
Descrizione
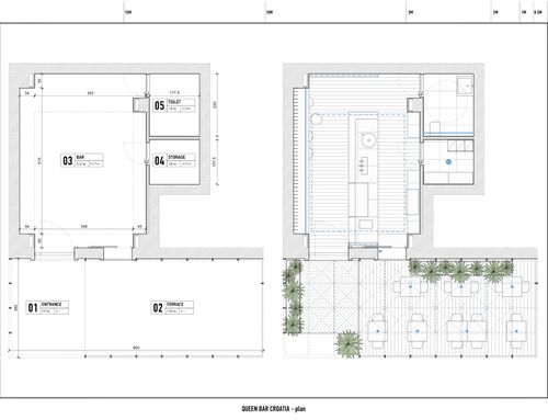
"Queen cafe-bar" is a tiny place that will replace Gagliardo wine bar in the center of Rab, one of the nicest Croatian islands.
The activity of that commercial place will be limited to summer time. Not in the bar but rather outside (street terrace). Whilst the project includes interior renovation and decoration, all the attention must be focused on a very attractive and comfortable terrace. A lot of people (couples and families from Northern and Central Europe) are used to walk in that very central street and should naturally be willing to sit and enjoying their time there.
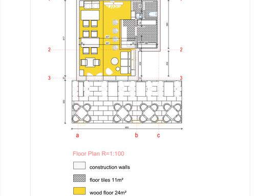
The interior must be simple, essential, elegant but not premium. We want to spend on the terrace more than all: sitting and drinking outside of Queen cafe-bar must please all senses. Shadow by day and illumination by night are key factor. The overall project (inside and outside) must follow eco-friendly Mediterranean values.
Wash-rooms (or wash-room if one only is allowed) should also be a nice place to be (elegant and recalling natural environment).
Terrace stands on a recently renovated municipal street (rented annually). We can only built removable structures (if any). In case of wind or storm, sunshades must be closed. Building is an historical one, we should keep the entrance door and the window in its original position.
Besides wash-room(s), we must have a bar with everything to prepare coffee, soft drinks, draft beers, wine and cocktails, including professional dishwasher, sink, a nice space to exhibit bottles and glasses and possibly a spare room to store drinks or empty bottles. Room for guest willing to drink inside can be limited.