
Beuren, Germany
Residenziale - Casa
Descrizione
We like a clean modern minimalistic stile with architectural accents, Spacious rooms and lots of natural light.
We bought a house on a hillside from year 1987. It is build in solid construction (concrete and stone) so the core is in good condition. Due to budget our thought was demolishing down the house to the groundfloor/ceiling of the basement. In the rest(basement) of the building we are open to major adjustments(Doors, Windows, inside walls...). Maybe some enlargement of the building.
We were thinking about wood substructure for the “new” ground floor and first floor.
But this are only our thoughts....we are looking for creative and modern design of the house.
We are a family of 2 parent and 2 children and have following requirements and thoughts about the new home:
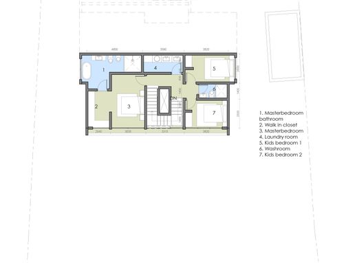
For groundfloor and first floor:
- nice entrance with wardrobe section
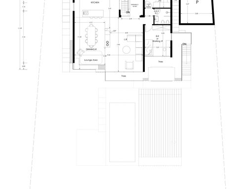
- open kitchen-dining-living space - balcony for eating outside
- fire place
- laundry room where we can also fit stuff inside that we don't need daily
- guest room
- guest toilet with shower (the shower shoud be a bit seperated )
- master bedroom
- walk in clossed
- master bathroom ( shower, bathtub - optional sauna)
- 2 rooms for the kids (same size) maybe not drec nxt to the master bedroom
- 1 extra office/guestroom/ third room for children (third child)
- seperated bathroom for the kids
Basement
- 2 apartments for holiday guests.
- one of the apartments is maybe used by our two childrens as a shared apartement when they are older and go to university
- Apartments should have the main entrance from outside and not through the house.
- But a door into the apartments from the "private part of the house" is also wanted. So we can also use the apartmens for guests if we do not rent it.
- room for the technical stuff (cetral heatingsystem,...)
- room for storage (5m²)
Garden
- 2 small terraces for the apartments that don't have to muchview to the erst of the garden that is used by ourselfs
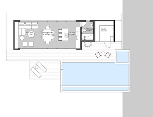
- pool
- small pool house with sauna, shower, rest area - rest area maybe also used for temporary sleeping
- outdoor kitchen
- outdoor shower
- small area (12m²) for a kitchengarden (strawberrys, rasberrys, tomatioes, cucuber, herbs,...)
Streetside: we want to keep the garage and want to add a carport for 2 cars. We also need a spot for the rubish bins (4 types in germany :-) )
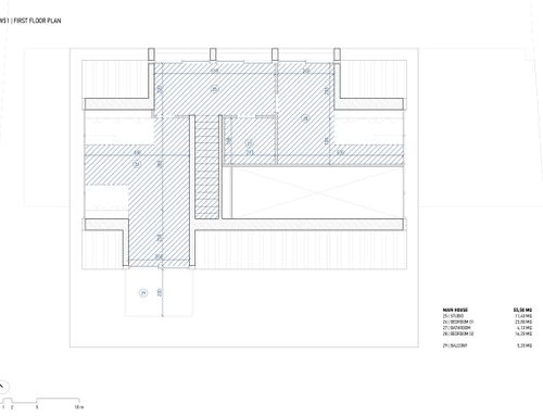
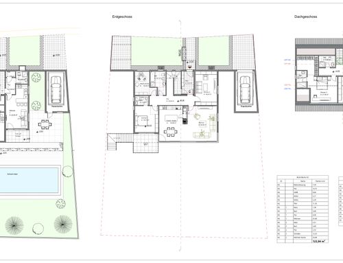
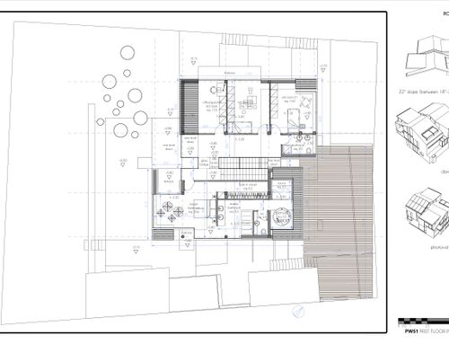
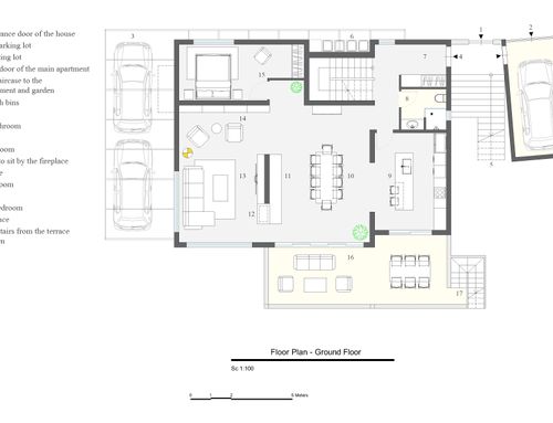
We added a "rule book" to the reerence pictures. There are a few rgulation from the state/city.
We also have a basic draft that we added to the reference pictures. But we want some more ideas/sulutions/visions from you.
ITA
Ci piace uno stile minimalista, moderno e pulito con accenti architettonici, camere spaziose e molta luce naturale.
Abbiamo comprato una casa su una collina dell '87. È costruita in una costruzione solida (cemento e pietra) quindi il nucleo è in buone condizioni. A causa del budget, il nostro pensiero era di demolire la casa fino al piano terra/soffitto del seminterrato. Nel resto dell'edificio siamo aperti a maggiori adeguamenti(Porte, Finestre, muri interni...). Forse qualche ampliamento dell'edificio.
Stavamo pensando alla sottostruttura in legno per il “nuovo” piano terra e primo piano.
Ma questi sono solo i nostri pensieri....cerchiamo un design della casa creativo e moderno.
Siamo una famiglia di 2 genitori e 2 figli e abbiamo le seguenti esigenze ed idee sulla nuova casa:
Piano terra e primo piano:
- grazioso ingresso con vano guardaroba
- cucina-pranzo-soggiorno aperta - balcone per mangiare all'aperto
- camino
- lavanderia dove possiamo mettere dentro anche cose che non ci servono quotidianamente
- stanza degli ospiti
- bagno per gli ospiti con doccia (la doccia dovrebbe essere un po' separata)
- camera matrimoniale
- entrata chiusa
- bagno padronale (doccia, vasca - sauna opzionale)
- 2 camere per i bambini (stessa dimensione) forse non vicino alla camera da letto principale
- 1 ulteriore ufficio/camera/terza camera per bambini (terzo bambino)
- bagno separato per i bambini
Seminterrato
- 2 appartamenti per ospiti in vacanza.
- uno degli appartamenti sarà magari utilizzato dai nostri due figli come appartamento condiviso quando saranno più grandicelli e andranno all'università.
- Gli appartamenti dovrebbero avere l'ingresso principale dall'esterno e non attraverso la casa.
- Si vuole anche una porta negli appartamenti dalla "parte privata della casa". Quindi possiamo anche usare gli appartamenti per gli amici se non li affittiamo.
- locale per il materiale tecnico (impianto di riscaldamento centralizzato,...)
- ripostiglio (5m²)
Giardino
- 2 terrazzini per gli appartamenti che non hanno bisogno di molta vista sul primo del giardino che noi stessi usiamo
- piscina
- piccola pool house con sauna, doccia, area relax - area relax magari utilizzata anche per dormire temporaneamente
- cucina esterna
- doccia esterna
- piccola area (12m²) per un orto (fragole, lamponi, pomodori, cetrioli, erbe aromatiche,...)
Lungo la strada: vogliamo mantenere il garage e vogliamo aggiungere un posto auto coperto per 2 auto. Abbiamo anche bisogno di un posto per i bidoni della spazzatura (4 tipi in Germania :-))
Abbiamo aggiunto un "libro delle regole" alle immagini di riferimento. Ci sono alcune regole da parte dello stato/città.
Abbiamo anche una bozza di base che abbiamo aggiunto alle immagini di riferimento. Cerchiamo altre idee/soluzioni/visioni! Grazie mille
SPA
Nos gusta un estilo minimalista, moderno y limpio con acentos arquitectónicos, espacios amplios y mucha luz natural.
Hemos comprado una casa en las colinas desde 1987. Está construida con una construcción sólida (concreto y piedra) por lo que el núcleo está en buenas condiciones. Debido al presupuesto, pensamos en demoler la casa hasta el techo de la planta baja/sótano. En el resto del edificio estamos abiertos a grandes ajustes (puertas, ventanas, paredes internas...). Tal vez alguna extensión del edificio.
Estábamos pensando en la subestructura de madera para la planta baja y el primer piso "nuevos".
Pero estos son solo nuestros pensamientos ... estamos buscando un diseño de hogar creativo y moderno.
Somos una familia de 2 padres y 2 hijos y tenemos los siguientes requisitos y pensamientos sobre el nuevo hogar:
Para planta baja y primer piso:
- bonita entrada con guardarropa
- cocina-comedor-sala de estar abierta - balcón para comer al aire libre
- chimenea
- lavadero donde también podemos poner cosas que no necesitamos todos los días
- habitación de huéspedes
- baño de visitas con ducha (la ducha debe estar un poco separada)
- Doble habitacion
- entra cerrado
- baño principal (ducha, bañera - sauna opcional)
- 2 habitaciones para niños (del mismo tamaño) tal vez no estén cerca del dormitorio principal
- 1 oficina / dormitorio / tercer dormitorio para niños (tercer niño)
- baño infantil separado
Sótano
- 2 apartamentos para huéspedes de vacaciones.
- uno de los apartamentos quizás sea utilizado por nuestros dos hijos como apartamento compartido cuando sean mayores y vayan a la universidad
- Los departamentos deben tener la entrada principal por el exterior y no por la casa.
- Pero también quiere una puerta a los apartamentos desde la "parte privada de la casa". Así que también podemos usar los apartamentos de invitados si no los alquilamos.
- sala para equipos técnicos (sistema de calefacción central, ...)
- trastero (5m²)
Jardín
- 2 terrazas para los apartamentos que no necesitan mucha vista sobre la primera del jardín que usamos nosotros mismos
- piscina
- pequeña casa de la piscina con sauna, ducha, área de relajación - área de relajación quizás también utilizada para descanso temporal
- cocina al aire libre
- ducha al aire libre
- área pequeña (12m²) para huerta (fresas, frambuesas, tomates, pepinos, hierbas, ...)
En el camino: queremos mantener el garaje y queremos agregar una cochera para 2 autos. También necesitamos un lugar para botes de basura (4 tipos en Alemania :-))
Hemos añadido un "libro de reglas" a las imágenes de referencia. Hay algunas reglas por el estado / ciudad.
También tenemos un borrador básico que hemos añadido a las imágenes de referencia. Queremos otras ideas/soluciones/visiones!
Mil gracias