
Milan, Metropolitan City of Milan, Italy
Residenziale - Appartamento
Descrizione
OBIETTIVO
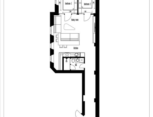
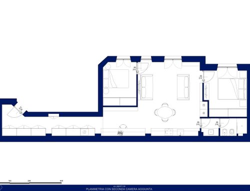
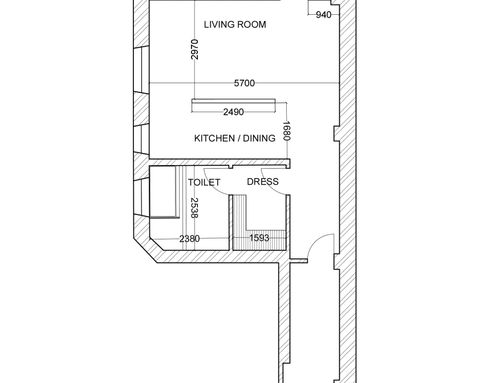
Ristutturare e trasformare completamente lo spazio, attualmente adibito a laboratorio, in un comodo bilocale per una coppia.È fondamentale mantenere la possibilità in futuro, tramite la semplice costruzione di 2 o 3 pareti, di aggiungere una seconda camera da letto e creare così un trilocale.
GOAL
Totally renovate and transform the property, currently a lab, into a comfortable 1-bedroom apartment for a couple. It’s mandatory to keep the opportunity, in the future, to convert the apartment into a 2-bedroom apartment through the creation of an additional bedroom. This transformation must be easy-to-do, just building up 2 or 3 walls.
TARGET
L'appartamento sarà vissuto da una coppia giovane, che vive e lavora nel centro di Milano, appassionata di design e di nuove tecnologie. Attualmente senza figli. Nel caso arrivasse un figlio, l’appartamento potrebbe essere usato come appoggio fino a che il bambino è ancora piccolo, per poi spostarsi verso uno spazio più comodo.
Lo spazio si trova nel pieno centro di Milano. Non sarà mai abitato da una famiglia con più figli ma sempre da coppie giovani o per affitto temporaneo in stile Airbnb. Deve quindi puntare principalmente sull’estetica e l’impatto visivo.
Il budget per la trasformazione è circa 50.000 Euro. Non ricerchiamo lusso o soluzioni particolarmente costose. Cerchiamo un progetto che sia pensato in maniera intelligente per massimizzare lo spazio a disposizione e che abbia un ottimo impatto visivo.
TARGET
A young couple, who lives and works in Milan city center. Passionate about design and new technologies. Currently no kids. In case of a baby, the apartment could be used as a temporary house, until the baby is young, to move towards a bigger and more comfortable apartment.
The property is located in Milan city center. It will never be a “family with children apartment”. It will always be a very central apartment for couples or used as an Airbnb for tourists.
Total renovation budget is around 50.000 Euro. We are not looking for luxury or particularly expensive solutions. We are looking for an apartment which provides a great visual impact and a smart design to get the most out of the available space.
LINEE GUIDA:
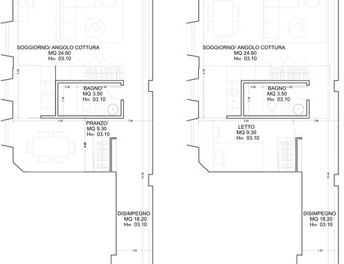
- Il bilocale deve avere la possibilità di aggiungere la seconda camera in maniera semplice, tramite la costruzione di 2 o 3 pareti. Senza dover reinventare la casa (ad esempio spostando il bagno, rifacendo impianti o buttando cucine, ecc).
- La camera da letto principale deve avere un letto matrimoniale. Non è necessario che la camera sia molto spaziosa, se può servire a dare maggiore spazio, luce e valore al resto della casa. Nell’eventualità della creazione della seconda camera, questa deve poter ospitare almeno un letto ad una piazza e mezza.
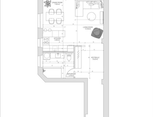
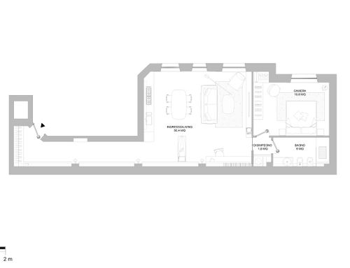
- Lo spazio che viene vissuto maggiormente è il living con cucina, che deve poter ospitare un comodo divano. E’ lo spazio dove passiamo la maggior parte del tempo e che vogliamo sia valorizzato al massimo.
- Vengono prediletti gli spazi aperti e polifunzionali, niente corridoi lunghi e tante piccole stanze. Non c’è l’esigenza di una cucina separata dal living. Anzi, sarebbe uno spazio poco utilizzato. Meglio avere uno spazio unico e ampio, con living e cucina insieme.
- L’unica esigenza per il bagno è che abbia una doccia di almeno 120x80cm (niente vasca). Se può servire a dare maggiore spazio, luce e valore al resto della casa, il bagno può anche non avere la finestra.
GUIDELINES
- The 1-bedroom apartment must have the easy opportunity to be converted into a 2-bedroom apartment just building up new walls. Without heavy transformations (i.e moving bathroom or kitchen change, changing electrical or water systems, etc).
- The main bedroom needs a king size bed. The main bedroom doesn't have to be big, if it’s needed to add value, space and light to the rest of the apartment. The second bedroom has to be big enough just to host a queen-size bed.
- The most important and lived space is the living room with kitchen. It has to host a comfortable sofa. It’s the room where we spend the majority of our time and we want it to be the main focus of the project.
- We love open and multi-purpose spaces. No long corridors and many small rooms. We do not need a separate kitchen, we won’t use it. We want a single and wide room, with living and kitchen together.
- The only request for the bathroom is having a shower at least 120x80 cm. No bathtub.
If it’s needed to add value, space and light to the rest of the apartment, the bathroom can be without a window.
BUDGET E VINCOLI:
Il budget per l’intera trasformazione è circa 50.000 Euro. Non cerchiamo lusso o creazioni particolarmente costose. Cerchiamo uno spazio che abbia un bel impatto visivo e pensato in maniera intelligente per massimizzare lo spazio a disposizione.
BUDGET AND CONSTRAINTS
Budget for the entire transformation is around 50.000 Euro. We’re not looking for luxury or expensive solutions. We just need a good looking apartment, smartly designed to make the most out of the available space.