
Padua, Province of Padua, Italy
Residenziale - Zona Giorno/Notte
Descrizione
ENG:
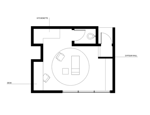
I would need to make the space of a small 30-square-meter office more efficient by enhancing a fireplace that is only decorative and a couple of steps leading to a walled-in door (to be covered). The space currently has the appearance of a tavern, I would like it to become a modern and warm psychotherapy office with shades of yellow ochre and whale blue. Since I am renting, I cannot make radical transformations. It comes with a very large desk and a dark wood-colored closet (which I'm not crazy about, but whatever!)
SPA:
Necesitaría hacer más aprovechable el espacio de un pequeño despacho de 30 metros cuadrados, realzando una chimenea que es sólo decorativa y un par de escalones que conducen a una puerta tapiada (a cubrir). El espacio tiene actualmente el aspecto de una tasca, me gustaría que se convirtiera en un moderno y cálido despacho de psicoterapia con tonos amarillo ocre y azul ballena. Como estoy de alquiler, no puedo hacer transformaciones radicales. Viene con un escritorio muy grande y un armario de color madera oscura (que no me encanta, ¡pero da igual!).
ITA:
Avrei bisogno di rendere più efficiente lo spazio di un piccolo ufficio di 30 mq valorizzando un camino solo decorativo e un paio di gradini che portano ad una porta murata (da coprire). Lo spazio attualmente ha le sembianze di una taverna, vorrei che diventasse uno studio di psicoterapia moderno e caldo con sfumature di giallo ocra e blu balena. Dato che sono in affitto, non posso fare trasformazioni radicali. Viene fornito con una scrivania molto grande e un armadio color legno scuro (di cui non vado matta, ma comunque..!).