
Brescia, Province of Brescia, Italy
Residenziale - Zona Giorno/Notte
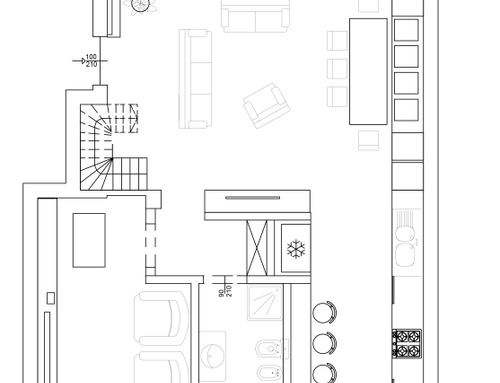
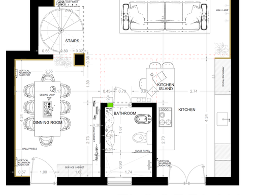
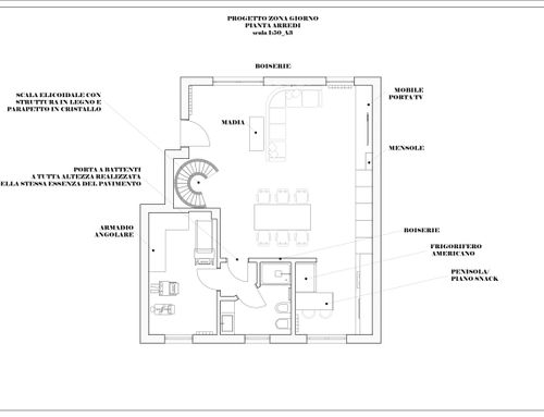
Descrizione
ITA. Preferisco uno stile moderno, liscio e lineare allo stesso tempo elegante dai colori chiari, con ambienti luminosi con controsoffitti e anche qualche boiserie non mi dispiacerebbe per dare un tocco di eleganza.
Desidero soprattutto una zona da pranzo ampia con tavolo importante (6-8 posti) senza rinunciare al salotto con divano e tv.
Considerando gli spazzi a disposizione opterei per una soluzione open space ma il salotto dovrà essere al centro della scena quando accedo dall'ingresso. Mi piacerebbe avere delle proposte in merito all'utilizzo della camera affianco al bagno in quanto momentaneamente ci bastano le due camere situate al piano superiore.
ING. I prefer a modern, smooth and linear at the same time elegant style with light colors, with bright environments with false ceilings and even some paneling I wouldn't mind giving a touch of elegance.
I especially want a large dining area with an important table (6-8 seats) without renouncing the living room with sofa and TV.
Considering the spaces available I would opt for an open space solution but the living room will have to be in the center of the scene when I enter from the entrance. I would like to have proposals regarding the use of the room next to the bathroom as the two bedrooms located upstairs are sufficient for us.