🔥 CYBER MONDAY 24H: -60% su tutti i prezzi del sito! Solo fino a mezzanotte. Usa il codice CYBERMONDAY25 👉🏼
img

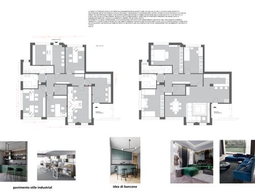
portaluppi

Milan, Metropolitan City of Milan, Italy

Residenziale - Loft

  • 1° Posto € 204
  • 2° Posto € 68
  • 3° Posto € 34
  • 4° Posto € 17
  • 5° Posto € 17