
Cagliari, Province of Cagliari, Italy
Residenziale - Appartamento
Descrizione
Avere una casa dove far Due volte all'anno feste da 200 persone quindi saloni grandi , se un domani voglio dividerla in due appartamenti poter fare la divisione con pochi costi quindi fare doppi impianti ecc ecc ...spazi verdi , molta luce , avere la possibilità di fare 4 stanze da letto senza dover far lavori ma da subito solo 2 stanze da letto così da aver più spazio per i saloni ...delle 2 stanze da letto una padronale molto grande con sauna in camera vasca da bagno cabine armadio ecc ecc e la seconda una marimoniale classica .
Tutte le stanze da letto con bagno in camera .
Dopodiché lascio spazio alla vostra mente .
La casa si trova all'interno di un palazzo storico al secondo piano ; l'appartamento copre tutto il piano. Sono amante delle piante , giardini spazi all'esterno .
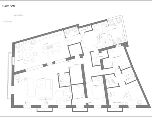
La piantina che ho allegato è quella che ho pensato io con la mia compagna .
I muri dell'appartamento sono già stati tutti demoliti . Quelli che vedete nella piantina sono stati creati solo sulla piantina da me e la mia fidanzata e ci farebbe piacere il più possibile lasciare questa distribuzione di ambienti in linea generale ma tutto è ben accetto se si vogliono fare modifiche ; in verde sono vetrate a scacchi tutte completamente apribili per creare dei grandi ambienti anche comunicanti con l'esterno .
Se volete cambiare qualcosa o fare dei miglioramenti non mettetevi problemi .
Un mix tra i vari ambienti delle foto .
I soffitti sono da 3,90 - 3,60metri circa
Buon lavoro !!!
I'd like to have a house where we can throw a party twice a year with about 200 people so with large living rooms. I may want to split it up in two apartments in the future with a small budget so I'd like two separate electrical and plumbing systems etc etc....green areas, lots of light. I'd like to have the chance to have 4 bedrooms in the future, but two bedrooms right now so as to have more space for the living rooms....1 very large master bedroom with en-suite sauna, bathtub, walk-in closet etc etc and a regular 2nd bedroom.
Each bedroom has an en-suite bathroom.
Then I leave it to you.
The apartment is located on 2nd floor of a historical building, the apartment takes the whole floor. I love plants, external garden spaces.
The floor map I have attached is what I have worked out with my girlfriend.
The walls have been demolished. The ones you see on the floor map have been created only on paper by us and we'd like to keep this space arrangement as much as possible but we can definitely come up with some changes; in green you can see the factory-style windows used as glass walls, which can be opened in order to create big spaces and to the outside.
If you'd like to change anything or improve, please feel free.
A mix of the different spaces from the pictures.
Good luck!!!!