
76123 Andria, Province of Barletta-Andria-Trani, Italy
Residenziale - Appartamento
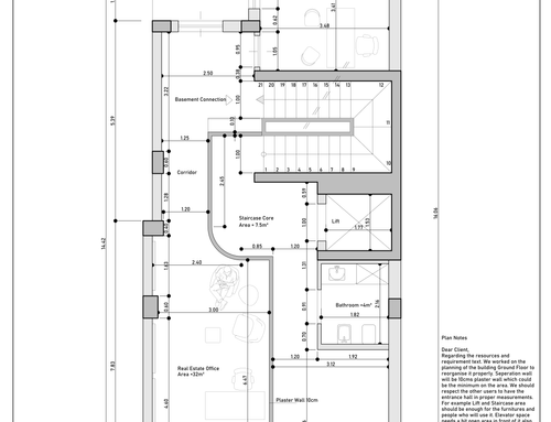
Descrizione
ENG:
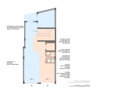
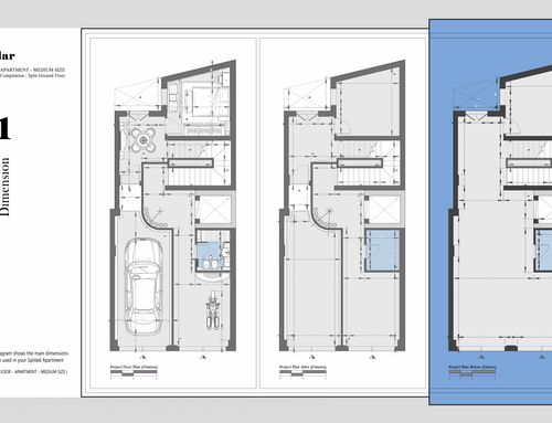
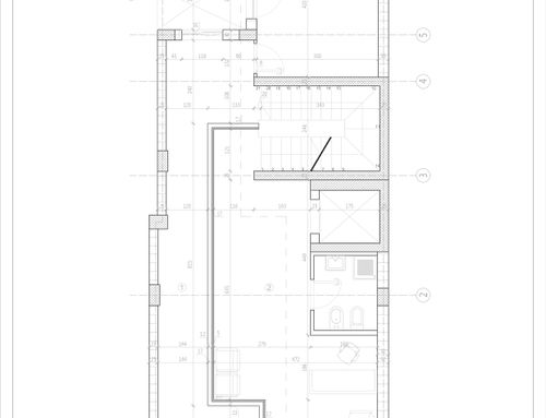
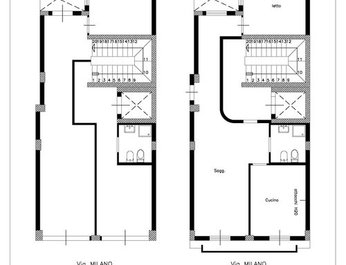
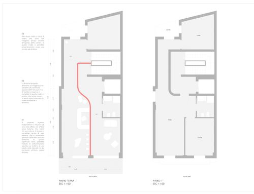
We should divide the space that is now used as a garage into two spaces: one that can give access to the apartments above, therefore taking the stairs and the lift. The other half should include the room seen at the back plus access to the stairway to the basement. So perhaps a wall should be built to divide the floor area in order to create access to the lift on one side and the stairs to the apartments above. And on the other a surface including the room at the back, a corridor which leads from the shutter to the room and then access to the staircase which leads to the basement. In this way we form a real estate unit made up of room plus surface area minus one.
SPA:
Debemos dividir el espacio que ahora se utiliza como garaje en dos espacios: uno que puede dar acceso a los apartamentos de arriba, tomando así las escaleras y el ascensor. La otra mitad debe incluir la habitación que se ve al fondo más el acceso a la escalera al sótano. Entonces, tal vez debería construirse una pared para dividir el área del piso con el fin de crear acceso al ascensor por un lado y a las escaleras a los apartamentos de arriba. Y por el otro una superficie que incluye la habitación al fondo, un pasillo que conduce desde la persiana a la habitación y luego accede a la escalera que conduce al sótano. De esta forma formamos una unidad inmobiliaria formada por habitación más superficie menos uno.
ITA:
Dovremmo dividere lo spazio che ora è adibito a garage in due spazi: uno che possa far accedere agli appartamenti sovrastanti quindi prendendo scale e ascensore. L'altra metà dovrebbe comprendere la stanza che si vede in fondo più l'accesso alla scala che porta al piano interrato. Quindi si dovrebbe forse costruire un muro per dividere la superficie in modo da creare da un lato l'accesso all'ascensore e alle scale per gli appartamenti che ci sono sopra. E dall'altro una superficie comprendente la stanza che sta in fondo, un corridoio che dalla serranda conduce alla stanza e poi l'accesso alla scala che porta al piano interrato. In questo modo formiamo un'unità immobiliare costituita da stanza più superficie meno uno.