
Paris, France
entertainment - Ristorante
Descrizione
Dear designers,
this is a Contest for a new italian fast-food restaurant. Our aim is to offer our clients the real experience of quality italian food in a good italian restaurant with the formula of an english fast-food. So we’d like to synthetize italian quality and english efficiency and speed.
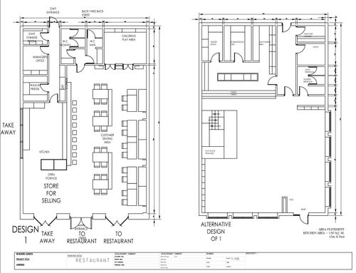
All our dishes will be also available for take-away. Our main dish will be the italian pasta (fresh tagliatelle, gnocchi, spaghetti, penne etc.) spiced with many different sauces. There will also be salads, typical sausages and cheese, a little selection of italian desserts (cookies, tiramisù etc.) and beverages.
Some of our products will be also sold raw, clients will be able to buy pasta, sauces, olive oil, vinegar, cheese, sausages, cookies and then cook this ingredients at their home.
We will be particularly careful about the packages that will be coherent with the concept and the design of the restaurant.
The main adjectives that we would use to describe this concept are: modern, elegant, simple, contemporary, engaging.
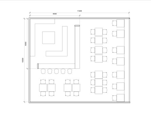
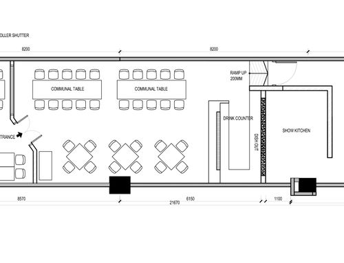
We will search for a place that is about 100-120sqm with about 40 seats for a total of 160 mels served per day. 40% of the space will be dedicated to kitchen and technical locals. There should be enough space for the take-away service.
Thank you!
Italian description:
Si vuole realizzare una nuova formula di ristorante-fast food capace di offrire ai clienti la vera esperienza del cibo italiano di qualità senza compromessi, che si ritrova in un buon ristorante italiano, con una formula di servizio tipica del fast food anglosassone. In sintesi: qualità del cibo italiana, servizio fast anglosassone.
Naturalmente i piatti saranno proposti anche nella formula take away per soddisfare i clienti che necessitano di questo tipo di servizio.
Il piatto principale sarà la tipica pasta fresca italiana (tagliatelle, gnocchi, spaghetti, penne, etc.) con diversi tipi di sughi, le insalate e altri piatti di salumi e formaggi tipici italiani con una piccola proposta di dolci italiani (biscotti e tiramisù ), oltre naturalmente alle bevande.
Inoltre molti dei prodotti potranno essere acquistati ancora da preparare (pasta, sughi, olio, aceto, formaggio, salumi, verdure conservate, biscotti, etc.) proposti in accattivanti pack in linea con il mood del locale per la preparazione ed il consumo domestico.
Ecco gli aggettivi guida del progetto: moderno elegante semplice contemporaneo
Ecco alcuni dati:
100-120 mq. di cui 40% uso cucina+area tecnica
40 posti seduti (circa 160 coperti giorno; ogni lunch due turni)
da prevedere take away