
Bari, Metropolitan City of Bari, Italy
Residenziale - Appartamento
Descrizione
DESCRIZIONE.
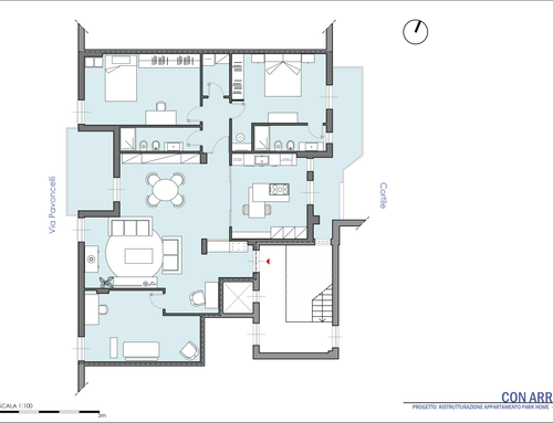
L’appartamento è stato costruito negli anni ’70, è di 152 metri quadri commerciali; per quanto riguarda i metri calpestabili (esclusi i balconi) abbiamo calcolato da piantina allegata circa 135 metri quadri. L’abbiamo appena acquistato perché, andati recentemente in pensione, abbiamo maturato l’esigenza di trasferirci in città da un paese della provincia e di avere una stanza in più rispetto alla situazione attuale. E’ posto al 4° piano ed è interamente da ristrutturare, (vedi video al seguente link: https://www.youtube.com/watch?v=opYyG0Fn9JI&t=16s ).
L’altezza del soffitto è di 3 metri. Attualmente è affittato a studenti universitari fino al 31/08/2022. La nostra “famiglia allargata” è generalmente ristretta a noi due, con i figli ormai grandi che abitano e lavorano fuori e che tornano in periodi di festività (una figlia e un figlio ).
L’appartamento ha un doppio affaccio: a ovest nella strada principale (Via Pavoncelli), a est in un cortile interno. Sia in un lato che nell’altro i palazzi dirimpettai sono lontani, pertanto l’appartamento è sufficientemente luminoso anche se purtroppo le finestre sono larghe soltanto 121 cm.
Quello che si chiede è
1) una redistribuzione estetica e funzionale degli spazi , cercando di valorizzare al massimo la luce naturale in particolare in cucina e nel living in cui le finestre non sono molto larghe ( Larghezza 121)
2) la collocazione dei mobili in nostro possesso ( e che vorremmo conservare, compresi anche i numerosi libri ) e dei termosifoni e/o eventuali termoarredi e condizionatori.
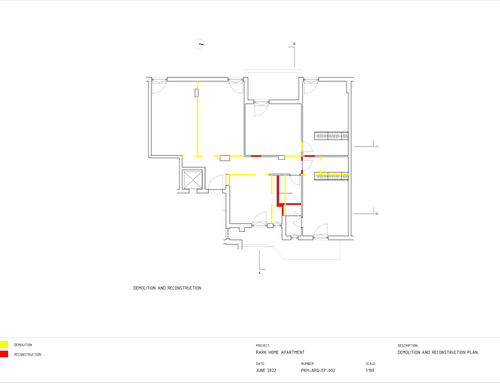
3) la creazione di un secondo bagno
4) l'allestimento del terrazzino come piccolo "giardino d'inverno" da godere in tutte le stagioni.
I render li vorremmo relativi allo spazio Ingresso/Living/cucina e alla stanza Studio/Atelier/Ospiti.
ESIGENZE GENERALI
1) Ridistribuzione funzionale (Le pareti non sono portanti e perciò potrebbero, in linea teorica essere tutte demolite, tranne le colonne portanti (ovviamente)
2) Interior design.
3) Siamo preoccupati per il fatto che le porte/finestre non sono molto grandi (120) e sostituendo gli attuali serramenti in anticorodal con quelli più performanti in PVC o alluminio, la superficie vetrata, e quindi la luminosità, si ridurrà ulteriormente. Oltre che usare profili minimal, vetri extratrasparenti, e pensare ad una portafinestra scorrevole ad unica anta per l'accesso al terrazzino, chiediamo di suggerire qualche soluzione architettonica per ampliare la luminosità naturale del living.
STILE: a noi piace uno stile moderno, elegante luminoso e caldo, accogliente. A tale riguardo ci piace molto lo stile della casa in cui viviamo ora (moderno con qualche pezzo antico ) e che lasceremo trasferendoci a Bari (vedi PDF " Album foto degli arredi da conservare" ).
COLORI: neutri, che trasmettano un senso di relax e serenità.
FINITURE PAVIMENTI E TELAI:
• ci piace molto il parquet in rovere chiaro (non troppo giallo), in tutti gli ambienti, tranne nei bagni e in cucina;
• preferiamo bianchi sia gli infissi che le porte che vorremmo bianche e laccate
ILLUMINAZIONE/CONTROSOFFITTI: amiamo molto, in generale, la luce diffusa, non fredda.
ALTRO: ci piacerebbe ( ma non è certo indispensabile) un grande specchio , eventualmente nell’ingresso, così come l’abbiamo nell’attuale casa (vedi video della vecchia casa allegato e PDF ( Album foto degli arredi da conservare).
ESIGENZE SPECIFICHE RELATIVE ALLE DIVERSE ZONE DELLA CASA
INGRESSO: vorremmo fosse reso più luminoso e funzionale, prevedendo anche una cappottiera.
ZONA CUCINA: vorremmo mantenere la cucina lì dove attualmente si trova . Ci piacerebbe, però, integrarla con la zona living , aprendola visivamente, anche solo parzialmente ( semi aperta ) e con la possibilità di chiuderla anche del tutto ( es. grande porta scorrevole, oppure una vetrata, oppure....) - senza sacrificare troppo la funzione di stoccaggio.
Vorremmo, inoltre, qualche consiglio su come renderla congrua esteticamente con i mobili, già in nostro possesso, posizionati nel living. Non vogliamo un tavolo, poiché in fin dei conti siamo in due e quando siamo in più persone possiamo utilizzare il tavolo da pranzo del living. Ci piacerebbe pertanto, se fosse possibile e anche funzionale, una piccola isola o una penisola o uno snack table ( basso!), che possa servire anche come piano di lavoro e possa godere maggiormente della luce naturale che proviene dalla finestra.
In cucina vogliamo che venga prevista una piccola TV.
Poiché la vorremmo molto luminosa, per le ante e le pareti preferiamo colori neutri, bianco, rovere chiaro, grigio,…... Il lavello unico, senza gocciolatoio, da cm 70 di larghezza. Il piano cottura ad induzione e a 5 fuochi, colonna con forno alto e microonde, frigorifero integrato, lavastoviglie. L’illuminazione artificiale della cucina deve essere soft e diffusa ma ben illuminata la zona piano di lavoro e cottura.
ZONA LIVING/OPEN SPACE: tale zona dovrebbe usufruire di un terrazzino che si affaccia su via Pavoncelli (via principale) nel quale vorremmo ritagliarci un piccolo angolo verde. Nel living vorremmo uno stile lineare moderno, con qualche elemento classico in nostro possesso, e qui sotto elencato, a cui siamo affezionati in quanto ricordi familiari (vedi PDF " Album foto degli arredi da conservare):
• Un comò antico in noce metà '800 di cm 130 x 66x 103 (h) che non deve essere collocato né in camera né nello studio. Essendo un pezzo di un certo pregio, lo vorremmo ben valorizzato
• Un tavolo ovale d’epoca (da pranzo quando siamo più di due) allungabile di cm 124 x 107 (chiuso) x 81 (h)
• Una scrivania attualmente nel living di cm 130 x 65 e 80 (h) (se proprio non dovesse entrarvi la scrivania pazienza..)
Inoltre vorremmo che fossero collocati possibilmente anche tutti i seguenti altri mobili (vedi PDF " Album foto degli arredi da conservare ):
• Una libreria interparete bifacciale laccata bianca componibile che copre attualmente una parete di m 6,45 (h circa 2,70) formata da:
- N. 2 moduli di larghezza 96 cm
- N. 1 modulo di larghezza 50 cm
- N. 3 mensole di raccordo di cm 225
- N. 4 mensole di raccordo di cm 195
• Un divano, bianco panna, a tre posti cm 218 x 95
• Un divano, bianco panna, a due posti cm 186 x 95
• Una madia di cm 215 x 50 x 100 (h) – per quanto concerna questo mobile (vedi PDF " Album foto degli arredi da conservare ), vorremmo un vostro parere se sia il caso di tenerla così o di apportare delle modifiche estetiche con un appropria
to intervento di falegnameria (quale ?...) al fine di renderla più congruente con lo stile generale del living.
- Un tappeto choby di lana contemporaneo di cm 257x200
- Un tappeto choby di lana contemporaneo di cm 198x148
Nel living vorremmo avere una zona di lettura/ascolto musica (con posizionamento di stereo hifi, dischi, cd, ecc.).
Chiaramente non può mancare la zona TV almeno 55 pollici.
Intorno al tavolo ovale vorremmo sostituire le sedie che abbiamo e abbinare delle sedie comode o delle poltroncine ( un suggerimento su questo sarebbe davvero molto gradito!!)
Sul tavolo ovale (che è il tavolo da pranzo quando siamo più di due) vorremmo una lampada a sospensione. Per l’illuminazione complessiva, invece, pensiamo ad una illuminazione soft (led) nascosta da una veletta (vedi PDF " Album foto degli arredi da conservare ) e una piantana/lampada per illuminare la zona divani.
Anche di questa zona vorremmo il render.
CAMERA MATRIMONIALE: in questa camera (vedi PDF " Album foto degli arredi da conservare ) esistono già i seguenti arredi in rovere grigio :
• Un Letto matrimoniale (177 cm testata x 212 cm lunghezza) con comodini (63 cm x 42)
• Un comò di cm 145 x 52 x 75,5 (h)
• Un settimino di cm 71 x 52 x 120 (h)
Va prevista la sistemazione di una TV davanti al letto
Per quanto concerne l’armadio, nella casa in cui abitiamo ora, in camera c’è un armadio di falegnameria 4 stagioni a 7 sportelli, attualmente incassato nel muro, di cm 351 x 60, eventualmente da modificare (sicuramente cambiando il colore) / ricollocare. Si può comunque valutare l’acquisto di un nuovo armadio o la realizzazione di una cabina armadio.
Vorremmo rendere la camera decisamente più accogliente rispetto all'attuale un po' fredda, caratterizzando la parete dietro il letto. Sul letto non vogliamo la mensola, così come è adesso, magari trovando un modo per collocarla o riutilizzarla diversamente. Nella camera vorremmo un sistema di luci calde e avvolgenti e due luci da lettura. Le attuali due lampade Micro Artemide (vedi PDF " Album foto degli arredi da conservare ) se fosse possibile le ricollocheremmo da qualche altra parte per esempio nella zona studio e camera figlia.
CAMERA FIGLIA: per questa camera esistono già i seguenti arredi da collocare:
• Un letto a una piazza e mezzo (228 cm con testata x 156 cm)
• Un armadio con 3 ante scorrevoli (305 cm x 65,5/70 anta centrale) x 270 (h)
• Un tavolo su cavalletti di cm 150 x 70
• Comodino 40 x 48 x 55 (h)
• Una cassettiera cm 40 x 48 x 123 (h)
ZONA STUDIO/ATELIER/CAMERA OSPITI: in tale zona vorremmo ricavare 2 spazi per i nostri hobbies, dato che siamo da poco pensionati: uno dedicato alla pittura e l’altro per studio e accogliere il figlio o eventuali ospiti (divano letto a 1 piazza e mezza). Vorremmo che i due spazi fossero separati (sarebbe l’ideale) se non del tutto, almeno visivamente, anche se conviventi in un’unica stanza.
BAGNI: nell’appartamento, attualmente, c’è solo un bagno; vorremmo che fosse realizzato un secondo bagno, tutti e due con piatto doccia, lavabo, wc e bidet. Nota Importante: per la legge italiana non è possibile accedere direttamente al bagno dalla zona giorno/cucina.
LAVANDERIA: la zona lavanderia, con lavatoio, anche piccola, (lavatrice e asciugatrice anche sovrapposte) deve essere collocata possibilmente all’interno dell’appartamento.
--------------------
Infine ci piacerebbe trovare adeguata sistemazione per due tele di arredamento delle seguenti dimensioni: cm 200x100 e cm 120x100. (vedi PDF " Album foto degli arredi da conservare) Se c’è una proposta migliore quella più grande la possiamo non considerare, perché non tanto ci piace)
SI SPECIFICA CHE L' ALBUM "FOTO DEL TUO SPAZIO" INSERITE SOTTO SI RIFERISCONO ALL'APPARTAMENTO APPENA ACQUISTATO E ATTUALMENTE ANCORA ABITATO DA STUDENTI. I MOBILI Lì PRESENTI NELLE FOTO SONO QUELLI DEGLI STUDENTI, CHE SARANNO SMALTITI.
I MOBILI A CUI FACCIAMO RIFERIMENTO NELLA DESCRIZIONE DEI DESIDERATA DEI SINGOLI AMBIENTI SONO QUELLI CHE NOI ABBIAMO NELLA CASA IN CUI ATTUALMENTE VIVIAMO E NON SONO INSERITI TRA LE FOTO, MA SOLO DESCRITTI. SE RICHIESTO POSSIAMO FORNIRE ANCHE LE FOTO DEGLI STESSI.
COMUNQUE NEL PDF " Album foto degli arredi da conservare" E' POSSIBILE VEDERE I MOBILI DELLA NOSTRA CASA ATTUALE CHE VOGLIAMO TENERE ANCHE NEL NUOVO APPARTAMENTO.
ENGLISH
DESCRIPTION.
The apartment was built in the 1970s and is 152 commercial square meters; as regards the walkable meters (excluding balconies) we calculated about 135 square meters from the attached map. We have just bought it because, having recently retired, we have developed the need to move to the city from a town in the province and to have an extra room compared to the current situation. It is located on the 4th floor and is entirely in need of renovation, (see video at the following link: https://www.youtube.com/watch?v=opYyG0Fn9JI&t=16s).
The ceiling height is 3 meters. It is currently rented to university students until 08/31/2022. Our "extended family" is generally restricted to the two of us, with grown-up children who live and work outside the home and return during the holidays (a daughter and a son).
The apartment has a double view: to the west in the main street (Via Pavoncelli), to the east in an internal courtyard. Both on one side and on the other the opposite buildings are far away, so the apartment is bright enough even if unfortunately the windows are only 121 cm wide.
What we ask is:
1) an aesthetic and functional redistribution of spaces, trying to make the most of natural light in particular in the kitchen and in the living room where the windows are not very wide (Width 121)
2) the possibility of placing the furniture in our possession (that we would like to keep, including several books) as well as the as the radiators and/or air conditioners
3) the creation of a second bathroom
4) the setting up of the terrace as a small winter garden to be enjoyed in all season
We would like render views for the Entrance / Living / kitchen space and to the Study / Atelier / Guests room
We would like the renders related to the Living space with kitchen and to the Study / Guest room.
GENERAL NEEDS
1) Functional redistribution (The walls are not load-bearing and therefore could theoretically all be demolished, except the load-bearing columns, obviously)
2) Interior design.
3) We are concerned about the fact that the doors / windows are not very large (120) and by replacing the current anticorodal windows with the more performing ones in PVC or aluminum, the glazed surface, and therefore the brightness, will further reduce. In addition to using minimal profiles, extra-transparent glass, and thinking of a single-leaf sliding French door for access to the terrace, we ask you to suggest some architectural solutions to expand the natural brightness of the living room.
STYLE: we like a modern, elegant, bright and warm, welcoming style. In this respect we really like the style of the house we live in now (modern with some ancient pieces from our grandparents) and that we will leave when we move to Bari - see the attached video and PDF (Album foto degli arredi da conservare).
COLORS: neutral, which convey a sense of relaxation and serenity.
FLOOR AND FRAME FINISHES:
• we really like the light oak parquet (not too yellow), in all the rooms, except in the bathrooms and in the kitchen;
• we prefer white both the frames and the doors that we would like to be white and lacquered
LIGHTING / FALSE CEILINGS: in general we love diffused light, not cold light.
OTHER: we would like (but it is certainly not essential) a large mirror, possibly in the entrance, as we have it in the current house (see attached video of the old house and reference photo no. 3).
SPECIFIC NEEDS RELATING TO THE DIFFERENT AREAS OF THE HOUSE
ENTRANCE: we would like it to be made brighter and more functional, also providing a coat.
KITCHEN AREA: we would like to keep the kitchen where it is currently located. We would like, however, to merge it with the living room, by opening it up visually but with an option to close it ( es. large sliding doors or a glass wall, etc..) without compromising on kitchen storage.
We would also like some advice on how to make it aesthetically congruent with the furniture, already in our possession, positioned in the living room. We don't want a table, since in the end there are two of us and when there are more people we can use the dining table in the living room. We would therefore like, if it were possible and also functional, a small island or a peninsula or a snack table (low!) that could also serve as a work surface and that could allow more natural light coming from the window.
In the kitchen we want a small TV to be provided.
Since we would like it to be very bright, we prefer neutral colors, white, light oak, gray for the doors and walls. The single sink, without drip, 70 cm wide. The induction hob and 5 burners, column with high oven and microwave, integrated refrigerator, dishwasher. Artificial lighting in the kitchen must be soft and diffused but the worktop and cooking area well lit.
LIVING / OPEN SPACE AREA: this area should take advantage of a small terrace overlooking via Pavoncelli (main street) in which we would like to carve out a small green corner. In the living room we would like a modern linear style, with some ancient elements in our possession, and listed below, to which we are fond of as family memories ( see PDF : Album foto degli arredi da conservare) :
• An antique ( late 19th century ) chest of drawers measuring 130 x 66x 103 (h) cm which should not be placed in the bedroom or in the study. Being a piece of a certain value, we would like it well valued
• An extendable period oval table (for dining when we are more than two) 124 x 107 (closed) x 81 (h) cm
• A desk currently in the living room of 130 x 65 and 80 (h) cm (if the desk really does not fit, please be patient ..)
Furthermore, we would like all the following other furniture to be placed if possible (see PDF "Album foto arredi da conservare "):
• A modular white lacquered double-sided wall bookcase that currently covers a 6.45 m (2.70 h) wall made up of:
- N. 2 modules 96 cm wide
- N. 1 module 50 cm wide
- N. 3 connection shelves of 225 cm
- N. 4 connecting shelves of 195 cm
• A three-seater sofa 218 x 95 cm ,color white cream
• A two-seater sofa 186 x 95 cm, color white cream
• A sideboard measuring 215 x 50 x 100 (h) cm - as far as this piece of furniture is concerned ( see PDF "Album foto arredi da conservare ") we would like your opinion if it is appropriate to keep it that way or to make some aesthetic changes with an appropriate carpentry intervention in order to make it more congruent with the general style of the living room.
- A contemporary wool choby rug measuring 257x200 cm
- A contemporary wool choby rug measuring 198x148 cm
In the living room we would like to have a reading / listening area for music (with positioning of stereo hifi, discs, CDs, etc.).
Clearly, the TV area at least 55 inches cannot be missing.
On the oval table (which is the dining table when we are more than two) we would like a pendant lamp
Around the oval table we would like to replace the chairs we have and combine comfortable chairs or armchairs (a suggestion on this would be very welcome !!)
For the overall lighting, instead, we think of a soft lighting (LED) hidden by a veil (see PDF "Album foto arredi da conservare ") and a floor lamp / lamp to illuminate the sofa area. We would like to have a render of this area.
DOUBLE BEDROOM: in this room (see PDF "Album foto arredi da conservare ") the following furniture in gray oak already exists:
• A double bed (headboard 177 cm x length 212 cm) with bedside tables (63 cm x 42)
• A chest of drawers measuring 145 x 52 x 75.5 cm (h)
• A septet measuring 71 x 52 x 120 (h) cm
A TV should be placed in front of the bed.
As for the wardrobe, in the house we live in now, in the bedroom there is a 4-season carpentry cabinet with 7 doors, currently built into the wall, 351 x 60 cm, possibly to be modified (certainly by changing the color) / relocate. However, the purchase of a new wardrobe or the construction of a walk-in closet can be considered.
We would like to make the room considerably more welcoming than the current one, a bit cold, by characterizing the wall behind the bed. On the bed we do not want the shelf, as it is now, perhaps by finding a way to place it or reuse it differently. In the bedroom we would like a warm and enveloping light system and two reading lights. The current two Micro Artemide lamps (see PDF "Album foto arredi da conservare ") if it were possible we would relocate them somewhere else, for example in the study area and daughter room.
DAUGHTER ROOM: the following furnishings already exist in this room:
• A single bed and a half (228 cm with headboard x 156 cm)
• A wardrobe with 3 sliding doors (305 cm x 65.5 / 70 central door) x 270 (h)
• A table on trestles measuring 150 x 70 cm
• Bedside table 40 x 48 x 55 (h)
• A chest of drawers 40 x 48 x 123 (h) cm
STUDIO / ATELIER / GUEST ROOM AREA: in this area we would like to obtain 2 spaces for our hobbies, since we are recently retired: one dedicated to painting and the other to study and welcome the child or any guests (single sofa bed and a half). We would like the two spaces to be separated (it would be ideal) if at all, at least visually, even if they live together in a single room.
BATHROOMS: currently there is only one bathroom in the apartment; we would like a second bathroom to be built, both with shower, sink, toilet and bidet. Important Note: due to Italian law it is not possible to directly access the bathroom from the living / kitchen area.
LAUNDRY: the laundry area, with sink, even a small one, (washing machine and dryer also superimposed) must be placed possibly inside the apartment
--------------------
Finally, we would like to find suitable accommodation for two furnishing canvases of the following dimensions: cm 200x100 and cm 120x100. (see PDF "Album foto arredi da conservare ") If there is a better proposal, the bigger one we can not consider, because we don't like it so much.
IT IS SPECIFIED THAT THE "PHOTOS OF YOUR SPACE" INSERTED BELOW REFER TO THE APARTMENT JUST PURCHASED AND CURRENTLY STILL INHABITED BY STUDENTS. THE FURNITURE PRESENT IN THE PHOTOS ARE THOSE OF THE STUDENTS, WHICH WILL BE DISPOSED OF.
THE FURNITURE TO WHICH WE REFER IN THE DESCRIPTION OF THE DESIRED OF THE INDIVIDUAL ENVIRONMENTS ARE THE ONE THAT WE HAVE IN THE HOUSE IN WHICH WE CURRENTLY LIVE AND ARE NOT INCLUDED IN THE PHOTOS, BUT ONLY DESCRIBED. IF REQUIRED WE CAN ALSO PROVIDE PHOTOS OF THE SAME.
HOWEVER, IN THE FOLLOWING PDF " Album foto degli arredi da conservare" IT IS POSSIBLE TO SEE THE FURNITURE OF OUR CURRENT HOUSE THAT WE ALSO WANT TO KEEP IN THE NEW APARTMENT.
ESPANOL
DESCRIPCIÓN.
El apartamento fue construido en la década de 1970 y tiene 152 metros cuadrados comerciales; en cuanto a los metros transitables (excluyendo balcones) calculamos unos 135 metros cuadrados según el plano adjunto. Lo acabamos de comprar porque, al estar recién jubilados, nos ha surgido la necesidad de trasladarnos a la ciudad desde un pueblo de provincia y disponer de una habitación extra respecto a la situación actual. Está ubicado en el 4to piso y necesita una renovación completa (ver video en el siguiente enlace: https://www.youtube.com/watch?v=opYyG0Fn9JI&t=16s).
La altura del techo es de 3 metros. Actualmente se encuentra alquilado a estudiantes universitarios hasta el 31/08/2022. Nuestra "familia extensa" generalmente está restringida a nosotros dos, con hijos adultos que viven y trabajan fuera del hogar y regresan durante las vacaciones (una hija y un hijo).
El apartamento tiene una doble vista: al oeste en la calle principal (Via Pavoncelli), al este en un patio interno. Tanto por un lado como por el otro, los edificios opuestos están lejos, por lo que el apartamento es lo suficientemente luminoso aunque, lamentablemente, las ventanas miden solo 121 cm de ancho.
Lo que pedimos es:
1) una redistribución estética y funcional de los espacios, tratando de aprovechar al máximo la luz natural en especial en la cocina y en el salón donde las ventanas no son muy amplias (Ancho 121)
2) la posibilidad de colocar nuestros muebles (que nos gustaría conservar, incluidos los muchos libros) al igual que los radiadores y/o aire acondicionado
3) la creación de un segundo baño
4) la configuracion de la terraza (Via Pavoncelli) como un pequeno "jardin de invierno"para disfrutar en todas las estaciones
Nos gustaría los renders relacionados con la Sala de estar con cocina y con el Estudio/Cuarto de invitados.
NECESIDADES GENERALES
1) Redistribución funcional (Los muros no son de carga y por lo tanto teóricamente se podrían demoler todos, excepto las columnas de carga (obviamente)
2) Diseño de interiores.
3) Nos preocupa el hecho de que las puertas/ventanas no son muy grandes (120) y al sustituir las actuales ventanas anticorodal por las de mayor rendimiento en PVC o aluminio, la superficie acristalada, y por tanto la luminosidad, se reducirá aún más. Además de utilizar perfiles mínimos, cristales extratransparentes y pensar en una puerta francesa corredera de una hoja para el acceso a la terraza, te pedimos que propongas algunas soluciones arquitectónicas para ampliar la luminosidad natural del salón.
ESTILO: nos gusta un estilo moderno, elegante, luminoso y cálido, acogedor. En este sentido, nos gusta mucho el estilo de la casa en la que vivimos ahora (moderna con algunas piezas antiguo de nuestros abuelos) y que dejaremos cuando nos mudemos a Bari (veras PDF " Album foto degli arredi da conservare").
COLORES: neutros, que transmiten una sensación de relajación y serenidad.
ACABADOS DE PISO Y ESTRUCTURA:
• nos gusta mucho el parquet de roble claro (no demasiado amarillo), en todas las habitaciones, excepto en los baños y en la cocina;
• preferimos el blanco tanto los marcos como las puertas que nos gustaría que fueran blancas y lacadas
ILUMINACIÓN / FALSOS TECHOS: en general nos encanta la luz difusa, no la luz fría.
OTROS: nos gustaría (pero seguro que no es imprescindible) un espejo grande, posiblemente en la entrada, como lo tenemos en la casa actual ( veras PDF " Album foto degli arredi da conservare").
NECESIDADES ESPECÍFICAS RELACIONADAS CON LAS DISTINTAS ZONAS DE LA CASA
ENTRADA: nos gustaría que fuera más luminosa y funcional, aportando también un abrigo.
ÁREA DE COCINA: nos gustaría mantener la cocina donde se encuentra actualmente. Sin embargo, nos gustaría unirla con el salon, abriendola visualmente, aunque sea parcialmente ( medio abierto) y con la posibilidad de cerrarlo completamente ( es. gran puerta corredera , o una pared de cristal o ..........), sin comprometere el espacio para almacenaje.
Tambien nos gustaria un consejo sobre cómo hacerlo estéticamente congruente con el mobiliario, ya en nuestro poder, colocado en la sala de estar. No queremos mesa, ya que al final somos dos y cuando haya más gente podemos usar la mesa de comedor del salón. Por lo tanto, nos gustaría, si fuera posible y ademas funcional, una pequeña isla o una península o una mesa de bocadillos (¡baja!) que también funcione como una superficie de trabajo que deje entrar más luz natural por la ventana.
En la cocina queremos que se proporcione un pequeño televisor.
Como nos gustaría que fuera muy luminosa, preferimos colores neutros, blanco, roble claro, gris para las puertas y paredes. El lavabo individual, sin goteo, de 70 cm de ancho. La placa de inducción y 5 fuegos, columna con horno alto y microondas, frigorífico integrado, lavavajillas. La iluminación artificial en la cocina debe ser suave y difusa pero la encimera y la zona de cocción deben estar bien iluminadas.
ÁREA DE VIDA / ESPACIO ABIERTO: esta área debe aprovechar una pequeña terraza con vistas a via Pavoncelli (calle principal) en la que nos gustaría labrar un pequeño rincón verde. En el salón nos gustaría un estilo lineal moderno, con algunos elementos clásicos en nuestro poder, y que enumeramos a continuación, a los que tenemos cariño como recuerdos familiares (ver PDF " Album foto degli arredi da conservare"):
• Una cómoda antigua ( siglo IX ) de 130 x 66x 103 (h) cm que no debe colocarse en el dormitorio ni en el estudio. Al ser una pieza de cierto valor, nos gustaría que estuviera bien valorada
• Una mesa ovalada de época (para cenar cuando somos más de dos) de 124 x 107 (cerrada) x 81 (h) cm
• Un escritorio actualmente en la sala de estar de 130 x 65 y 80 (h) cm (si el escritorio realmente no cabe, tenga paciencia ..)
Además, si es posible, nos gustaría que se colocaran todos los siguientes muebles ( ver PDF " Album foto degli arredi da conservare"):
• Librería de pared de doble caramodular lacada en blanco que actualmente cubre una pared de 6,45 m (2,70 h) compuesta por:
- N. 2 módulos de 96 cm de ancho
- N. 1 módulo de 50 cm de ancho
- N. 3 estantes de conexión de 225 cm
- N. 4 estantes de conexión de 195 cm
• Un sofá de tres plazas 218 x 95 cm ( crema blanca )
• Un sofá de dos plazas 186 x 95 cm (crema blanca)
• Un aparador de 215 x 50 x 100 (h) cm - En cuanto a este mueble ( ver PDF " Album foto degli arredi da conservare") nos gustaría conocer su opinión si conviene mantenerlo así o hacerle algún cambio estético con una adecuada intervención de carpintería en para hacerlo más congruente con el estilo general de la sala de estar.
- Una alfombra choby de lana contemporánea de 257x200 cm
- Una alfombra choby de lana contemporánea de 198x148 cm
En el salón nos gustaría tener una zona de lectura/escucha de música (con posicionamiento de equipo de música hifi, discos, CD, etc.).
Claramente, el área de TV de al menos 55 pulgadas no puede faltar.
Alrededor de la mesa ovalada nos gustaría sustituir las sillas que tenemos y combinar sillas o sillones cómodos (¡una sugerencia al respecto sería muy bienvenida!!)
Sobre la mesa ovalada (que es la mesa del comedor cuando somos más de dos) nos gustaría una lámpara colgante. Para la iluminación general, en cambio, pensamos en una iluminación suave (LED) oculta por un velo (ver PDF " Album foto degli arredi da conservare") y una lámpara de pie / lámpara para iluminar el área del sofá.
Nos gustaría tener un render de esta área.
DORMITORIO DOBLE: en esta habitación (ver PDF " Album foto degli arredi da conservare") ) ya existe el siguiente mobiliario en roble gris:
• Una cama doble (cabecero 177 cm x largo 212 cm) con mesitas de noche (63 cm x 42)
• Una cómoda de 145 x 52 x 75,5 cm (h)
• Un septeto de 71 x 52 x 120 (h) cm
Se debe colocar un televisor frente a la cama.
En cuanto al armario, en la casa en la que vivimos ahora, en el dormitorio hay un armario de carpintería de 4 estaciones con 7 puertas, actualmente empotrado en la pared, de 351 x 60 cm, posiblemente para modificar (cambiando el color seguramente) / mudarme. Sin embargo, se puede considerar la compra de un nuevo guardarropa o la construcción de un vestidor.
Nos gustaría hacer la habitación bastante más acogedora que la actual, un poco fría, caracterizando la pared detrás de la cama. Sobre la cama no queremos la balda, tal y como está ahora, quizás buscando una manera de colocarla o reutilizarla de otra forma. En el dormitorio nos gustaría un sistema de iluminación cálido y envolvente y dos luces de lectura. Las dos lámparas Micro Artemide actuales (ver PDF " Album foto degli arredi da conservare") si fuera posible las reubicaríamos en otro lugar, por ejemplo en la zona de estudio y habitación de las hijas.
HABITACIÓN HIJA: en esta habitación ya existe el siguiente mobiliario:
• Una cama individual y media (228 cm con cabecero x 156 cm)
• Un armario de 3 puertas correderas (305 cm x 65,5 / 70 puerta central) x 270 (h)
• Una mesa sobre caballetes de 150 x 70 cm
• Mesita de noche 40 x 48 x 55 (h)
• Una cómoda de 40 x 48 x 123 (h) cm
ZONA ESTUDIO / ATELIER / HABITACIÓN DE INVITADOS: en esta zona nos gustaría obtener 2 espacios para nuestras aficiones, ya que estamos recién jubilados: uno dedicado a la pintura y otro para estudiar y recibir al niño o invitados (sofá cama individual y medio). Nos gustaría que los dos espacios estuvieran separados (sería ideal) en todo caso, al menos visualmente, incluso si conviven en una sola habitación.
BAÑOS: actualmente solo hay un baño en el apartamento; nos gustaría que se construyera un segundo baño, ambos con ducha, lavabo, inodoro y bidé. Nota importante: debido a la ley italiana, no es posible acceder directamente al baño desde el área de la sala de estar/cocina.
LAVANDERIA: el área de lavado, con pileta, aunque sea pequeña, (lavadora y secadora también superpuestas) debe ubicarse posiblemente dentro del departamento.
--------------------
Finalmente, nos gustaría encontrar un alojamiento adecuado para dos lienzos de decoración de las siguientes dimensiones: cm 200x100 y cm 120x100. ( ver PDF " Album foto degli arredi da conservare"). Si hay una mejor propuesta, la más grande no la podemos considerar, porque no nos gusta mucho)
SE ESPECIFICA QUE LAS "FOTOS DE SU ESPACIO" INSERTADAS A CONTINUACIÓN SE REFIEREN AL APARTAMENTO RECIÉN COMPRADO Y ACTUALMENTE TODAVÍA HABITADO POR ESTUDIANTES. LOS MUEBLES PRESENTES EN LAS FOTOS SON LOS DE LOS ESTUDIANTES, QUE SERÁN ELIMINADOS.
LOS MUEBLES A LOS QUE NOS REFERIMOS EN LA DESCRIPCIÓN DEL DESEADO DE LOS AMBIENTES INDIVIDUALES SON LOS QUE TENEMOS EN LA CASA EN QUE VIVIMOS ACTUALMENTE Y NO ESTÁN INCLUIDOS EN LAS FOTOS, SINO SOLO DESCRITOS. SI SE REQUIERE TAMBIÉN PODEMOS PROPORCIONAR FOTOS DEL MISMO.
SIN EMBARGO, EN EL SIGUIENTE PDF " Album foto degli arredi da conservare" ES POSIBLE VER LOS MUEBLES DE NUESTRA CASA ACTUAL QUE TAMBIÉN QUEREMOS MANTENER EN EL NUEVO APARTAMENTO.