πŸ”₯ CYBER MONDAY 24H: -60% su tutti i prezzi del sito! Solo fino a mezzanotte. Usa il codice CYBERMONDAY25 πŸ‘‰πŸΌ
img

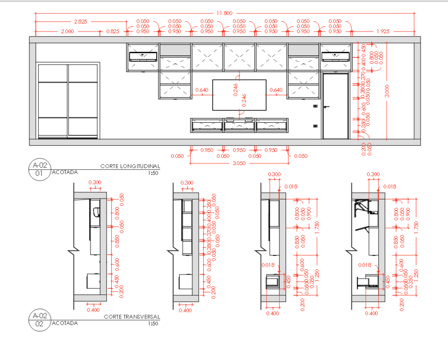
Parete giorno

Cagliari, CA, Italia

Residenziale - Zona Giorno/Notte

Nelson Alvarado

  • architect
  • Puerto la Cruz, Venezuela
Descrizione Progetto

Esta propuesta se basa en la busqueda de un juego de llenos y vacios, con volumenes simetricos, estableciendo una modulacion que permita claridad constructiva y un patron que genere una estetica involucrada con la funcionalidad requerida por el cliente, de esta manera el manejo de lineas y planos horizontales, es fundamental para aprovechar el acomodo con los elementos existente, sin que genere conflicto con las puertas, equipos de aire acondicionado y puntos electricos.

Leggi di PiΓΉ