
Cagliari, CA, Italia
Residenziale - Zona Giorno/Notte
Italiano
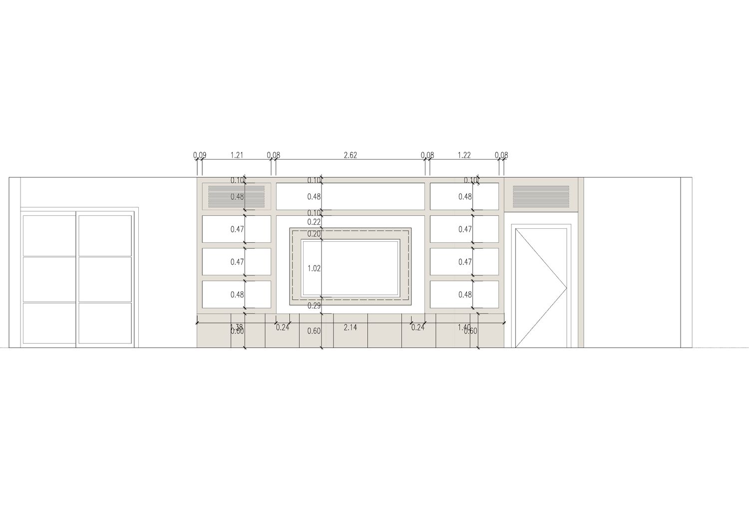
Gentile Cliente, il progetto trasforma un semplice mobile TV angolare in una parete attrezzata integrata, capace di ridefinire lo spazio living. Attraverso volumi su misura, nicchie illuminate e un disegno continuo, l’intervento valorizza la parete esistente migliorando funzionalità, ordine ed espressività architettonica, rendendo il TV parte di una composizione elegante e contemporanea.
Combinando anche le unità di aria condizionata con il design dell'unità TV per sentirsi integrati con esso e non separati con la massa specialmente per le unità di condizionamento dell'aria sopra la porta. Le unità sono funzionalmente semi nascoste con porta di accesso per la manutenzione e telaio simile a una griglia per consentire il flusso d'aria.
Vernice di colore bianco chiaro/beige utilizzata per dare allo spazio la sensazione dell'ampio spazio e per integrarsi anche con il rivestimento in mattoni.
In allegato trova i file DWG della proposta; speriamo che il progetto sia di suo gradimento.
English
Dear Client, the project transforms a simple corner TV unit into an integrated built-in wall system that redefines the living space. Through custom volumes, illuminated niches, and a continuous design, the intervention enhances the existing wall, improving functionality, organization, and architectural expression, turning the TV into a refined and contemporary focal element.
Also combining the air conditioning units with the tv unit design to feel integrated with it and not separated with bulk specially for the air conditioning units above the door. The units are functionally semi hidden with access door for maintenance and grill-like frame to allow air flow.
Light offwhite/ beige color paint used to give the space the feeling of the wide space and to integrate as well with the brick cladding.
The DWG files of the proposal are attached, and we hope you like the design