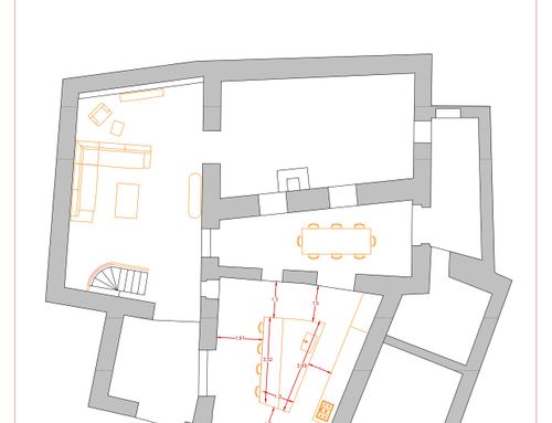
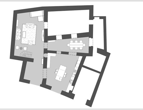
Descrizione
Valutazione e scelta dei mobili e divisione e degli spazi della nostra zona giorno
Di seguito allego un video per rendervi meglio conto della casa allo stato attuale : https://www.dropbox.com/s/u32elydibtfqhtf/43c6863c-fc51-447e-8cd9-0f7efa5e5df1.MP4?dl=0
---------
Evaluation and choice of furniture and division and spaces of our living room
Below I attach a video to better understand the house in its current state: https://www.dropbox.com/s/u32elydibtfqhtf/43c6863c-fc51-447e-8cd9-0f7efa5e5df1.MP4?dl=0
---------
Evaluación y elección de mobiliario y división y espacios de nuestra sala de estar.
A continuación adjunto un video para comprender mejor la casa en su estado actual: https://www.dropbox.com/s/u32elydibtfqhtf/43c6863c-fc51-447e-8cd9-0f7efa5e5df1.MP4?dl=0