
Rome, Italy
Residenziale - Appartamento
Descrizione
Buongiorno a tutti.
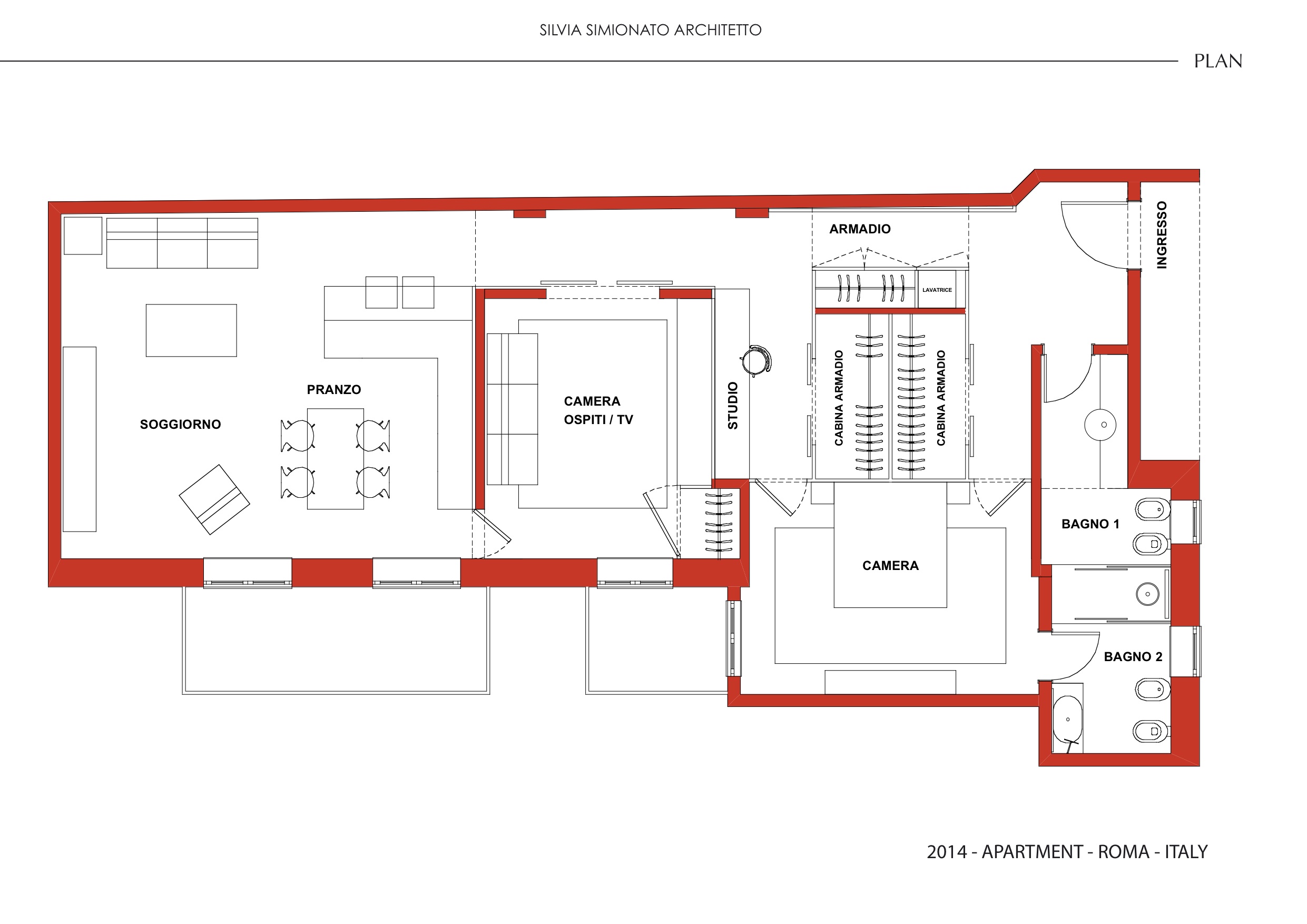
L'appartamento su cui vi chiediamo di lavorare è un trilocale a Roma, al secondo di otto piani posto nell’interno di un palazzo a forma di cavallo. L’appartamento si affaccia con due balconi sul cortile interno al ferro di cavallo, pertanto l’illuminazione non è molto elevata. Nella piantina allegata è presente l’esposizione.
L'appartamento, di circa 75mq, è totalmente da ristrutturare e attualmente così composto (come da piantina allegata):
Ingresso+corridoio di collegamento
Bagno con piccolo antibagno entrambi muniti di piccola finestratura che dà sulla chiostrina interna
Camera da letto principale con finestra che dà sul balconcino
Camera da letto secondaria con finestra-porta che dà sullo stesso balconcino
Cucina con finestra porta che dà sul balcone
Soggiorno con finestra che dà sul balcone
Tutti i muri interni sono modificabili o eliminabili in quanto i soli muri perimetrali sono maestri. La nostra idea è quella di creare due bagni che sfruttano le due piccole finestrature che danno sul chiostro. Uno dei due, piu piccolo, sarà accessibile solo dalla camera matrimoniale principale. Pertanto la camera matrimoniale principale si ipotizza rimanere dov’è. Allo stesso modo l’altra camera potrebbe rimanere in quella posizione diventando camera studio/per ospiti. Un’altra ipotesi è quella di creare un grande soggiorno cucina collegando le attuali stanze. Tali ipotesi possono comunque essere modificate da voi Architetti. Possono essere previsti tutti i tipi di interventi sui muri che si vogliono (spostamenti, allargamento di stanze, demolizioni totali o parziali) tenendo presente che meno se ne fanno meglio è.
Segue una analisi ambiente per ambiente:
1- ingresso+corridoio:
Ci piacerebbe avere appena entrati uno spazio in cui è presente un guardaroba per i soprabiti e una scarpiera abbastanza capiente poiché non utilizziamo scarpe in casa. Inoltre di base ci piacerebbe ridurre il piu possibile la presenza del corridoio.
2- cucina+soggiorno
Sicuramente vogliamo creare uno spazio unico, che possa sfruttare il lato piu luminoso della casa ed il balcone. Ci piacerebbero soluzioni funzionali per lo spazio a disposizione, magari con una cucina con isola o ad angolo.
3 – bagno 1:
Bagno posto all’ingresso con dimensioni maggiori dell’altro, che sfrutta la prima finestrina.
4.Bagno 2:
Bagno funzionale alla camera da letto principale, piu piccolo rispetto all’altro.
5.Camera da letto principale
Camera da letto che useremo noi, che non ha accesso al terrazzo ma solo una finestra che vi si affaccia. Probabilmente è da pensare un grande armadio che contenga tutti i vestiti della coppia che ricopra la parete in comune con i bagni in modo da poterla sfruttare per eventuali attacchi delle forniture del bagno.
6 Camera da letto per ospiti/studio
Classica camera utilizzabile come studio o principalmente come camera per ospitare qualcuno. Da ipotizzare un letto a scomparsa o un letto matrimoniale se c’è spazio, oppure una soluzione ponte in quanto sarebbe comunque utile avere un buon armadio anche qui.
6 Terrazzo
Nessuna modifica particolare
Il budget ipotizzato per la ristrutturazione è 35.000 euro (max) che include rifacimento degli impianti (elettrico e riscaldamento), dei bagni (incluso nuovo da creare) e della porta di casa. Si ipotizza di mantenere buona parte del pavimento esistente tranne che per il soggiorno cucina e per i bagni. Il budget esclude i mobili di cucina-soggiorno, camere, finestre e tapparelle esterne.
Non abbiamo un idea precisa sullo stile, sicuramente vogliamo evitare il minimal o l’Hi-tech. Alleghiamo comunque delle foto per far capire alcune soluzioni stilistiche e d’arredamento che ci sono piaciute.
Si ipotizza la scelta di mobili di media qualità, non Ikea/low cost o luxury se non per qualche elemento particolarmente indicato.
A vostra disposizione per ogni chiarimento
Andrea e Anya
Good morning everyone.
The apartment where we ask you to work is a three-room apartment in Rome, located on the second of eight-story building with a shape of a horseshoe. The apartment has two balconies overlooking the courtyard inside the “horseshoe”, therefore it is not so bright. Find attached the map with the exposure.
The apartment is about 75 square meters and it must be completely restructured. Current composition (as per the attached map ) is as follows:
Entrance + connecting corridor
Bathroom with small anteroom, both equipped with small windows overlooking the internal courtyard
Master bedroom with window overlooking the small balcony
Secondary bedroom with window - door to the small balcony
Kitchen with window-door to the main balcony
Living room with window-door to the main balcony
All interior walls can be modified or demolished except for perimeter walls. Our idea is to create two bathrooms that take advantage of the two small windows facing the cloister. The smallest of the two will only be accessible from the master bedroom . Therefore, the master bedroom is assumed to remain where it is. Similarly the other room could remain in that position becoming a study/ guestroom. Another option is to create a large living/dining room with kitchen connected, eliminating the current wall . These assumptions, however, can be changed by you, Architects . You are free to implement all kinds of interventions to the walls that you might prefer (move, enlargement of rooms, total or partial demolition) bearing in mind that the less you change the better it is.
Following you can find the analysis room by room.
1 – entrance + corridor/hall:
We would love to have a space close to the entrance where there is a cloakroom for coats and a shoe rack large enough for our shoes, because we do not wear shoes in the house. In addition, we would like to reduce as much as possible the presence/length of corridors.
2 - kitchen + living room
Definitely we want to create a unique space that can exploit the brighter side of the home and balcony . We'd appreciate functional solutions for the space available, perhaps with a kitchen island or corner .
3 - bathroom 1:
At the entrance we would find a larger bathroom, which uses the first little window .
4.Bagno 2:
Functional bathroom to the master bedroom, smaller than the other.
5.Camera master bedroom
It is the Bedroom that we will use, this room doesn’t have access to the terrace but only a window that overlooks it . A big closet that contains all the clothes of a couple could stay on the same wall in common with the bathrooms so that you can exploit it for any attacks of supplies in the bathroom.
6 Bedroom Guestroom/ study
Classical room used as a study or bedroom to accommodate guests. You might think of a rollaway bed or a double bed if there is space as well as a big wardrobe with bed inside.
6 Terrace
No particular changes.
The budget assumed for the restructuring is € 35,000 (max ), which includes renovation of facilities (electricity and heating) , bathrooms (including new to be created) and the front door. We suppose to keep most of the existing floor except for the living room and kitchen and the bathrooms. The budget excludes kitchen furniture, living room, bedrooms, windows and exterior shutters .
We do not have a clear idea about the style, definitely we want to avoid the minimal or the hi- tech design. We attach some photos of design solutions and furniture that we like, but they are not mandatory.
Furniture should be of medium quality, not Ikea / low cost or luxury.
Please do not hesitate to contact us for any further clarification.
Bye
Andrea e Anya